Löggiltir fasteignasalar innan Félags fasteignasala:
Knútur Bjarnason
Rúnar Þór Árnason
Gunnar Sv. Friðriksson
Hólmar Björn Sigþórsson
Linda Björk Ingvadóttir
Kristján Þór Sveinsson
María Steinunn Jóhannesdóttir
Ragnheiður Árnadóttir
Vista
einbýlishús

Fosstún 6

800 Selfoss

91.900.000 kr.

524.843 þ.kr./m2
Fasteignanúmer

F2256864

Fasteignamat

98.000.000 kr.

Brunabótamat

83.500.000 kr.

Áhvílandi

0 kr.

Arion banki – Reikna lán
Upplýsingar
svg
Byggt 2002
svg
175,1 m²
svg
4 herb.
svg
1 baðherb.
svg
3 svefnh.
svg
Þvottahús
svg
Sérinngangur
svg
Laus strax

Lýsing

***SELD MEÐ FYRIRVARA***

Hólmar Björn Sigþórsson löggiltur fasteignasali og Helgafell fasteignasala kynna í einkasölu Fosstún 6, 800 Selfoss: 
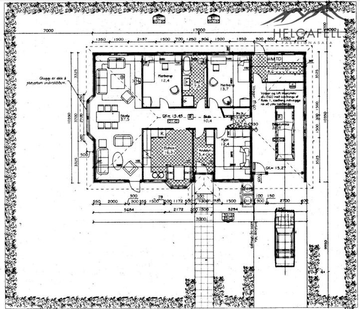
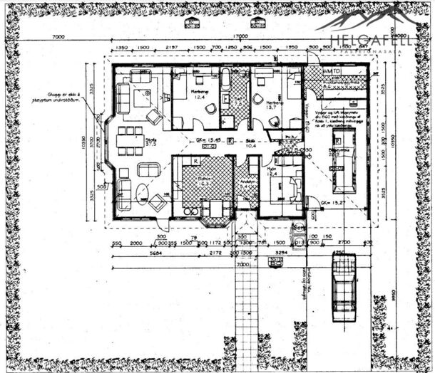
Fallegt og vel skipulagt 4 herbergja einbýlishús með innbyggðum bílskúr. Húsið er vel staðsett í grónu hverfi miðsvæðis á Selfossi. Heildarstærð eignarinnar er 175.1 fm. og þ.a. er íbúðahluti 132 fm og bílskúr 43.1 fm. 

SMELLIÐ HÉR TIL AÐ FÁ SENT SÖLUYFIRLIT STRAX

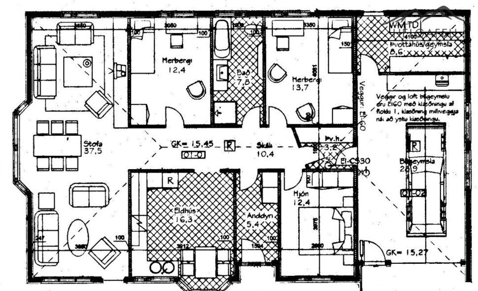
Eignin skiptist í forstofu, gangur / hol, stofu / borðstofa, eldhús,  3 svefnherbergi, baðherbergi, þvottahús, bílskúr og geymslu.

Nánari lýsing:
Forstofa: Komið er inn í rúmgóða forstofu, flísar á gólfi.
Stofan / borðstofa:  Stór og björt, gönguhurð út á suðurvestur verönd, físar á gólfi. 
Eldhús:  Með góðri innréttingu, borðkrókur, útskotsgluggi, háfur, spanhelluborð, bakaraofn, uppþvottavél sem fylgir með, flísar milli skápa, parket á gólfi. 
Hjónaherbergi:  Rúmgott, góðir fataskápar með ljósum, flísar á gólfi.
Svefnherbergi 2: Rúmgott, góðir fataskápar með ljósum, flísar á gólfi.
Svefnherbergi 3: Inn af forstofur, innfelldur fataskápur, flísar á gólfi. 
Gangur / hol: Flísar á gófli.
Baðherbergi: Rúmgott, góð innrétting og speglaskápar, baðker og walk in sturta, flísar á gólfi og veggjum.
Þvottahús:  Með vinnuborði og skápum, skolvaskur, innangengt í bílskúr, flísar á gólfi. 
Bílskúr og geymsla: Er 43.1 fm, heitt og kalt vatn, gönguhurð út á framhlið og út á baklóð úr geymslu, bílskúrshurðaopnari, skápur, flísar á gólfi.
Húsið: Er byggt 2002 og er timburhús klætt með lituðu Duropal, þak er valmaþak klætt með bárujárni.  Hiti er í gólfum. Gluggar að utan og vindskeiðar voru málaðar 2023. Klæðning á húsi var máluð 2022. 
Lóð: Lóðin er 680.6 fm. eignarlóð. Fallegur og gróinn garður. Framan við húsið er stór steypt innkeyrsla (mynstursteypt), steypt verönd klædd gervigrasi með skjólveggjum. 

Glæsilegt og vel viðhaldið fjölskylduhús á góðum stað þar sem stutt er að ganga í miðbæ Selfoss og alla helstu þjónustu. Eign sem vert er að skoða.

Nánari upplýsingar og bókun á skoðun gefur Hólmar Björn Sigþórsson, löggiltur fasteignasali og félagsmaður í Félagi fasteignasala í s. 893 3276 eða í netfangið [email protected]
 

----------------------------------------------------------
Heimasíða Helgafells fasteignasölu
Facebook síða Helgafells

- Hafðu samband og við gerum söluverðmat á eign þinni, þér að kostnaðarlausu -

Gjöld sem kaupandi þarf að standa straum af vegna kaupa á fasteign:

1. Stimpilgjald af kaupsamningi - 0,8% af fasteignamati fyrir einstaklinga (0,4% fyrir fyrstu kaupendur) og 1,6% fyrir lögaðila.
2. Þinglýsingargjald af kaupsamningi, veðskuldabréfi, mögulegu veðleyfi o.fl. - 3.800 kr. af hverju skjali.
3. Lántökugjald lánastofnunar - almennt í kringum 50þ., oft lægra eða ekkert lántökugjald fyrir fyrstu kaup. Nánari upplýsingar á heimasíðum lánastofnana.
4. Þjónustusamningur milli kaupanda og fasteignasölu - Kr.  92.380,- m/vsk.

Helgafell fasteignasala bendir kaupendum á ríka skoðunarskyldu sem kveðið er á í lögum um fasteignakaup nr.40/2002. Skorað er á kaupendur að kynna sér vandlega ástand fasteigna og nýta til þess aðstoð sérfræðinga.  Sömuleiðis er bent á upplýsingaskyldu seljanda samanber 26.gr. Laga nr.40/2002 um fasteignakaup og 25.gr. laga nr.26/1994 um fjöleignarhús. Seljanda er bent á að kynna sér tilvitnaðar lagagreinar.

img
Hólmar Björn Sigþórsson
Lögg.fasteignasali innan félags fasteignasala
Helgafell fasteignasala ehf.
Stórhöfði 33, 2. hæð, 110 Reykjavík
Helgafell fasteignasala ehf.

Helgafell fasteignasala ehf.

Stórhöfði 33, 2. hæð, 110 Reykjavík
img

Hólmar Björn Sigþórsson

Stórhöfði 33, 2. hæð, 110 Reykjavík
Helgafell fasteignasala ehf.

Helgafell fasteignasala ehf.

Stórhöfði 33, 2. hæð, 110 Reykjavík

Hólmar Björn Sigþórsson

Stórhöfði 33, 2. hæð, 110 Reykjavík