Upplýsingar
229,1 m²
6 herb.
2 baðherb.
4 svefnh.
Þvottahús
Bílskúr
Sérinngangur
Lýsing
ÁRBORGIR SELFOSSI S 482 4800 kynna í einkasölu:
Glæsilegt og rúmgott einbýlishús sem er í byggingu í nýju hverfi á Selfossi.
Heildarstærð hússins er 229,1m2 og er sambyggður bílskúr 44m2 þar af.
Að utan verður húsið klætt með svartri álkassettu klæðningu.
Gluggar og hurðir eru ál/tré og er þrefalt gler í öllum gluggum.
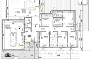
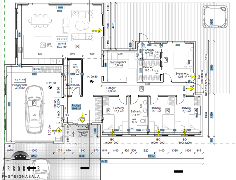
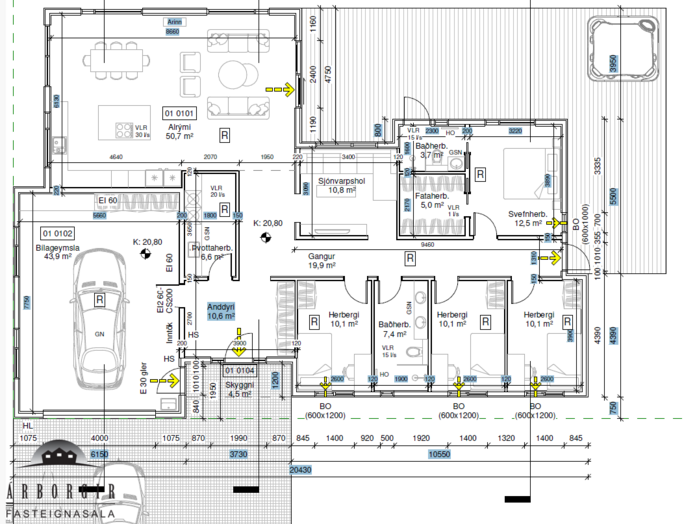
Innra skipulag er mjög skemmtilegt en það telur anddyri, þvottahús, baðherbergi, stofu og eldhús sem eru í 50 m2 alrými,sjónvarpshol, 3 barnaherbergi, hjónaherbergi með sérbaðherbergi og fataherbergi auk rúmgóðs bílskúrs.
Eignin afhendist tilbúin að utan og fokeld að innan, lóð skilast grófjöfnuð.
Hægt er að fá húsið lengra komið eftir nánara samkomulagi.
Afhending á fokheldu húsi er í september 2026
Nánari upplýsingar á skrifstofu Árborga.
Glæsilegt og rúmgott einbýlishús sem er í byggingu í nýju hverfi á Selfossi.
Heildarstærð hússins er 229,1m2 og er sambyggður bílskúr 44m2 þar af.
Að utan verður húsið klætt með svartri álkassettu klæðningu.
Gluggar og hurðir eru ál/tré og er þrefalt gler í öllum gluggum.
Innra skipulag er mjög skemmtilegt en það telur anddyri, þvottahús, baðherbergi, stofu og eldhús sem eru í 50 m2 alrými,sjónvarpshol, 3 barnaherbergi, hjónaherbergi með sérbaðherbergi og fataherbergi auk rúmgóðs bílskúrs.
Eignin afhendist tilbúin að utan og fokeld að innan, lóð skilast grófjöfnuð.
Hægt er að fá húsið lengra komið eftir nánara samkomulagi.
Afhending á fokheldu húsi er í september 2026
Nánari upplýsingar á skrifstofu Árborga.