Löggiltir fasteignasalar innan Félags fasteignasala:
Hannes Steindórsson
Bogi Molby Pétursson
Guðrún Antonsdóttir
Heimir Hallgrímsson
Hrafnkell P. H. Pálmason
Viðar Marinósson
Elías Haraldsson
Kristján Þórir Hauksson
Albert Bjarni Úlfarsson
Ragnar Þorsteinsson
Þórey Ólafsdóttir
Andri Freyr Halldórsson
Upplýsingar
Verðsaga
Byggt 2008
369,8 m²
9 herb.
3 baðherb.
7 svefnh.
Þvottahús
Bílskúr
Opið hús: 19. apríl 2026
kl. 17:00
til 17:20
Opið hús að Hlíðarás 41 í Hafnarfirði klukkan 17:00 á sunnudaginn.
Lýsing
LIND fasteignasala og Þórey Ólafsdóttir, löggiltur fasteignasali, kynna í einkasölu Hlíðarás 41 – glæsilegt og afar rúmgott einbýlishús á tveimur hæðum með tvöföldum bílskúr á eftirsóttum stað í Áslandinu í Hafnarfirði.
Húsið er bjart og vel skipulagt með opnu alrými á efri hæð, rúmgóðum svefnherbergjum og góðri tengingu við útisvæði með timburverönd og heitum potti. Um er að ræða fjölskylduvæna eign með sjö herbergjum, mikilli lofthæð og fallegu útsýni yfir höfuðborgarsvæðið, Heiðmörk og Bláfjöll. Eignin býður upp á fjölbreytta nýtingarmöguleika, þar á meðal möguleika á að útbúa aukaíbúðir.
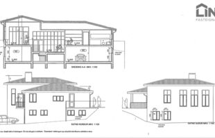
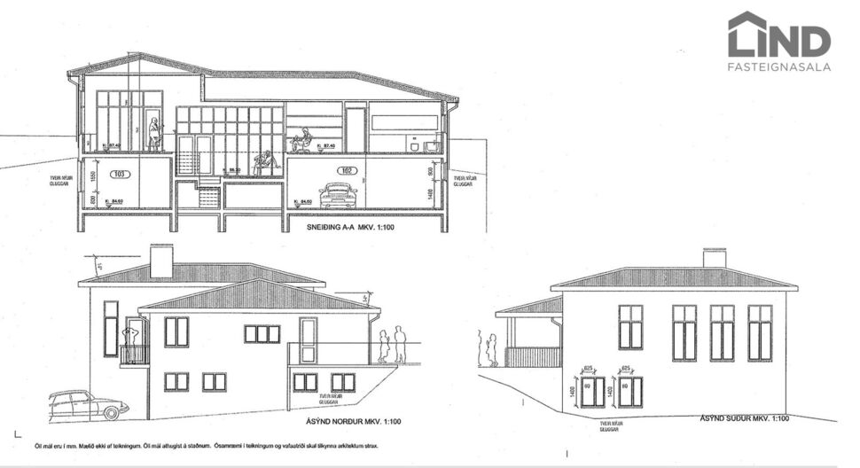
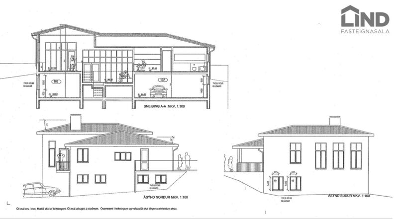
Birt stærð eignarinnar er 369,8 fm samkvæmt Þjóðskrá Íslands, þar af er tvöfaldur bílskúr um 53 fm.
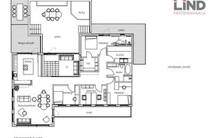
Á neðri hæð er forstofa, gestasnyrting, þrjú rúmgóð herbergi, geymsla og innangengt í bílskúr. Á efri hæð er bjart og opið alrými með eldhúsi, stofu og borðstofu, auk sjónvarpshols. Þar eru einnig fjögur svefnherbergi, þar af hjónasvíta með fataherbergi og baðherbergi, auk sér baðherbergis og þvottahúss.
SMELLTU HÉR TIL AÐ FÁ SENT SÖLUYFIRLIT - Allar frekari upplýsingar veitir Þórey í síma 663 2300 eða [email protected]
Nánari lýsing, neðri hæð
Forstofa með fataskáp, flísar á gólfi.
Gestasnyrting með innréttingu, upphengdu salerni og sturtu, flísar á gólfi.
Herbergi I (20,5 fm), mjög rúmgott með fataherbergi, harðparket á gólfi.
Herbergi II (20,3 fm), mjög rúmgott með fataherbergi, harðparket á gólfi.
Herbergi III (32 fm), mjög rúmgott en skráð sem geymsla á teikningu, harðparket á gólfi.
Bílskúr (47,3 fm samkvæmt núverandi skipulagi / teikningu), epoxy á gólfi.
Gengið er upp parketlagðan stiga með glerhandriði, á stigapalli er sjónvarpshol með útgengi út á skjólgóða timburverönd.
Nánari lýsing, efri hæð
Eldhús með hvítri innréttingu, gott vinnupláss og tengi fyrir uppþvottavél, eldhúseyja með span helluborði, harðparket á gólfi.
Stofa og borðstofa í björtu og opnu rými með mikilli lofthæð, harðparket á gólfi og útgengi á svalir með fallegu útsýni.
Herbergi IV - hjónasvíta með fataherbergi og baðherbergi innaf, harðparket á gólfi.
Herbergi V með fataskáp, harðparket á gólfi.
Herbergi VI, harðparket á gólfi.
Herbergi VII, harðparket á gólfi.
Baðherbergi með hvítri innréttingu, upphengdu salerni, baðkari og sturtu, flísar á gólfi.
Þvottahús með innréttingu og skápum, flísar á gólfi og útgengi í garð.
Húsið var sprunguviðgert og málað að utan árið 2025, stórt steypt bílaplan og lóð að mestu frágengin með rúmgóðri timburverönd og heitum potti.
Nánari upplýsingar veitir Þórey Ólafsdóttir, löggiltur fasteignasali / B.Sc. í viðskiptafræði í síma 663 2300 eða í gegnum [email protected]
Á heimasíðunni minni www.thorey.is má skoða umsagnir ánægðra viðskiptavina og kynna sér þjónustuna mína.
Allir kaupendur okkar fá Vildarkort Lindar. Með því að framvísa kortinu færð þú 30% afslátt hjá samstarfsaðilum: Húsgagnahöllin, S. Helgason, Flugger litir, Húsasmiðjan, Z brautir og gluggatjöld, Vídd, Parki, Betra bak, Dorma og Sýn.
Húsið er bjart og vel skipulagt með opnu alrými á efri hæð, rúmgóðum svefnherbergjum og góðri tengingu við útisvæði með timburverönd og heitum potti. Um er að ræða fjölskylduvæna eign með sjö herbergjum, mikilli lofthæð og fallegu útsýni yfir höfuðborgarsvæðið, Heiðmörk og Bláfjöll. Eignin býður upp á fjölbreytta nýtingarmöguleika, þar á meðal möguleika á að útbúa aukaíbúðir.
Birt stærð eignarinnar er 369,8 fm samkvæmt Þjóðskrá Íslands, þar af er tvöfaldur bílskúr um 53 fm.
Á neðri hæð er forstofa, gestasnyrting, þrjú rúmgóð herbergi, geymsla og innangengt í bílskúr. Á efri hæð er bjart og opið alrými með eldhúsi, stofu og borðstofu, auk sjónvarpshols. Þar eru einnig fjögur svefnherbergi, þar af hjónasvíta með fataherbergi og baðherbergi, auk sér baðherbergis og þvottahúss.
SMELLTU HÉR TIL AÐ FÁ SENT SÖLUYFIRLIT - Allar frekari upplýsingar veitir Þórey í síma 663 2300 eða [email protected]
Nánari lýsing, neðri hæð
Forstofa með fataskáp, flísar á gólfi.
Gestasnyrting með innréttingu, upphengdu salerni og sturtu, flísar á gólfi.
Herbergi I (20,5 fm), mjög rúmgott með fataherbergi, harðparket á gólfi.
Herbergi II (20,3 fm), mjög rúmgott með fataherbergi, harðparket á gólfi.
Herbergi III (32 fm), mjög rúmgott en skráð sem geymsla á teikningu, harðparket á gólfi.
Bílskúr (47,3 fm samkvæmt núverandi skipulagi / teikningu), epoxy á gólfi.
Gengið er upp parketlagðan stiga með glerhandriði, á stigapalli er sjónvarpshol með útgengi út á skjólgóða timburverönd.
Nánari lýsing, efri hæð
Eldhús með hvítri innréttingu, gott vinnupláss og tengi fyrir uppþvottavél, eldhúseyja með span helluborði, harðparket á gólfi.
Stofa og borðstofa í björtu og opnu rými með mikilli lofthæð, harðparket á gólfi og útgengi á svalir með fallegu útsýni.
Herbergi IV - hjónasvíta með fataherbergi og baðherbergi innaf, harðparket á gólfi.
Herbergi V með fataskáp, harðparket á gólfi.
Herbergi VI, harðparket á gólfi.
Herbergi VII, harðparket á gólfi.
Baðherbergi með hvítri innréttingu, upphengdu salerni, baðkari og sturtu, flísar á gólfi.
Þvottahús með innréttingu og skápum, flísar á gólfi og útgengi í garð.
Húsið var sprunguviðgert og málað að utan árið 2025, stórt steypt bílaplan og lóð að mestu frágengin með rúmgóðri timburverönd og heitum potti.
Nánari upplýsingar veitir Þórey Ólafsdóttir, löggiltur fasteignasali / B.Sc. í viðskiptafræði í síma 663 2300 eða í gegnum [email protected]
Á heimasíðunni minni www.thorey.is má skoða umsagnir ánægðra viðskiptavina og kynna sér þjónustuna mína.
Allir kaupendur okkar fá Vildarkort Lindar. Með því að framvísa kortinu færð þú 30% afslátt hjá samstarfsaðilum: Húsgagnahöllin, S. Helgason, Flugger litir, Húsasmiðjan, Z brautir og gluggatjöld, Vídd, Parki, Betra bak, Dorma og Sýn.
Ár
Fasteignamat
Kaupverð
Stærð
Fermetraverð
21. mar. 2019
109.850.000 kr.
105.000.000 kr.
369.8 m²
283.937 kr.
22. maí. 2009
42.500.000 kr.
44.900.000 kr.
369.8 m²
121.417 kr.
22. feb. 2008
5.880.000 kr.
60.000.000 kr.
10101 m²
5.940 kr.
Byggt á upplýsingum úr Þjóðskrá Íslands frá 2006-2026