Löggiltir fasteignasalar innan Félags fasteignasala:
Ástþór Reynir Guðmundsson
Vigdís R. S. Helgadóttir
Guðbjörg Helga Jóhannesdóttir
Gylfi Jens Gylfason
Sigrún Matthea Sigvaldadóttir
Sveinn Gíslason
Páll Guðmundsson
Þórarinn Arnar Sævarsson
Berglind Hólm Birgisdóttir
Þorsteinn Gíslason
Guðrún Lilja Tryggvadóttir
Brynjar Ingólfsson
Guðný Þorsteinsdóttir
Bjarni Blöndal
Þorsteinn Ólafs
Þórdís Björk Davíðsdóttir
Jóhann Kristinn Jóhannesson
Bjarný Björg Arnórsdóttir
Salvör Þóra Davíðsdóttir
Magga Sigríður Gísladóttir
Upplýsingar
Verðsaga
Byggt 2015
150,4 m²
4 herb.
1 baðherb.
3 svefnh.
Þvottahús
Sameiginl. inngangur
Bílastæði
Lyfta
Lýsing
RE/MAX og Dagbjartur Willardsson löggiltur fasteignasali kynna Norðurbakka 9B - Fnr. 229-3307
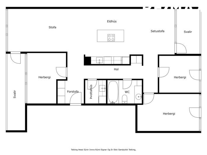
Eignin er skráð 150,4 fm 4 herbergja íbúð í fjölbýli og er skráð byggingarár 2015. Íbúðarhlutinn er skráður 131,8 fm og tvær geymslur 12,5 og 6,1 fm. Tvennar svalir eru í íbúðinni. Einnig gott að sjá skipulag íbúðarinnar á teikningu sem er þar sem ljósmyndirnar eru af eigninni. Skipta þarf út tveimur gluggum í íbúðinni en samkomulag liggur fyrir við verktakann sem byggði húsið um frágang á því. Einnig mun verktakinn laga þak á bílageymslu.
FÁÐU SENT SÖLUYFIRLIT YFIR EIGNINA HÉR.
Nánari lýsing:
Aðkoma: Malbikuð stæði eru fyrir framan húsið. Mjög snyrtileg sameign í stigaganginum.
Forstofa: Flísar á gólfi. Rúmgóður fataskápur.
Stofa/borðstofa: Parket á gólfi. Útgengt á svalir úr stofu.
Eldhús: Eikarinnrétting og eyja með Miele spansuðuhelluborði og háfi yfir. Miele bakstursofn í vinnuhæð sem er bæði með hefðbundna hitum og gufuhitun til eldunnar eða baksturs. Barstólar sem eru við eyjuna geta fylgt með.
Baðherbergi: Flísalagt í hólf og gólf. Eikarinnrétting með handlaug. Baðkar með sturtutæki og glerþili. Upphengt salerni.
Þvottahús: Flísar á gólfi. Góð hvít innrétting.
Svefnherbergi: Eru þrjú talsins og er parket á gólfum þeirra allra. Fataskápar eru í öllum herbergjunum.
Bílastæði: Merkt bílastæði er í kjallara og er rafhleðslustöð við stæðið. Önnur geymslan sem fylgir íbúðinni er beint inn af bílastæði.
Geymslur: Tvær geymslur fylgja með og er önnu þeirra 12,5 fm á geymslugangi en hin er fyrir aftan bílastæði og er skráð 6,1fm.
Lóð: Sameiginleg frágengin lóð.
Norðurbakki 9B er falleg fjögurra herbergja vönduð íbúð í fallegu fjölbýlishúsi. Á þaki hússins eru svo sameiginlegar þaksvalir með fallegu útsýni til allra átta. Frábær staðsetning og stutt i skóla og leikskóla og alla þjónustu í miðbænum. Útivistarmöguleikar í göngufæri. Kaffihús og bakarí á Norðurbakkanum og stutt í verslunarmiðstöðina Fjörð.
Allar nánari upplýsingar veitir:
Dagbjartur Willardsson lgf. í síma 861-7507 eða [email protected].
Ég býð upp á frítt söluverðmat á þinni eign og veiti góða og lipra þjónustu.
Gjöld sem kaupandi þarf að standa straum af vegna kaupanna:
1. Stimpilgjald af kaupsamningi - 0,8% af heildarfasteignamati hjá einstaklingum. (Sé um fyrstu kaup að ræða er stimpilgjald af kaupsamningi 0,4%)
2. Stimpilgjald af kaupsamningi - 1,6% af heildarfasteignamati hjá lögaðilum.
3. Þinglýsingagjald af kaupsamningi, veðskuldabréfi, veðleyfi o.fl. 2.700 kr. af hverju skjali.
4. Lántökugjald lánastofnunar - sjá heimasíður lánastofnanna.
5. Umsýslugjald til fasteignasölu 69.900. kr. m.vsk.
Í lögum um fasteignakaup nr. 40/2002 er kveðið á um ríka skoðunarskyldu kaupenda á fasteignum. Vill RE/MAX því skora á væntanlega kaupendur að kynna sér vel ástand fasteigna fyrir kauptilboðsgerð og leita til þar til bærra sérfræðinga um nánari skoðun.
Eignin er skráð 150,4 fm 4 herbergja íbúð í fjölbýli og er skráð byggingarár 2015. Íbúðarhlutinn er skráður 131,8 fm og tvær geymslur 12,5 og 6,1 fm. Tvennar svalir eru í íbúðinni. Einnig gott að sjá skipulag íbúðarinnar á teikningu sem er þar sem ljósmyndirnar eru af eigninni. Skipta þarf út tveimur gluggum í íbúðinni en samkomulag liggur fyrir við verktakann sem byggði húsið um frágang á því. Einnig mun verktakinn laga þak á bílageymslu.
FÁÐU SENT SÖLUYFIRLIT YFIR EIGNINA HÉR.
Nánari lýsing:
Aðkoma: Malbikuð stæði eru fyrir framan húsið. Mjög snyrtileg sameign í stigaganginum.
Forstofa: Flísar á gólfi. Rúmgóður fataskápur.
Stofa/borðstofa: Parket á gólfi. Útgengt á svalir úr stofu.
Eldhús: Eikarinnrétting og eyja með Miele spansuðuhelluborði og háfi yfir. Miele bakstursofn í vinnuhæð sem er bæði með hefðbundna hitum og gufuhitun til eldunnar eða baksturs. Barstólar sem eru við eyjuna geta fylgt með.
Baðherbergi: Flísalagt í hólf og gólf. Eikarinnrétting með handlaug. Baðkar með sturtutæki og glerþili. Upphengt salerni.
Þvottahús: Flísar á gólfi. Góð hvít innrétting.
Svefnherbergi: Eru þrjú talsins og er parket á gólfum þeirra allra. Fataskápar eru í öllum herbergjunum.
Bílastæði: Merkt bílastæði er í kjallara og er rafhleðslustöð við stæðið. Önnur geymslan sem fylgir íbúðinni er beint inn af bílastæði.
Geymslur: Tvær geymslur fylgja með og er önnu þeirra 12,5 fm á geymslugangi en hin er fyrir aftan bílastæði og er skráð 6,1fm.
Lóð: Sameiginleg frágengin lóð.
Norðurbakki 9B er falleg fjögurra herbergja vönduð íbúð í fallegu fjölbýlishúsi. Á þaki hússins eru svo sameiginlegar þaksvalir með fallegu útsýni til allra átta. Frábær staðsetning og stutt i skóla og leikskóla og alla þjónustu í miðbænum. Útivistarmöguleikar í göngufæri. Kaffihús og bakarí á Norðurbakkanum og stutt í verslunarmiðstöðina Fjörð.
Allar nánari upplýsingar veitir:
Dagbjartur Willardsson lgf. í síma 861-7507 eða [email protected].
Ég býð upp á frítt söluverðmat á þinni eign og veiti góða og lipra þjónustu.
Gjöld sem kaupandi þarf að standa straum af vegna kaupanna:
1. Stimpilgjald af kaupsamningi - 0,8% af heildarfasteignamati hjá einstaklingum. (Sé um fyrstu kaup að ræða er stimpilgjald af kaupsamningi 0,4%)
2. Stimpilgjald af kaupsamningi - 1,6% af heildarfasteignamati hjá lögaðilum.
3. Þinglýsingagjald af kaupsamningi, veðskuldabréfi, veðleyfi o.fl. 2.700 kr. af hverju skjali.
4. Lántökugjald lánastofnunar - sjá heimasíður lánastofnanna.
5. Umsýslugjald til fasteignasölu 69.900. kr. m.vsk.
Í lögum um fasteignakaup nr. 40/2002 er kveðið á um ríka skoðunarskyldu kaupenda á fasteignum. Vill RE/MAX því skora á væntanlega kaupendur að kynna sér vel ástand fasteigna fyrir kauptilboðsgerð og leita til þar til bærra sérfræðinga um nánari skoðun.
Ár
Fasteignamat
Kaupverð
Stærð
Fermetraverð
29. nóv. 2022
69.450.000 kr.
93.000.000 kr.
150.4 m²
618.351 kr.
18. feb. 2022
69.450.000 kr.
84.000.000 kr.
150.4 m²
558.511 kr.
27. jan. 2021
66.100.000 kr.
67.250.000 kr.
150.4 m²
447.141 kr.
9. nóv. 2016
21.550.000 kr.
48.950.000 kr.
150.4 m²
325.465 kr.
Byggt á upplýsingum úr Þjóðskrá Íslands frá 2006-2026