Löggiltir fasteignasalar innan Félags fasteignasala:
Knútur Bjarnason
Rúnar Þór Árnason
Gunnar Sv. Friðriksson
Hólmar Björn Sigþórsson
Linda Björk Ingvadóttir
Kristján Þór Sveinsson
María Steinunn Jóhannesdóttir
Ragnheiður Árnadóttir
Vista
svg

41

svg

16  Skoðendur

svg

Skráð  17. apr. 2026

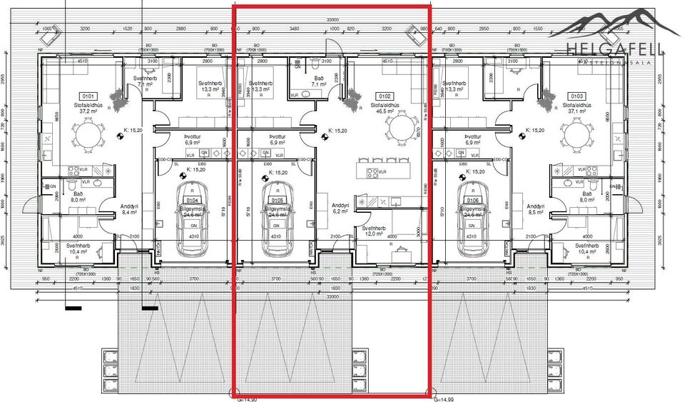
raðhús

Elsugata 10

815 Þorlákshöfn

58.600.000 kr.

452.160 þ.kr./m2
Fasteignanúmer

F2532369

Fasteignamat

59.250.000 kr.

Brunabótamat

0 kr.

Áhvílandi

0 kr.

Arion banki – Reikna lán
Upplýsingar
svg
129,6 m²
svg
3 herb.
svg
1 baðherb.
svg
2 svefnh.
svg
Þvottahús
svg
Bílskúr
svg
Sérinngangur

Lýsing

Hólmar Björn Sigþórsson löggiltur fasteignasali og Helgafell fasteignasala og kynna í einkasölum Elsugötu 10, 815 Þorlákshöfn:

Um er að ræða nýtt og vel skipulagt 3 herbergja miðjuraðhús með innbyggðum bílskúr. Birt stærð eignar er 129,6 fm og þar af er bílskúr 27,3 fm. Húsið er hluti af Elsugötu 8, 10 og 12 sem staðsett eru í Vesturbyggð sem er glænýtt hverfi í vestur jaðri Þorlákshafnar. Eignin afhendast á byggingarstigi 3 fullgerð bygging að utan og tilbúin til innréttingar.

SMELLIÐ HÉR TIL AÐ FÁ SENT SÖLUYFIRLIT STRAX

Skipulag eignarinnar: Anddyri, tvö svefnherbergi, stofa / borðstofa og eldhús í opnu alrými, baðherbergi, þvottahús og bílskúr

SKILALÝSING Á BYGGINGARSTIGI 3 - FULLGERÐ BYGGING AÐ UTAN OG TILBÚIN TIL INNRÉTTINGAR:

Afhending: 15. ágúst 2026. 
Verð: 58,6 milljónir. 

Frágangur utanhúss:
- Húsið er byggt úr timbri og klætt að utan með gráu steni. 
- Svartar vindskeiðar verða komnar og fúavarðar.
- Þakrennur og niðurföll verða frágengin.
- Svartir gluggar og hurðir með verða fullfrágengin og glerjaðir.
- Aksturshurð verður í bílskúrum.
- Lóðin verður grófjöfnuð.

Frágangur innanhúss:
- Kraftsperrur eru í húsinu og öll loft niðurtekin.
- Ísteyptar hitalagnir verða í öllum gólfum og verður tengigrind fyrir hita frágengin, vatnslagnir komnar í veggi.
- Rafmagnstaflan er frágengin miða við byggingarstig 3. Búið er að leggja út ídráttarrör og dósir og draga fyrir vinnurafmagni. Stýringar og annar búnaður gólfhita fylgir ekki.
- Allir milliveggir verða komnir og verða klæddir með nótuðum spónaplötum og loftin klædd með loftaþiljum. Sparslað yfir hefti og ójöfnur og grunnað í hvítum lit.

Almennt:
Seljandi greiðir tengigjöld rafmagns og hita sem og lóðargjald. 
Kaupandi greiðir 0,3 % skipulagsgjald þegar það er lagt á við endanlegt brunabótamat.
 
Byggingaraðili: Hrímgrund ehf. 

Nánari upplýsingar og bókun á skoðun gefur Hólmar Björn Sigþórsson, löggiltur fasteignasali og félagsmaður í Félagi fasteignasala í s. 893 3276 eða í netfangið [email protected]

Þorlákshöfn:

Þorlákshöfn er frábær staður til að búa sér notalegt heimili og ala upp börn. Vinalegur og barnvænn bær í nálægð við aðra þéttbýliskjarna. Í dag er öll þjónusta við barnafólk og fjölskyldur í Þorlákshöfn til fyrirmyndar. Stuttar vegalengdir einfalda allar samgöngur og börnin geta gengið örugg í skóla og tómstundastarf. Skólarnir eru eitt af trompum bæjarins þar sem stutt er vel við bakið á þeim sem þess þurfa. Rúmgóður og vel búinn grunnskóli með persónulegum samskiptum á milli heimilis og skóla. Leikskólinn Bergheimar er fimm deilda leikskóli fyrir tveggja til sex ára börn og í Vesturbyggð nýju hverfi er verið að byggja leikskólann Hraunheima. Öll íþróttaaðstaða í Þorlákshöfn er mjög góð og ákaflega vel nýtt af bæjarbúum. Margir nýir íbúar hafa nefnt að í stað þess að festa kaup á íbúð á höfuðborgarsvæðinu hafi verið hægt að fá íbúðarhús í Þorlákshöfn og búa fjölskyldunni stærra og rúmbetra heimili í barnvænu umhverfi.  

----------------------------------------------------------
Heimasíða Helgafells fasteignasölu
Facebook síða Helgafells

- Hafðu samband og við gerum söluverðmat á eign þinni, þér að kostnaðarlausu -

Gjöld sem kaupandi þarf að standa straum af vegna kaupa á fasteign:

1. Stimpilgjald af kaupsamningi - 0,8% af fasteignamati fyrir einstaklinga (0,4% fyrir fyrstu kaupendur) og 1,6% fyrir lögaðila.
2. Þinglýsingargjald af kaupsamningi, veðskuldabréfi, mögulegu veðleyfi o.fl. - 3.800 kr. af hverju skjali.
3. Lántökugjald lánastofnunar - almennt í kringum 50þ., oft lægra eða ekkert lántökugjald fyrir fyrstu kaup. Nánari upplýsingar á heimasíðum lánastofnana.
4. Þjónustusamningur milli kaupanda og fasteignasölu - Kr.  92.380,- m/vsk.

Helgafell fasteignasala bendir kaupendum á ríka skoðunarskyldu sem kveðið er á í lögum um fasteignakaup nr.40/2002. Skorað er á kaupendur að kynna sér vandlega ástand fasteigna og nýta til þess aðstoð sérfræðinga.  Sömuleiðis er bent á upplýsingaskyldu seljanda samanber 26.gr. Laga nr.40/2002 um fasteignakaup og 25.gr. laga nr.26/1994 um fjöleignarhús. Seljanda er bent á að kynna sér tilvitnaðar lagagreinar.

img
Hólmar Björn Sigþórsson
Lögg.fasteignasali innan félags fasteignasala
Helgafell fasteignasala ehf.
Stórhöfði 33, 2. hæð, 110 Reykjavík
Helgafell fasteignasala ehf.

Helgafell fasteignasala ehf.

Stórhöfði 33, 2. hæð, 110 Reykjavík
img

Hólmar Björn Sigþórsson

Stórhöfði 33, 2. hæð, 110 Reykjavík
Helgafell fasteignasala ehf.

Helgafell fasteignasala ehf.

Stórhöfði 33, 2. hæð, 110 Reykjavík

Hólmar Björn Sigþórsson

Stórhöfði 33, 2. hæð, 110 Reykjavík