Upplýsingar
Verðsaga
Byggt 2025
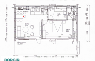
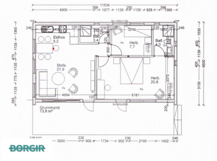
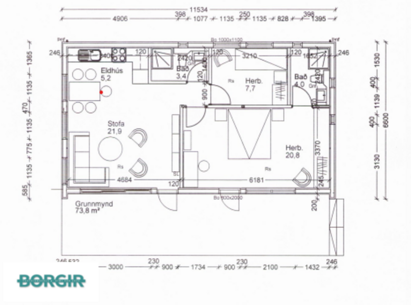
73,8 m²
3 herb.
2 baðherb.
2 svefnh.
Lýsing
Borgir fasteignasala kynnir eignina Hofsvík 7, skráð sem sumarhús í Grímsnesi nánar tiltekið í Hraunborgum í landi Sjómannadagsráðs í um 45 mín akstursfjarlægð frá Reykjavík. Birt stærð eignar er 73.8 fm. Fastanúmer 234-4320 Húsið stendur á 5100fm leigulóð
Um er að ræða samsett einingahús á steyptum sökkli sem er framleitt af Citic Construction og er stálgrindar einingahús með tveimur svefnherbergjum, tveimur baðherbergjum, eldhúsi/borðstofu/stofu, mikilli lofthæð og gólfsíðum gluggum.
Hiti í gólfi er frá Danfoss.
Halogen ljós eru í loftinu.
Neysluvatnslagnir og fráveitulagnir eru frá Glóra.
Pallur með góðum skjólvegg.
Öryggisgler er í öllu húsinu.
Stór og góður rafmagnspottur er út á palli og einnig 4-6 manna glæsileg gufa þar.
Húsið er sett saman af Gunnarsfell verktökum.
Studio F sá um arkitektúr og Akkur sf. sá um raflagnir.
Sjá nánari upplýsingar og byggingarlýsingu á söluyfirliti hér Söluyfrlit
Nánari upplýsingar veita:
Jóhanna M Jóhannsdóttir Löggiltur fasteignasali, [email protected] sími 8200788
Bjarklind Þór Löggiltur fasteignasali, [email protected] sími 6905123
Lóðarleigusamningur í gildi til 31.ágúst 2067 og er lóðarleiga rúmlega 134.000 kr. á ári.
Öryggishlið inn á svæði og öflugt sumarhúsafélag.
Sumahúsfélegsgjald er um 20.000.kr á ári.
Innfalið í því er reglulegur snjómokstur sem þýðir að hægt er að nota húsið yfir allt árið.
Hitaveita, rotþró í jörðu, góður vegur og bílastæði.
Stutt er í allskyns afþreyingu, útivstarsvæði og þjónustu. Á svæðinu eru t.d. sundlaug með heitum potti og eimbaði, hjólhýsastæði, æfingagolfvöllur, minigolf, sparkvöllur, leiksvæði fyrir börn og verslun sem starfrækt er að sumarlagi. Stærri golfvöllur, verslanir og margt fleira er í nokkura mínútna akstursfjarlægð.
Um er að ræða samsett einingahús á steyptum sökkli sem er framleitt af Citic Construction og er stálgrindar einingahús með tveimur svefnherbergjum, tveimur baðherbergjum, eldhúsi/borðstofu/stofu, mikilli lofthæð og gólfsíðum gluggum.
Hiti í gólfi er frá Danfoss.
Halogen ljós eru í loftinu.
Neysluvatnslagnir og fráveitulagnir eru frá Glóra.
Pallur með góðum skjólvegg.
Öryggisgler er í öllu húsinu.
Stór og góður rafmagnspottur er út á palli og einnig 4-6 manna glæsileg gufa þar.
Húsið er sett saman af Gunnarsfell verktökum.
Studio F sá um arkitektúr og Akkur sf. sá um raflagnir.
Sjá nánari upplýsingar og byggingarlýsingu á söluyfirliti hér Söluyfrlit
Nánari upplýsingar veita:
Jóhanna M Jóhannsdóttir Löggiltur fasteignasali, [email protected] sími 8200788
Bjarklind Þór Löggiltur fasteignasali, [email protected] sími 6905123
Lóðarleigusamningur í gildi til 31.ágúst 2067 og er lóðarleiga rúmlega 134.000 kr. á ári.
Öryggishlið inn á svæði og öflugt sumarhúsafélag.
Sumahúsfélegsgjald er um 20.000.kr á ári.
Innfalið í því er reglulegur snjómokstur sem þýðir að hægt er að nota húsið yfir allt árið.
Hitaveita, rotþró í jörðu, góður vegur og bílastæði.
Stutt er í allskyns afþreyingu, útivstarsvæði og þjónustu. Á svæðinu eru t.d. sundlaug með heitum potti og eimbaði, hjólhýsastæði, æfingagolfvöllur, minigolf, sparkvöllur, leiksvæði fyrir börn og verslun sem starfrækt er að sumarlagi. Stærri golfvöllur, verslanir og margt fleira er í nokkura mínútna akstursfjarlægð.
Í lögum um fasteignakaup nr. 40/2002 er kveðið á um ríka skoðunarskyldu kaupenda á fasteignum.
Vill Borgir því skora væntanlega kaupendur á að kynna sér vel ástand fasteigna fyrir kauptilboðsgerð og leita til þar til bæra sérfræðinga um nánari skoðun.
Gjöld sem kaupandi þarf að standa straum af vegna kaupanna:
1. Stimpilgjald af kaupsamningi - 0,8%(einstaklingar) 1.6% (lögaðilar) af heildarfasteignamati.
2. Þinglýsingargjald af kaupsamningi, veðskuldabréfi, mögulegu veðleyfi o.fl. - kr. 3.800 af hverju skjali.
3. Lántökugjald lánastofnunar - almennt 45-75 þús.kr. Nánari upplýsingar á heimasíðu lánastofnana.
4. Umsýslugjald til fasteignasölu kr. 70.000 mvsk.
Ár
Fasteignamat
Kaupverð
Stærð
Fermetraverð
24. ágú. 2018
2.820.000 kr.
30.000.000 kr.
73.8 m²
406.504 kr.
Byggt á upplýsingum úr Þjóðskrá Íslands frá 2006-2026