Upplýsingar
Byggt 2026
104,9 m²
4 herb.
1 baðherb.
3 svefnh.
Þvottahús
Útsýni
Sérinngangur
Hjólastólaaðgengi
Bílastæði
Lyfta
Opið hús: 23. apríl 2026
kl. 13:00
til 15:00
Opið hús: Lækjarmói 8 101, 603 Akureyri, Íbúð merkt: 02 01 01. Eignin verður sýnd fimmtudaginn 23. apríl 2026 milli kl. 13:00 og kl. 15:00.
Lýsing
Lækjarmói 8 - íbúð101 - Nýbygging
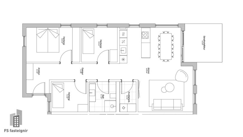
Mjög skemmtileg 4ra herbergja fullfrágengin 104,9m2 íbúð með sér þvottahúsi á 1. hæð í nýju fallegu fjölbýlishúsi sem er staðsett í nýju íbúðarhverfi, Móahverfi á Akureyri. Áhersla hefur verið lögð á efnisval og fallegt útlit, lyfta og bílakjallari.
*** Sýningaríbúð ***
* Loftskiptibúnaður * Hljóðplötur í lofti, betri hljóðvist * Gólfsíðir gluggar * Rennihurð á svölum * Gólfhiti
Eignin skiptist í forstofu, eldhús, borðstofu og stofu, í opnu rými, þrjú svefnherbergi, baðherbergi og þvottahús ásamt sér geymslu og bílastæði í kjallara.
Forstofa með vinilparketi á gólfi, fataskápur.
Eldhús, borðstofa og stofa eru í opnu rými, falleg sérsmíðuð innrétting frá TAK innréttinum, eyja með eldavél, eldhústæki eru frá AEG. Rennihurð út á verönd.
Herbergin eru þrjú öll með Vínilparketi á gólfum og fataskápum.
Baðherbergi með góðri innréttingu, spegill með lýsingu, sturta með glerskilrúmi. Flísar á gólfi og hluta af veggjum.
Þvottahús með flísum á gólfi.
Byggingaraðilinn, SS Byggir. Sjá heimasíðu SS - www.ssbyggir.is
- Íbúðinni fylgir stæði í rúmgóðri bílageymslu merkt B 03.
- Íbúðin afhendist með sérsmíðuðum innréttingum frá TAK innréttingum.
- Hljóðdempandi vínilparket er á gólfum á alrými og herbergjum. Flísar á gólfum baðherbergis og þvottahúss.
- Sérgeymsla í kjallara sem er 10,1m2 að stærð.
- Íbúðin afhendist fullfrágengin.
- Sérinngangur.
Til afhendingar vorið 2026
Kaupandi greiðir skipulagsgjald.
Smelltu hér fyrir nánari skilalýsingu
Sent úr Outlook fyrir iOS
Nánari upplýsingar veita:
Friðrik Sigþórsson sími 694-4220 [email protected]
Svala Jónsdóttir sími 663-5260 [email protected]
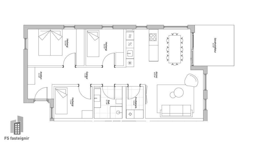
Mjög skemmtileg 4ra herbergja fullfrágengin 104,9m2 íbúð með sér þvottahúsi á 1. hæð í nýju fallegu fjölbýlishúsi sem er staðsett í nýju íbúðarhverfi, Móahverfi á Akureyri. Áhersla hefur verið lögð á efnisval og fallegt útlit, lyfta og bílakjallari.
*** Sýningaríbúð ***
* Loftskiptibúnaður * Hljóðplötur í lofti, betri hljóðvist * Gólfsíðir gluggar * Rennihurð á svölum * Gólfhiti
Eignin skiptist í forstofu, eldhús, borðstofu og stofu, í opnu rými, þrjú svefnherbergi, baðherbergi og þvottahús ásamt sér geymslu og bílastæði í kjallara.
Forstofa með vinilparketi á gólfi, fataskápur.
Eldhús, borðstofa og stofa eru í opnu rými, falleg sérsmíðuð innrétting frá TAK innréttinum, eyja með eldavél, eldhústæki eru frá AEG. Rennihurð út á verönd.
Herbergin eru þrjú öll með Vínilparketi á gólfum og fataskápum.
Baðherbergi með góðri innréttingu, spegill með lýsingu, sturta með glerskilrúmi. Flísar á gólfi og hluta af veggjum.
Þvottahús með flísum á gólfi.
Byggingaraðilinn, SS Byggir. Sjá heimasíðu SS - www.ssbyggir.is
- Íbúðinni fylgir stæði í rúmgóðri bílageymslu merkt B 03.
- Íbúðin afhendist með sérsmíðuðum innréttingum frá TAK innréttingum.
- Hljóðdempandi vínilparket er á gólfum á alrými og herbergjum. Flísar á gólfum baðherbergis og þvottahúss.
- Sérgeymsla í kjallara sem er 10,1m2 að stærð.
- Íbúðin afhendist fullfrágengin.
- Sérinngangur.
Til afhendingar vorið 2026
Kaupandi greiðir skipulagsgjald.
Smelltu hér fyrir nánari skilalýsingu
Sent úr Outlook fyrir iOS
Nánari upplýsingar veita:
Friðrik Sigþórsson sími 694-4220 [email protected]
Svala Jónsdóttir sími 663-5260 [email protected]