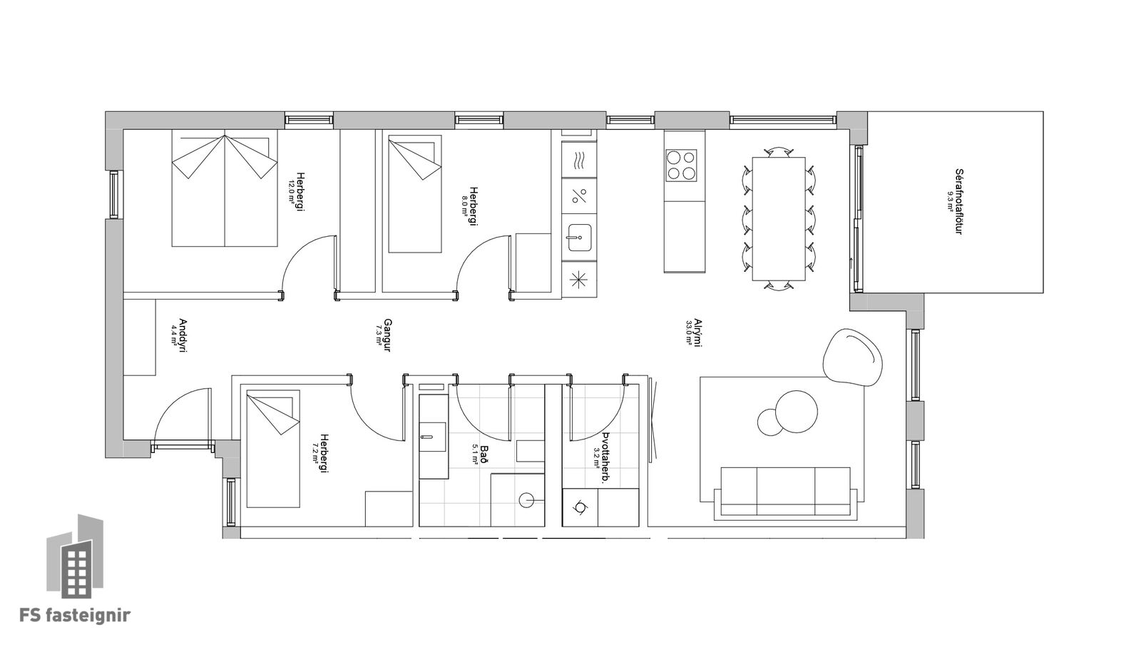
Lækjarmói 8, 603 Akureyri