Löggiltir fasteignasalar innan Félags fasteignasala:
Páll Þórólfsson
Guðbjörg Guðmundsdóttir
Jason Kristinn Ólafsson
Sverrir Pálmason
Vista
fjölbýlishús

Naustabryggja 29

110 Reykjavík

89.900.000 kr.

738.095 þ.kr./m2
Fasteignanúmer

F2248341

Fasteignamat

81.700.000 kr.

Brunabótamat

69.590.000 kr.

Áhvílandi

0 kr.

Arion banki – Reikna lán
Upplýsingar
Verðsaga
svg
Byggt 2001
svg
121,8 m²
svg
4 herb.
svg
1 baðherb.
svg
2 svefnh.
svg
Þvottahús
svg
Sameiginl. inngangur
svg
Bílastæði
Opið hús: 26. apríl 2026 kl. 13:00 til 13:45

Opið hús: Naustabryggja 29, 110 Reykjavík, Íbúð merkt: 03 03 01. Eignin verður sýnd sunnudaginn 26. apríl 2026 milli kl. 13:00 og kl. 13:45.

Lýsing

Hreiðar Levý lögg. fasteignasali og Betri Stofan Fasteignasala kynna afar fallega, opna og bjarta 121.8fm, 4ja herbergja íbúð á 2. hæðum með mikilli aukinni lofthæð í stofurými, tvennum svölum og sérmerktu bílastæði í bílakjallara að Naustabryggja 29, 110 Reykjavík. Íbúðin er á þriðju og efstu hæð í 6 íbúða stigagangi. Neðri hæðin skiptist í anddyri/hol, 2 svefnherbergi, baðherbergi, þvottahús, eldhús og stofu þar sem útgengt er út á suðursvalir. Úr holi er hringstigi sem leiðir upp á opna og rúmgóða stofu með útgengi út á svalir. Á efri hæðinni er einnig lokuð geymsla með upphengdum hillum. Á upphaflegum teikningum er teiknað rúmgott svefnherbergi á efri hæðinni með útgengi út á svalirnar (Sjá teikningu í lok myndagallerýs). Auðvelt að útfæra það og bæta við 3 svefnherberginu. Einstaklega falleg og vel hönnuð íbúð í hinu vinsæla sjarmerandi Bryggjuhverfi í Reykjavík. 

Húsið er byggt árið 2001 af BYGG, einu reyndasta og traustasta byggingarfélagi landsins, teiknað af Birni H. Jóhannessyni arkitekt.


Bókið skoðun hjá Hreiðari Levý, lögg. fasteignasala í síma 661-6021 eða [email protected]

!!!SMELLTU HÉR TIL AÐ SJÁ MYNDBAND AF EIGNINNI!!!


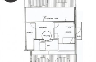
Eignin Naustabryggja 29 er skráð sem hér segir hjá FMR: Eign 224-8341, birt stærð 121.8 fm. Neðri hæð er merkt 03 0301, skráð 100fm. Efri hæð er merkt 03 0303, skráð 21,8fm. Eigninni fylgir einnig sérmerkt bílastæði í bílakjallara merkt 01 Y1. Allir séreignafermetrar eru innan íbúðar.

Aðalhæð:
Forstofa:
Komið er inn í forstofu með fataskápum.
Hol: Tengir saman öll rými neðri hæðar. Hringstigi frá holi upp á efri hæð.
Svefnherbergi I: Rúmgott. Gott barnaherbergi.
Svefnherbergi II: Rúmgott með innbyggðum fataskáp á heilum vegg.
Þvottahús: Flísar á gólfi og upphengdar hillur. Tengi fyrir þvottavél og þurrkara.
Baðherbergi: Flísalagt í hólf og gólf. Baðkar með sturtuaðstöðu, falleg innrétting með granít borðplötu og undirlímdum vaski, upphengt salerni og handklæðaofn. Opnanlegur gluggi.
Eldhús: Vönduð sérsmíðuð innréttingu frá Brúnás með efri og neðri skápum og granítborðplötu. Gott skápa og vinnupláss. Innbyggð uppþvottavél, ofn í vinnuhæð, innbyggt helluborð með upphengdum háf fyrir ofan. Gert er ráð fyrir ísskáp í innréttingu.
Stofa: Einstaklega fallegt stofurými með mikilli aukinni lofthæð og fallegum stórum gluggum sem snúa til suðurs. Útgengt út á rúmgóðar suðursvalir.

Efri hæð: Gengið er upp hringstiga frá holi. 
Stofa: Rúmgott opið stofurými með útgengi út á svalir til austurs. Býður upp á fjölbreytta nýtingarmöguleika, ma. að stúka af hluta og útbúa þriðja svefnherbergið (eins og er á upprunalegu teikningu), sem auka stofu, sjónvarpsstofu, skrifstofurými ofl.

Geymsla er inn af rýminu með góðum hillum.

Gólfefni: Eikarparket á gólfum að undanskyldu baðherbergi, eldhúsi og þvottahúsi sem eru með flísum á gólfi.

Sameign: Tvær sameiginlegar geymslur fyrir hjól og vagna á jarðhæð.

Bílastæðahús: Sérmerkt bílastæði í bílastæðahúsi fylgir eigninni.

Bryggjuhverfið er einstaklega fallegt og vel skipulagt með smábátahöfn í hverfinu sem gefur því sérstakan svip og sjarma. Smábátahöfnin tekur um 40-50 báta og hafa íbúar aðgang að höfninni. Þá býður hverfið upp á einstakt aðgengi að útiveru umhverfis fjörur, sand, báta og bryggjur. Þá skemmir ekki fyrir að svæðið allt þykir sérstaklega skjólsælt fyrir ríkjandi norðan og suðvestanáttum og býður upp á fallegar göngu- og hjólaleiðir til nærliggjandi svæða á borð við Geirsnef, Elliðaárdal og Grafarvog. Stutt er á stofnleiðir og skammt að sækja alla helstu þjónustu upp á Höfða s.s. heilsugæslu, matvöruverslun, mathöll o.m.fl.

Nánari upplýsingar veitir Hreiðar Levý Guðmundsson löggiltur fasteignasali, í síma 661- 6021, tölvupóstur [email protected].

Um skoðunar- og aðgæsluskyldu:
Í lögum um fasteignakaup nr. 40/2002 er kveðið á um ríka skoðunarskyldu kaupenda á fasteignum. Betri Stofan Fasteignasala bendir væntanlegum kaupendum á að kynna sér vel ástand fasteigna við skoðun og fyrir tilboðsgerð og ef þurfa þykir að leita til sérfræðinga um nánari ástandsskoðun.

Forsendur söluyfirlits:
Söluyfirlit er samið af fasteignasala í samræmi við ákvæði laga nr. 70/2015. Þær upplýsingar sem fram koma í söluyfirliti þessu eru sóttar í opinberar skrár, til seljanda sjálfs og eftir atvikum til húsfélags. Seljandi veitir upplýsingar um eign í samræmi við upplýsingaskyldu laga um fasteignakaup nr. 40/2002, og ábyrgist að þær séu réttar. Fasteignasali sannreynir að þær upplýsingar séu réttar með sjónskoðun á eigninni. Fasteignasali getur ekki fullyrt um ástand og eiginleika þeirra hluta fasteigna sem ekki eru aðgengilegir og sjást ekki berum augum, t.d. lagnir, dren, skólp og þak. Það sama á við um staðhæfingar seljanda eignar um viðhald og einstaka framkvæmdir.


Gjöld sem kaupandi þarf að standa straum af ef að kaupum verður:
1. Stimpilgjald af fasteignamati fasteignar er 0.8%, en 0,4% fyrir fyrstu kaup og 1,6% fyrir lögaðila.  
2. Þinglýsingargjald: kaupsamningi, skuldabréfi, veðleyfi, afsali o.s.frv. er kr. 3.800 af hverju skjali.
3. Lántökukostnaður samkvæmt verðskrá viðkomandi lánastofnunar.
4. Umsýslugjald til fasteignasölu skv. gjaldskrá.

Skoðunarskylda kaupanda:
Í lögum um fasteignakaup nr. 40/2002 er kveðið á um ríka skoðunarskyldu kaupenda á fasteignum. Betri Stofan fasteignasala bendir væntanlegum kaupendum á að kynna sér vel ástand fasteigna við skoðun og fyrir tilboðsgerð og ef þurfa þykir að leita til sérfræðinga um nánari ástandsskoðun.

Betri Stofan Fasteignasala

Betri Stofan Fasteignasala

Borgartúni 30, 105 Reykjavík
phone
Ár
Fasteignamat
Kaupverð
Stærð
Fermetraverð
15. ágú. 2024
74.200.000 kr.
81.500.000 kr.
30301 m²
2.690 kr.
20. sep. 2022
54.050.000 kr.
73.900.000 kr.
121.8 m²
606.732 kr.
10. des. 2013
26.700.000 kr.
31.200.000 kr.
121.8 m²
256.158 kr.
11. nóv. 2011
22.850.000 kr.
30.500.000 kr.
121.8 m²
250.411 kr.
Byggt á upplýsingum úr Þjóðskrá Íslands frá 2006-2026
Betri Stofan Fasteignasala

Betri Stofan Fasteignasala

Borgartúni 30, 105 Reykjavík
phone