Löggiltir fasteignasalar innan Félags fasteignasala:
Sigurður Samúelsson
Andri Sigurðsson
Sveinn Eyland
Ingibjörg Agnes Jónsdóttir
Guðrún Diljá Lúðvíksdóttir
Monika Hjálmtýsdóttir
Júlíus Jóhannsson
Freyja Rúnarsdóttir
Jón Óskar Karlsson
Davíð Matthíasson
Erla Friðriksdóttir
Vista
fjölbýlishús

Andrésbrunnur 5

113 Reykjavík

72.900.000 kr.

773.885 þ.kr./m2
Fasteignanúmer

F2262728

Fasteignamat

70.100.000 kr.

Brunabótamat

53.340.000 kr.

Áhvílandi

0 kr.

Arion banki – Reikna lán
Upplýsingar
Verðsaga
svg
Byggt 2003
svg
94,2 m²
svg
3 herb.
svg
1 baðherb.
svg
2 svefnh.
svg
Þvottahús
svg
Sameiginl. inngangur
svg
Bílastæði
svg
Lyfta
svg
Laus strax
Opið hús: 4. maí 2026 kl. 17:00 til 17:30

Opið hús: Andrésbrunnur 5, 113 Reykjavík, Íbúð merkt: 03 02 03. Eignin verður sýnd mánudaginn 4. maí 2026 milli kl. 17:00 og kl. 17:30.

Lýsing

**** Laus við kaupsamning ****

Landmark fasteignamiðlun kynnir:

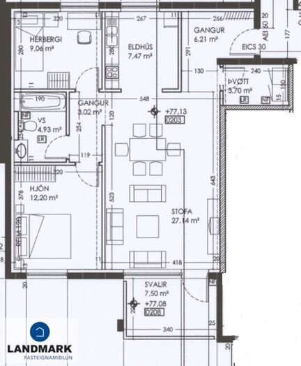
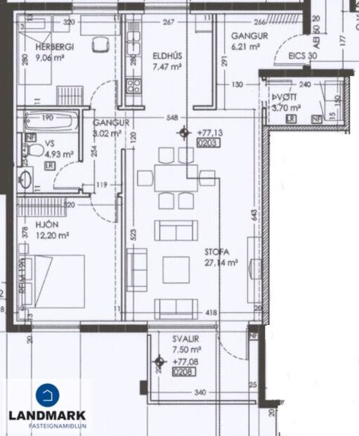
Falleg 3ja herbergja 94,2 m² íbúð á 2. hæð ásamt stæði í lokaðri bílageymslu.  Lyfta í húsinu.  Eignin skiptist í forstofu, þvottahús, stofu/borðstofu, eldhús, tvö svefnherbergi, baðherbergi og sérgeymslu. Birt stærð eignarinnar er 94,2 m², íbúð er skráð 87 m² ásamt geymslu 7,2 m².  Stæði í lokaðri bílageymslu fylgir íbúðinni. Laus við kaupsamning. 


Nánai upplýsingar veita:
Þórarinn Thorarensen sölustjóri s. 770-0309 / [email protected]
Sveinn Eyland lögg. fast s. 6 900 820 / [email protected]

Nánari lýsing:
Forstofa: Flísar á gólfi og fataskápur.
Þvottahús: Innan íbúðar og þar er tengi fyrir þvottavél.  Skolvaskur.  Flísar á gólfi. 
Eldhús: Falleg innrétting með góðu skápaplássi. Bakaraofn, helluborð með viftu fyrir ofan. Gert er ráð fyrir uppþvottavél í innréttingu. Flísar á gólfi.
Stofa/borðstofa: Rúmgóð og björt stofa/borðstofa, með útgengt út á svalir. Parket á gólfi.
Hjónaherbergi: Rúmgott hjónaherbergi með góðum fataskáp. Parket á gólfi.
Barnaherbergi: Parket á gólfi, fataskápur.
Baðherbergi: Flísar á gólfi og veggjum. Falleg baðinnrétting í kringum handlaug.  Baðkar með sturtuaðstöðu. 
Stæði í bílageymslu: Stæði í bílageymslu á jarðhæð hússins.  
Sérgeymsla í sameign ásamt sameiginlegri hjóla- og vagnageymslu. Lyfta er í húsinu.

 

Skoðunar- og aðgæsluskylda:
Lög um fasteignakaup nr. 40/2002 kveða á um að kaupendur þurfi að skoða fasteignir vel áður en tilboð er gert. LANDMARK fasteignamiðlun ráðleggur kaupendum að skoða ástand eignar og leita sér aðstoðar sérfræðinga ef þörf er á nánari skoðun.

Söluyfirlit:
Söluyfirlit er gert af fasteignasala samkvæmt lögum nr. 70/2015. Upplýsingar í yfirlitinu eru fengnar úr opinberum skrám, frá seljanda og ef þarf frá húsfélagi. Fasteignasali sannreynir upplýsingar með skoðun á eigninni en getur ekki sannreynt ástand þess sem ekki er aðgengilegt eða sýnilegt, t.d. lagnir, dren, skólp og þak.

Gjöld sem kaupandi þarf að greiða:
1. Stimpilgjald: 0,8% af fasteignamati (0,4% fyrir fyrstu kaup) og 1,6% fyrir lögaðila.
2. Þinglýsingargjald: 3.800 kr. fyrir hvert skjal.
3. Lántökugjald: Fer eftir gjaldskrá lánveitanda.
3. Þjónustugjald kaupanda: 79.000 kr. m/vsk.
3. Skipulagsgjald: Ef um nýbyggingu er að ræða, 0,3% af brunabótamáti þegar það er lagt á.

Heimasíða LANDMARK
Pantaðu frítt söluverðmat

img
Sveinn Eyland
Lögg.fasteignasali innan félags fasteignasala
LANDMARK fasteignamiðlun
Hlíðasmári 2, 201 Kópavogur
LANDMARK fasteignamiðlun

LANDMARK fasteignamiðlun

Hlíðasmári 2, 201 Kópavogur
phone
img

Sveinn Eyland

Hlíðasmári 2, 201 Kópavogur
Ár
Fasteignamat
Kaupverð
Stærð
Fermetraverð
1. ágú. 2018
34.000.000 kr.
39.300.000 kr.
94.2 m²
417.197 kr.
24. feb. 2016
27.050.000 kr.
31.300.000 kr.
94.2 m²
332.272 kr.
14. okt. 2011
18.650.000 kr.
22.500.000 kr.
94.2 m²
238.854 kr.
12. júl. 2011
18.650.000 kr.
25.000.000 kr.
94.2 m²
265.393 kr.
Byggt á upplýsingum úr Þjóðskrá Íslands frá 2006-2026
LANDMARK fasteignamiðlun

LANDMARK fasteignamiðlun

Hlíðasmári 2, 201 Kópavogur
phone

Sveinn Eyland

Hlíðasmári 2, 201 Kópavogur