Upplýsingar
Verðsaga
Byggt 1998
70 m²
2 herb.
1 baðherb.
1 svefnh.
Þvottahús
Sérinngangur
Opið hús: 29. apríl 2026
kl. 16:15
til 16:45
Opið hús: Snægil 17 , 603 Akureyri, Íbúð merkt: 09 02 01. Eignin verður sýnd miðvikudaginn 29. apríl 2026 milli kl. 16:15 og kl. 16:45.
Lýsing
Eignaver 460-6060
Snægil 17 íbúð 201 Akureyri. ***** OPIÐ HÚS MIÐVIKUIDAGINN 29.APRÍL MILLI KL:16:15 OG 16:45 *****
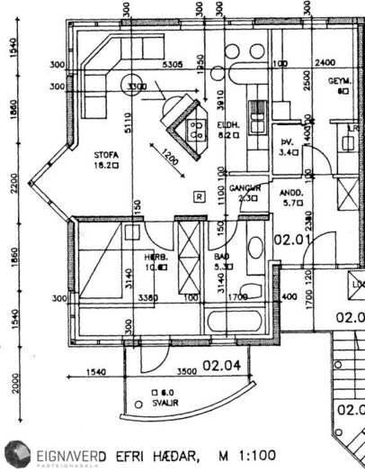
Opin, björt og falleg 2-3ja herbergja íbúð á annarri hæð í góðu fjórbýli á frábærum stað í Giljahverfi. Íbúðin er 70,0 fm. auk hlutdeildar í sameign og lóðarréttundum.
ATH: Þvottavél, þurrkari og ísskápur fylgir með sölu á íbúðinni.
Nánari lýsing:
Forstofa, flísar á gólfi og góður fataskápur þar.
Þvottahús er innaf forstofu, rúmgóð og fín innrétting þar, flísar á gólfi.
Hol/gangur, flísar á gólfi.
Baðherbergið er rúmgott og fínt, flísar á gólfi og á veggmum að mestu. Hvít innrétting, sturta, handklæðaofn, og gluggi með opnanlegu fagi.
Hjónaherbergið er með flísum á gólfi og þar er fataskápur. Útgengt frá hjónaherbergi út á fínar svalir til vestur, þar er gott útsýni !
Barnaherbergið/geymsla ( skráð sem geymsla á teikningu en nýtist sem herbergi í dag ) er inn af eldhúsi, flísar á gólfi.
Eldhúsinnréttingin er spónlögð, flísar á gólfi í eldhúsi og einnig á milli skápa.
Stofan er björt og góð, flísar á gólfi þar.
Annað:
- Opin og björt íbúð þar sem fermetrar nýtast sérlega vel.
- Frábær staðsetning, rétt hjá grunn- og leikskóla.
- Tvær sameiginlegar útigeymslur ( önnur er einnig inntaks og lagnarými )
- Geymsluloft ( sameiginlegt ) er yfir íbúðinni, fellistigi.
- Mjög gott útsýni úr íbúð.
- Snjóbræðlsla í útitröppum.
- Fjölskylduvænt og gott hverfi.
Eignin er í einkasölu hjá Eignaveri.
Upplýsingar veita eftirtaldir aðilar:
Begga s: 845-0671 / [email protected]
Tryggvi s: 862-7919 / [email protected]
Arnar s: 898-7011 / [email protected]
Snægil 17 íbúð 201 Akureyri. ***** OPIÐ HÚS MIÐVIKUIDAGINN 29.APRÍL MILLI KL:16:15 OG 16:45 *****
Opin, björt og falleg 2-3ja herbergja íbúð á annarri hæð í góðu fjórbýli á frábærum stað í Giljahverfi. Íbúðin er 70,0 fm. auk hlutdeildar í sameign og lóðarréttundum.
ATH: Þvottavél, þurrkari og ísskápur fylgir með sölu á íbúðinni.
Nánari lýsing:
Forstofa, flísar á gólfi og góður fataskápur þar.
Þvottahús er innaf forstofu, rúmgóð og fín innrétting þar, flísar á gólfi.
Hol/gangur, flísar á gólfi.
Baðherbergið er rúmgott og fínt, flísar á gólfi og á veggmum að mestu. Hvít innrétting, sturta, handklæðaofn, og gluggi með opnanlegu fagi.
Hjónaherbergið er með flísum á gólfi og þar er fataskápur. Útgengt frá hjónaherbergi út á fínar svalir til vestur, þar er gott útsýni !
Barnaherbergið/geymsla ( skráð sem geymsla á teikningu en nýtist sem herbergi í dag ) er inn af eldhúsi, flísar á gólfi.
Eldhúsinnréttingin er spónlögð, flísar á gólfi í eldhúsi og einnig á milli skápa.
Stofan er björt og góð, flísar á gólfi þar.
Annað:
- Opin og björt íbúð þar sem fermetrar nýtast sérlega vel.
- Frábær staðsetning, rétt hjá grunn- og leikskóla.
- Tvær sameiginlegar útigeymslur ( önnur er einnig inntaks og lagnarými )
- Geymsluloft ( sameiginlegt ) er yfir íbúðinni, fellistigi.
- Mjög gott útsýni úr íbúð.
- Snjóbræðlsla í útitröppum.
- Fjölskylduvænt og gott hverfi.
Eignin er í einkasölu hjá Eignaveri.
Upplýsingar veita eftirtaldir aðilar:
Begga s: 845-0671 / [email protected]
Tryggvi s: 862-7919 / [email protected]
Arnar s: 898-7011 / [email protected]
Ár
Fasteignamat
Kaupverð
Stærð
Fermetraverð
22. jún. 2023
33.300.000 kr.
39.000.000 kr.
95 m²
410.526 kr.
Byggt á upplýsingum úr Þjóðskrá Íslands frá 2006-2026