Löggiltir fasteignasalar innan Félags fasteignasala:
Hannes Steindórsson
Bogi Molby Pétursson
Guðrún Antonsdóttir
Heimir Hallgrímsson
Hrafnkell P. H. Pálmason
Viðar Marinósson
Elías Haraldsson
Kristján Þórir Hauksson
Albert Bjarni Úlfarsson
Ragnar Þorsteinsson
Þórey Ólafsdóttir
Andri Freyr Halldórsson
Upplýsingar
Verðsaga
Byggt 2002
97,4 m²
3 herb.
1 baðherb.
2 svefnh.
Þvottahús
Sameiginl. inngangur
Bílastæði
Opið hús: 22. apríl 2026
kl. 17:00
til 17:30
Opið hús: Naustabryggja 12, 110 Reykjavík, Íbúð merkt: 0101. Eignin verður sýnd miðvikudaginn 22. apríl 2026 milli kl. 17:00 og kl. 17:30. Guðrún Antonsdóttir fasteignasali s. 621-2020, [email protected]
Lýsing
Guðrún Antonsdóttir fasteignasali og LIND fasteignasala kynna Rúmgóða 3ja herbergja íbúð á jarðhæð með sér verönd. Sér þvottahús og bílastæði í lokuðum bílakjallara. Hús byggt af BYGG.
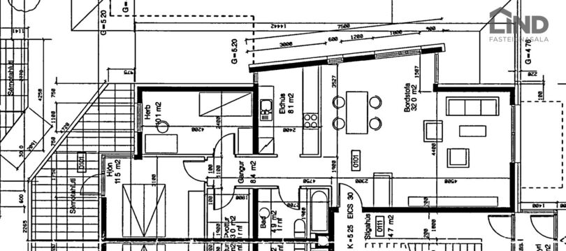
Eignin skiptist í: Forstofu, eldhús, stofu, tvö svefnherbergi, baðherbergi, þvottahús og geymslu. Auk bílastæðis í bílakjallara.
Nánari lýsing:
Forstofa með fataskáp sem nær upp í loft og flísar á gólfi.
Eldhús með fallegri viðar innréttingu með efri og neðri skápum, flísar er á milli efri og neðri skápa. Bakaraofn í vinnuhæð og tengi fyrir uppþvottavél. Keramik helluborð og háfur. Flísar eru á gólfi.
Stofan er björt með gólfsíða glugga sem snúa í tvær áttir. Rúmar vel stofu og borðstofu. Parket á gólfi.
Svefnherbergin eru tvö með fataskápum og parketi á gólfi. Gengið er inn á sér afnotareit,
Baðherbergið er með innréttingu undir og við handlaug, baðkari með sturtu aðstöðu, upphengdu salerni, ofni og flísalagt í hólf og gólf.
Þvottahús er innan íbúðarinnar með flísum á gólfi. Aðstaða fyrir þvottavél og þurrkara
Sérgeymsla er í sameign húss. 6,7fm
Bílastæði nr.32 í lokuðu bílastæðahúsi. Búið er að leggja grunninn fyrir rafhleðslustöð
Hjóla- og vagnageymsla: sameiginleg í kjallara.
Húsgjöld eignarinnar eru 37.270 kr á mánuði, innifalið í húsgjöldum er almennur rekstur, hiti á íbúð, rafmagn í sameign, húseigandatrygging og þrif sameignar.
Samkvæmt fasteignamati ríkissins er íbúð á hæð skráð 90,7 fm og geymsla í kjallara skráðar 6,7 fm samtals 97,4 fm, ásamt sameignarrými í kjallara og sér merkt bílastæði í lokuðu bílastæðahúsi
Frekari upplýsingar veitir Guðrún Antonsdóttir fasteignasali í síma 621-2020 eða á [email protected]
Gjöld sem kaupandi þarf að standa straum af vegna kaupanna:
1. Stimpilgjald af kaupsamningi - 0.8% af heildarfasteignamati / 1.6% fyrir lögaðila, (0.4% við fyrstu kaup einstaklinga).
2. Þinglýsingagjald af kaupsamningi, veðskuldabréfi, veðleyfi o.fl.- kr. 3.600 af hverju skjali.
3. Lántökugjald lánastofnunar - almennt kr. 50.000 - 75.000. Sjá nánar á heimsíðum lánastofnanna.
4. Umsýsluþóknun til fasteignasölu kr. 74.900 kr.
Eignin skiptist í: Forstofu, eldhús, stofu, tvö svefnherbergi, baðherbergi, þvottahús og geymslu. Auk bílastæðis í bílakjallara.
Nánari lýsing:
Forstofa með fataskáp sem nær upp í loft og flísar á gólfi.
Eldhús með fallegri viðar innréttingu með efri og neðri skápum, flísar er á milli efri og neðri skápa. Bakaraofn í vinnuhæð og tengi fyrir uppþvottavél. Keramik helluborð og háfur. Flísar eru á gólfi.
Stofan er björt með gólfsíða glugga sem snúa í tvær áttir. Rúmar vel stofu og borðstofu. Parket á gólfi.
Svefnherbergin eru tvö með fataskápum og parketi á gólfi. Gengið er inn á sér afnotareit,
Baðherbergið er með innréttingu undir og við handlaug, baðkari með sturtu aðstöðu, upphengdu salerni, ofni og flísalagt í hólf og gólf.
Þvottahús er innan íbúðarinnar með flísum á gólfi. Aðstaða fyrir þvottavél og þurrkara
Sérgeymsla er í sameign húss. 6,7fm
Bílastæði nr.32 í lokuðu bílastæðahúsi. Búið er að leggja grunninn fyrir rafhleðslustöð
Hjóla- og vagnageymsla: sameiginleg í kjallara.
Húsgjöld eignarinnar eru 37.270 kr á mánuði, innifalið í húsgjöldum er almennur rekstur, hiti á íbúð, rafmagn í sameign, húseigandatrygging og þrif sameignar.
Samkvæmt fasteignamati ríkissins er íbúð á hæð skráð 90,7 fm og geymsla í kjallara skráðar 6,7 fm samtals 97,4 fm, ásamt sameignarrými í kjallara og sér merkt bílastæði í lokuðu bílastæðahúsi
Frekari upplýsingar veitir Guðrún Antonsdóttir fasteignasali í síma 621-2020 eða á [email protected]
Gjöld sem kaupandi þarf að standa straum af vegna kaupanna:
1. Stimpilgjald af kaupsamningi - 0.8% af heildarfasteignamati / 1.6% fyrir lögaðila, (0.4% við fyrstu kaup einstaklinga).
2. Þinglýsingagjald af kaupsamningi, veðskuldabréfi, veðleyfi o.fl.- kr. 3.600 af hverju skjali.
3. Lántökugjald lánastofnunar - almennt kr. 50.000 - 75.000. Sjá nánar á heimsíðum lánastofnanna.
4. Umsýsluþóknun til fasteignasölu kr. 74.900 kr.
Ár
Fasteignamat
Kaupverð
Stærð
Fermetraverð
15. nóv. 2018
36.700.000 kr.
40.700.000 kr.
97.4 m²
417.864 kr.
12. nóv. 2014
22.700.000 kr.
27.900.000 kr.
97.4 m²
286.448 kr.
Byggt á upplýsingum úr Þjóðskrá Íslands frá 2006-2026