Upplýsingar
Verðsaga
Byggt 2024
80 m²
3 herb.
1 baðherb.
2 svefnh.
Þvottahús
Sérinngangur
Opið hús: 18. mars 2026
kl. 16:30
til 17:00
OPIÐ HÚS miðvikudaginn 18.mars . frá kl.16.30 - 17.00 við Krossvelli 4 íbúð 104 á Akranesi, allir velkomnir. Svala Haraldsdóttir lgf. verður á staðnum.
Lýsing
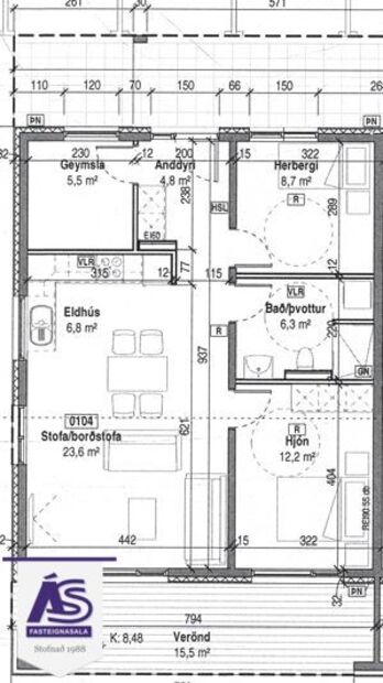
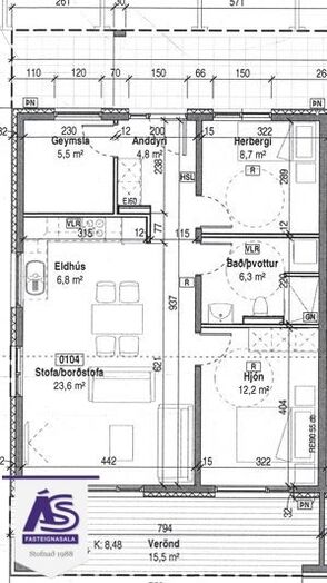
Einstaklega falleg og vel skipulögð 3-4 ra herbergja endaíbúð á jarðhæð með sérafnota fleti og sérinngangi í litlu tveggja hæða fjölbýli við Krossvelli 4 í Hvalfjarðarsveit.
Eignin er alls 80 fm og allir fm innan eignar skv. fasteignaskrá.
Nánari lýsing:
Forstofa með flísum á gólfi og skáp.
Eldhús og stofa í björtu alrými með útgengt út á sérafnotaflöt, parket á gólfi.
Eldhús með hvitri innréttingu, ofn í vinnuhæð, stæði fyrir uppþvottavél og ísskáp.
Tvö svefnherbergi með parket á gólfi og fataskáp.
Baðherbergi með "walk-in" sturtu, hvít vaskinnrétting, speglaskápur, handklæðaofn og stæði fyrir þvottavél og þurrkara.
Geymsla/herbergi með glugga sem hægt er að nýta sem þriðja herbergið ( 5,5 fm).
- Sérinngangur.
- Innréttingar eru frá IKEA og eldhústæki frá BYKO.
- Innihurðar frá Húsasmiðjunni.
- Siemens helluborð og tvöfaldur 76 ltr Samsung ofn.
- Búið að setja upp hleðslustaura fyrir rafmagnsbíla.
Falleg og björt eign á friðsælum stað þar sem þó er stutt er að sækja þjónustu á Akranes eins og verslanir og þjónustu.
Stutt í fallegar gönguleiðir meðfram sjónum og víðar.
Nánari upplýsingar veitir Svala Haraldsdóttir löggiltur fasteignasali í s. 820-9699 / [email protected]
Ás fasteignasala er rótgróið fyrirtæki sem hefur veitt alla almenna þjónustu í fasteignaviðskiptum frá árinu 1988.
www.facebook.com/asfasteignasala
www.instagram.com/as_fasteignasala
www.as.is
Eignin er alls 80 fm og allir fm innan eignar skv. fasteignaskrá.
Nánari lýsing:
Forstofa með flísum á gólfi og skáp.
Eldhús og stofa í björtu alrými með útgengt út á sérafnotaflöt, parket á gólfi.
Eldhús með hvitri innréttingu, ofn í vinnuhæð, stæði fyrir uppþvottavél og ísskáp.
Tvö svefnherbergi með parket á gólfi og fataskáp.
Baðherbergi með "walk-in" sturtu, hvít vaskinnrétting, speglaskápur, handklæðaofn og stæði fyrir þvottavél og þurrkara.
Geymsla/herbergi með glugga sem hægt er að nýta sem þriðja herbergið ( 5,5 fm).
- Sérinngangur.
- Innréttingar eru frá IKEA og eldhústæki frá BYKO.
- Innihurðar frá Húsasmiðjunni.
- Siemens helluborð og tvöfaldur 76 ltr Samsung ofn.
- Búið að setja upp hleðslustaura fyrir rafmagnsbíla.
Falleg og björt eign á friðsælum stað þar sem þó er stutt er að sækja þjónustu á Akranes eins og verslanir og þjónustu.
Stutt í fallegar gönguleiðir meðfram sjónum og víðar.
Nánari upplýsingar veitir Svala Haraldsdóttir löggiltur fasteignasali í s. 820-9699 / [email protected]
Ás fasteignasala er rótgróið fyrirtæki sem hefur veitt alla almenna þjónustu í fasteignaviðskiptum frá árinu 1988.
www.facebook.com/asfasteignasala
www.instagram.com/as_fasteignasala
www.as.is
Ár
Fasteignamat
Kaupverð
Stærð
Fermetraverð
15. apr. 2024
34.700.000 kr.
53.500.000 kr.
80 m²
668.750 kr.
Byggt á upplýsingum úr Þjóðskrá Íslands frá 2006-2026