Upplýsingar
Verðsaga
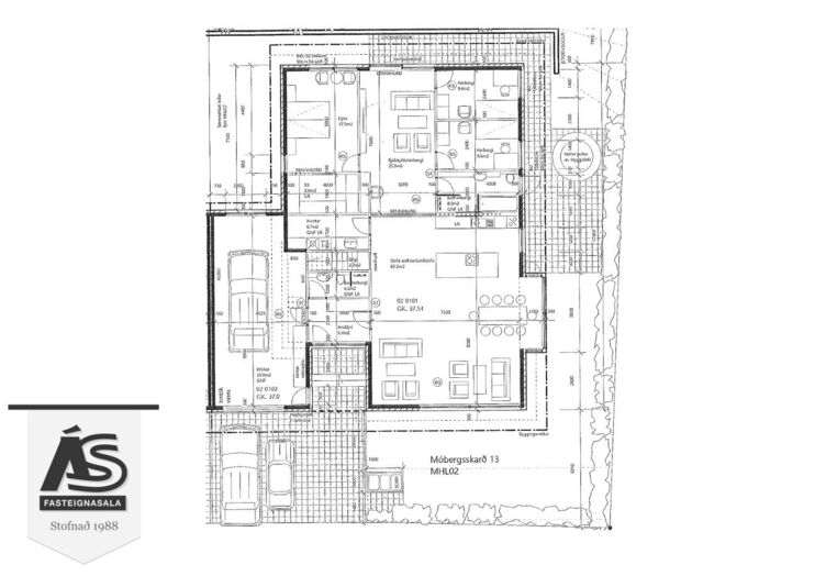
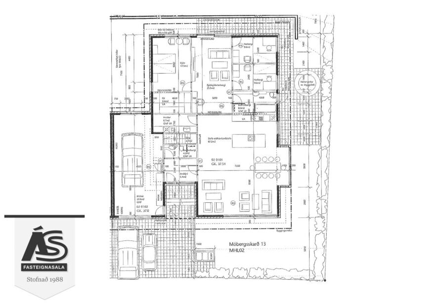
251,1 m²
5 herb.
2 baðherb.
3 svefnh.
Bílskúr
Sérinngangur
Lýsing
Glæsilegt 251,1 fm parhús á tveimur hæðum með bílskúr við Móbergsskarð 13 í Skarðshlíð, Hafnarfirði.
Eignin skiptist þannig neðri hæðin er 189,8 fm, efri hæðin 16,7 fm og bílskúrinn 44,6 fm, samtals 251,1 fm skv. HMS.
Húsið skilast rúmlega fokhelt að innan og fullklárað að utan. Sjá nánar um skil í skilalýsingu seljanda.
- Steinsteyptir útveggir, einangraðir með steinull og klæddir með ál- og viðarklæðningu
- Vandaðir ál-/trégrindargluggar með tvöföldu einangrunargleri
- Skilast með gólfhita í öllu húsinu
- Lofthæð í aðalrýmum er allt að 5 metrar – bjart og opið rými
- Svalir með steyptum portvegg, útiljósi og rafmagnstengli
- Fullfrágengin lóð með hellulögðum bílastæðum (með snjóbræðslu) og gróðri
- Bílskúr með góðum geymslumöguleikum
- Mögulegt er að setja loftræstikerfi og ofnakerfi, til viðbótar við gólfhita
Húsið er hannað af Gunnlaugi O. Johnson arkitekt og byggt af Klettabyggð fasteignum ehf.
Frábær staðsetning þar sem stutt er í alla helstu þjónustu og falleg útivistarsvæði.
Nánari upplýsingar veitir Aron Freyr Eiríksson löggiltur fasteignasali í síma 772-7376 / [email protected]
Ás fasteignasala er rótgróið fyrirtæki sem hefur veitt alla almenna þjónustu í fasteignaviðskiptum frá árinu 1988.
www.facebook.com/asfasteignasala
www.instagram.com/as_fasteignasala
www.as.is
Eignin skiptist þannig neðri hæðin er 189,8 fm, efri hæðin 16,7 fm og bílskúrinn 44,6 fm, samtals 251,1 fm skv. HMS.
Húsið skilast rúmlega fokhelt að innan og fullklárað að utan. Sjá nánar um skil í skilalýsingu seljanda.
- Steinsteyptir útveggir, einangraðir með steinull og klæddir með ál- og viðarklæðningu
- Vandaðir ál-/trégrindargluggar með tvöföldu einangrunargleri
- Skilast með gólfhita í öllu húsinu
- Lofthæð í aðalrýmum er allt að 5 metrar – bjart og opið rými
- Svalir með steyptum portvegg, útiljósi og rafmagnstengli
- Fullfrágengin lóð með hellulögðum bílastæðum (með snjóbræðslu) og gróðri
- Bílskúr með góðum geymslumöguleikum
- Mögulegt er að setja loftræstikerfi og ofnakerfi, til viðbótar við gólfhita
Húsið er hannað af Gunnlaugi O. Johnson arkitekt og byggt af Klettabyggð fasteignum ehf.
Frábær staðsetning þar sem stutt er í alla helstu þjónustu og falleg útivistarsvæði.
Nánari upplýsingar veitir Aron Freyr Eiríksson löggiltur fasteignasali í síma 772-7376 / [email protected]
Ás fasteignasala er rótgróið fyrirtæki sem hefur veitt alla almenna þjónustu í fasteignaviðskiptum frá árinu 1988.
www.facebook.com/asfasteignasala
www.instagram.com/as_fasteignasala
www.as.is
Ár
Fasteignamat
Kaupverð
Stærð
Fermetraverð
2. apr. 2025
15.550.000 kr.
87.000.000 kr.
20101 m²
4.328 kr.
Byggt á upplýsingum úr Þjóðskrá Íslands frá 2006-2026