Upplýsingar
122,5 m²
1 herb.
1 baðherb.
Lýsing
Nýtt og glæsilegt staðsteypt iðnaðarhúsnæði við Straumhellu 8 í Hafnarfirði.
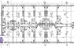
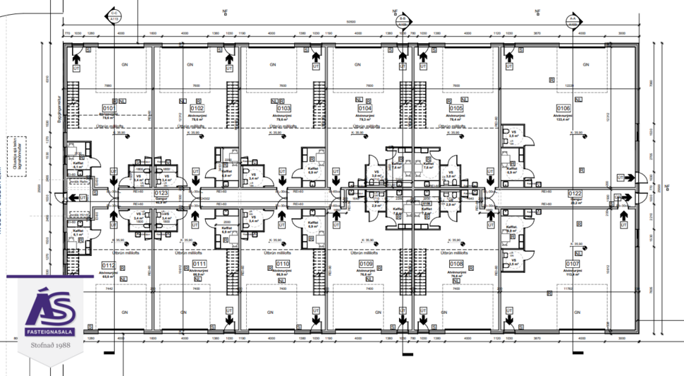
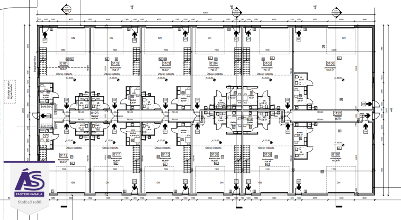
Um er að ræða 12 einingar, flest með millilofti.
ATH. engin vsk-kvöð er á húsinu.
Stærð: 121,8 - 136 fm.
Afhending: Desember 2025 eða fyrr
Verð: 48,9 mkr. - 55,5 mkr.
Nánari lýsing:
Bil 112:
84,4 fm gólfflötur með kaffistofu og salerni ásamt 38,1 fm millilofti, samtals 122,5 fm skv. HMS.
- Kaffistofa og salerni í hverju bili
- 18 sameiginleg bílastæði, möguleiki á að setja upp hleðslustöð.
- Steinsteyptir útveggir, einangrað og klætt að utan með álklæðningu og Rockpanel byggingarplötum.
- Burðarvirki þaks úr límtré
- Þak úr samlokueiningum frá Byko
- Gluggar og inngönguhurðir frá Byko
- Innkeyrsluhurðar eru 4x4m, mótordrifnar með tveimur fjarstýringum frá Héðni.
- Lóð fullfrágengin skv. teikningum.
- Gólf eru steypt og vélslípuð.
- Hitað upp með hefðbundnu miðstöðvarkerfi.
- Milliloft úr 22mm gólfplötum frá Byko.
- Léttir innveggir eru byggðir úr timbri og klæddir beggja vegna með gipsplötum.
- Léttir innveggir eru grunnaðir og málaðir með plastmálningu
- Borðplata verður sett upp í kaffistofu með vask og blöndunartækjum.
- Innihurðir eru frá Parka.
- Olíuskilja er uppsett skv teikingum.
- Salerni vegghengt. Hvít postulíntæki.
- Möguleiki á að setja upp uppþvottavél í kaffistofu.
- Útsog úr hverju bili úr kaffistofu og salerni.
Sjá nánari upplýsingar í skilalýsingu verktaka.
Verktaki verkefnisins er traustur verktaki til margra ára, Fjarðarmót ehf.
Bókið skoðun og fáið nánari upplýsingar hjá sölumönnum Ás fasteignasölu:
Stefán Rafn Sigurmannsson löggiltur fasteignasali s. 655-7000 / [email protected]
Arnór Daði Eiríksson aðsoðarmaður fasteignasala s. 777-0939 / [email protected]
Svala Haraldsdóttir löggiltur fasteignasali s. 820-9699 / [email protected]
Aron Freyr Eiríksson löggiltur fasteignasali s. 772-7376 / [email protected]
Frábær staðsetning þar sem stutt er í helstu þjónustu og falleg útivistarsvæði.
Ás fasteignasala er rótgróið fyrirtæki sem hefur veitt alla almenna þjónustu í fasteignaviðskiptum frá árinu 1988.
www.facebook.com/asfasteignasala
www.instagram.com/as_fasteignasala
www.as.is
Um er að ræða 12 einingar, flest með millilofti.
ATH. engin vsk-kvöð er á húsinu.
Stærð: 121,8 - 136 fm.
Afhending: Desember 2025 eða fyrr
Verð: 48,9 mkr. - 55,5 mkr.
Nánari lýsing:
Bil 112:
84,4 fm gólfflötur með kaffistofu og salerni ásamt 38,1 fm millilofti, samtals 122,5 fm skv. HMS.
- Kaffistofa og salerni í hverju bili
- 18 sameiginleg bílastæði, möguleiki á að setja upp hleðslustöð.
- Steinsteyptir útveggir, einangrað og klætt að utan með álklæðningu og Rockpanel byggingarplötum.
- Burðarvirki þaks úr límtré
- Þak úr samlokueiningum frá Byko
- Gluggar og inngönguhurðir frá Byko
- Innkeyrsluhurðar eru 4x4m, mótordrifnar með tveimur fjarstýringum frá Héðni.
- Lóð fullfrágengin skv. teikningum.
- Gólf eru steypt og vélslípuð.
- Hitað upp með hefðbundnu miðstöðvarkerfi.
- Milliloft úr 22mm gólfplötum frá Byko.
- Léttir innveggir eru byggðir úr timbri og klæddir beggja vegna með gipsplötum.
- Léttir innveggir eru grunnaðir og málaðir með plastmálningu
- Borðplata verður sett upp í kaffistofu með vask og blöndunartækjum.
- Innihurðir eru frá Parka.
- Olíuskilja er uppsett skv teikingum.
- Salerni vegghengt. Hvít postulíntæki.
- Möguleiki á að setja upp uppþvottavél í kaffistofu.
- Útsog úr hverju bili úr kaffistofu og salerni.
Sjá nánari upplýsingar í skilalýsingu verktaka.
Verktaki verkefnisins er traustur verktaki til margra ára, Fjarðarmót ehf.
Bókið skoðun og fáið nánari upplýsingar hjá sölumönnum Ás fasteignasölu:
Stefán Rafn Sigurmannsson löggiltur fasteignasali s. 655-7000 / [email protected]
Arnór Daði Eiríksson aðsoðarmaður fasteignasala s. 777-0939 / [email protected]
Svala Haraldsdóttir löggiltur fasteignasali s. 820-9699 / [email protected]
Aron Freyr Eiríksson löggiltur fasteignasali s. 772-7376 / [email protected]
Frábær staðsetning þar sem stutt er í helstu þjónustu og falleg útivistarsvæði.
Ás fasteignasala er rótgróið fyrirtæki sem hefur veitt alla almenna þjónustu í fasteignaviðskiptum frá árinu 1988.
www.facebook.com/asfasteignasala
www.instagram.com/as_fasteignasala
www.as.is