Upplýsingar
Verðsaga
Byggt 1978
65,9 m²
3 herb.
1 baðherb.
2 svefnh.
Lýsing
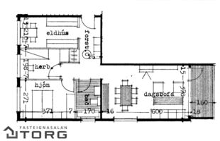
Margrét Rós, lgf og Fasteignasalan TORG kynna í sölu fallega 3ja herb. endaíbúð á efstu hæð með suðursvalir við Hjallaveg 11, 260 Reykjanesbær Um er að ræða fallega og vel skipulagða eign sem hefur fengið töluverða yfirhalningu, en baðherbergi og eldhús er nýlega endurnýjað. Samkvæmt teikningu skiptist innra skipulag í forstofu, gang, eldhús, tvö svefnherbergi, samliggjandi stofu og borðstofu með útgengi á svalir til suður. Sérgeymsla íbúðar er staðsett á fyrstu hæð ásamt sameiginegu þvottaherbergi og hjólageymslu. Alls eru átta íbúðir í stigaganginum. Góða aðkoma að húsinu og næg bílastæði. Allar nánari upplýsingar veitir Margrét Rós Löggiltur fasteignasali, í s. 856-5858 eða [email protected]
*** SÆKJA SÖLUYFIRLIT HÉR ***
Birt stærð eignar skv. fasteignaskrá HMS er 65,9 m² og eru allir fermetrar innan íbúðar. Sérgeymsla á 1. hæð sem tilheyrir eigninni er ekki skráð inn í heildarfermetra íbúðar.
ERTU Í SÖLUHUGLEIÐINGUM? SMELLTU HÉR FYRIR FRÍTT VERÐMAT
Nánari Lýsing:
Forstofa og gangur með fataskáp og parket á gólfi.
Eldhús er nýlega endurnýjað. Falleg innrétting með innfeldri uppþvottavél, ofn, helluborð og háfur á vegg. Tengi fyrir þvottavél í eldhúsinnréttingu. Flísar á gólfi og gólfhita (rafmagnshiti).
Hjónaherbergi er rúmgott með góðum skápum og parket á gólfi.
Barnaherbergi með faraskáp og parket á gólfi.
Baðherbergi er nýlega endurnýjað, flísalagt á gólfi og veggjum að hæuta og með sturtu og gólfhita (rafmagnshiti)
Stofa og borðstofa eru samliggjandi í rúmgóðu og björtu með útgengi á góðar suðursvalir.
Stigagangur er snyrtilegur með nýlegu teppi og nýlega málaður.
Sameign er staðsett á fyrstu hæð hússins með hjólageymslu, geymslur íbúa ásamt þvotta- og þurrkherbergi.
Sérgeymsla eignar inn af sameignargangi er ekki skráð innan heildarfermetra íbúðarinnar.
Framkvæmdir og viðhald á íbúð og húsi síðustu ára að sögn seljanda og fyrri söluskráningar:
** Eldhús og baðherbergi endurnýjuð með innréttingum, tækjum og gólfefni ásamt gólfhita (rafmagnshiti) árið 2024.
** Þakjárn, pappi og rennur endurnýjað 2023.
** Hús málað að utan árið 2020.
** Ljósleiðari er í íbúðinni.
Nánari upplýsingar veita:
Margrét Rós Einarsdóttir - Löggiltur fasteignasali í Félagi fasteignasala / s. 856-5858 / [email protected]
Aðalsteinn Bjarnason - Löggiltur fasteignasali í Félagi fasteignasala / s. 773-3532 / [email protected]
KÍKTU Í HEIMSÓKN TIL MÍN Á FACEBOOK
VILTU VITA HVAÐ VIÐSKIPTAVINIR OKKAR HAFA SEGJA? SMELLTU HÉR
Um skoðunar- og aðgæsluskyldu:
Í lögum um fasteignakaup nr. 40/2002 er kveðið á um ríka skoðunarskyldu kaupenda á fasteignum. Væntanlegum kaupendum er bent á að kynna sér vel ástand fasteigna við skoðun og fyrir tilboðsgerð og ef þurfa þykir að leita til sérfræðinga um nánari ástandsskoðun. Almennt getur kaupandi ekki borið fyrir sig að ástand eignar sé annað en það sem hann hefði mátt sjá við slíka skoðun.
Forsendur söluyfirlits:
Söluyfirlit er samið af fasteignasala í samræmi við ákvæði laga nr. 70/2015. Þær upplýsingar sem fram koma í söluyfirliti þessu eru sóttar í opinberar skrár, til seljanda sjálfs og eftir atvikum til húsfélags. Seljandi veitir upplýsingar um eign í samræmi við upplýsingaskyldu laga um fasteignakaup nr. 40/2002, og ábyrgist að þær séu réttar. Fasteignasali sannreynir að þær upplýsingar séu réttar með sjónskoðun á eigninni. Fasteignasali getur ekki fullyrt um ástand og eiginleika þeirra hluta fasteigna sem ekki eru aðgengilegir og sjást ekki berum augum, t.d. lagnir, dren, skólp og þak. Það sama á við um staðhæfingar seljanda eignar um viðhald og einstaka framkvæmdir.
Gjöld sem kaupandi þarf að standa straum af vegna kaupanna:
Stimpilgjald af kaupsamningi sem er hlutfall af fasteignamati. Stimpilgjald er 0,8% fyrir einstaklinga (0,4% við fyrstu kaup) og 1,6% fyrir lögaðila.
Þinglýsingargjald af kaupsamningi, veðskuldabréfum, veðleyfum o.fl. Þinglýsingargjald er kr. 2.700,- fyrir hvert skjal.
Lántökugjald lánastofnunar. Um lántökugjald vísast í gjaldskrá viðkomandi lánveitanda.
Umsýsluþóknun fasteignasölu skv. gjaldskrá.
Ef um nýbyggingu er að ræða greiðir kaupandi skipulagsgjald, 0,3% af brunabótamáti, þegar það er lagt á.
*** SÆKJA SÖLUYFIRLIT HÉR ***
Birt stærð eignar skv. fasteignaskrá HMS er 65,9 m² og eru allir fermetrar innan íbúðar. Sérgeymsla á 1. hæð sem tilheyrir eigninni er ekki skráð inn í heildarfermetra íbúðar.
ERTU Í SÖLUHUGLEIÐINGUM? SMELLTU HÉR FYRIR FRÍTT VERÐMAT
Nánari Lýsing:
Forstofa og gangur með fataskáp og parket á gólfi.
Eldhús er nýlega endurnýjað. Falleg innrétting með innfeldri uppþvottavél, ofn, helluborð og háfur á vegg. Tengi fyrir þvottavél í eldhúsinnréttingu. Flísar á gólfi og gólfhita (rafmagnshiti).
Hjónaherbergi er rúmgott með góðum skápum og parket á gólfi.
Barnaherbergi með faraskáp og parket á gólfi.
Baðherbergi er nýlega endurnýjað, flísalagt á gólfi og veggjum að hæuta og með sturtu og gólfhita (rafmagnshiti)
Stofa og borðstofa eru samliggjandi í rúmgóðu og björtu með útgengi á góðar suðursvalir.
Stigagangur er snyrtilegur með nýlegu teppi og nýlega málaður.
Sameign er staðsett á fyrstu hæð hússins með hjólageymslu, geymslur íbúa ásamt þvotta- og þurrkherbergi.
Sérgeymsla eignar inn af sameignargangi er ekki skráð innan heildarfermetra íbúðarinnar.
Framkvæmdir og viðhald á íbúð og húsi síðustu ára að sögn seljanda og fyrri söluskráningar:
** Eldhús og baðherbergi endurnýjuð með innréttingum, tækjum og gólfefni ásamt gólfhita (rafmagnshiti) árið 2024.
** Þakjárn, pappi og rennur endurnýjað 2023.
** Hús málað að utan árið 2020.
** Ljósleiðari er í íbúðinni.
Nánari upplýsingar veita:
Margrét Rós Einarsdóttir - Löggiltur fasteignasali í Félagi fasteignasala / s. 856-5858 / [email protected]
Aðalsteinn Bjarnason - Löggiltur fasteignasali í Félagi fasteignasala / s. 773-3532 / [email protected]
KÍKTU Í HEIMSÓKN TIL MÍN Á FACEBOOK
VILTU VITA HVAÐ VIÐSKIPTAVINIR OKKAR HAFA SEGJA? SMELLTU HÉR
Um skoðunar- og aðgæsluskyldu:
Í lögum um fasteignakaup nr. 40/2002 er kveðið á um ríka skoðunarskyldu kaupenda á fasteignum. Væntanlegum kaupendum er bent á að kynna sér vel ástand fasteigna við skoðun og fyrir tilboðsgerð og ef þurfa þykir að leita til sérfræðinga um nánari ástandsskoðun. Almennt getur kaupandi ekki borið fyrir sig að ástand eignar sé annað en það sem hann hefði mátt sjá við slíka skoðun.
Forsendur söluyfirlits:
Söluyfirlit er samið af fasteignasala í samræmi við ákvæði laga nr. 70/2015. Þær upplýsingar sem fram koma í söluyfirliti þessu eru sóttar í opinberar skrár, til seljanda sjálfs og eftir atvikum til húsfélags. Seljandi veitir upplýsingar um eign í samræmi við upplýsingaskyldu laga um fasteignakaup nr. 40/2002, og ábyrgist að þær séu réttar. Fasteignasali sannreynir að þær upplýsingar séu réttar með sjónskoðun á eigninni. Fasteignasali getur ekki fullyrt um ástand og eiginleika þeirra hluta fasteigna sem ekki eru aðgengilegir og sjást ekki berum augum, t.d. lagnir, dren, skólp og þak. Það sama á við um staðhæfingar seljanda eignar um viðhald og einstaka framkvæmdir.
Gjöld sem kaupandi þarf að standa straum af vegna kaupanna:
Stimpilgjald af kaupsamningi sem er hlutfall af fasteignamati. Stimpilgjald er 0,8% fyrir einstaklinga (0,4% við fyrstu kaup) og 1,6% fyrir lögaðila.
Þinglýsingargjald af kaupsamningi, veðskuldabréfum, veðleyfum o.fl. Þinglýsingargjald er kr. 2.700,- fyrir hvert skjal.
Lántökugjald lánastofnunar. Um lántökugjald vísast í gjaldskrá viðkomandi lánveitanda.
Umsýsluþóknun fasteignasölu skv. gjaldskrá.
Ef um nýbyggingu er að ræða greiðir kaupandi skipulagsgjald, 0,3% af brunabótamáti, þegar það er lagt á.
Ár
Fasteignamat
Kaupverð
Stærð
Fermetraverð
10. jan. 2025
34.000.000 kr.
43.500.000 kr.
30303 m²
1.436 kr.
12. okt. 2018
13.100.000 kr.
23.000.000 kr.
65.9 m²
349.014 kr.
3. des. 2007
8.150.000 kr.
11.200.000 kr.
65.9 m²
169.954 kr.
Byggt á upplýsingum úr Þjóðskrá Íslands frá 2006-2026