Löggiltir fasteignasalar innan Félags fasteignasala:
Sigurður Maack Gunnarsson
Svanþór Einarsson
Theodór Emil Karlsson
Steingrímur Benediktsson
Vista
raðhús

Víðiteigur 10E

270 Mosfellsbær

74.000.000 kr.

818.584 þ.kr./m2
Fasteignanúmer

F2084720

Fasteignamat

75.000.000 kr.

Brunabótamat

55.320.000 kr.

Áhvílandi

0 kr.

Arion banki – Reikna lán
Upplýsingar
svg
Byggt 1986
svg
90,4 m²
svg
3 herb.
svg
1 baðherb.
svg
2 svefnh.
svg
Sérinngangur
svg
Laus strax

Lýsing

** Hafðu samband og bókaðu tíma fyrir skoðun -   Svanþór Einarsson, löggiltur fasteignasali - [email protected] eða 698-8555 - Theodór Emil Karlsson, löggiltur fasteignasali - [email protected] eða 690-8040 - Steingrímur Benediktsson, löggiltur fasteignasali - [email protected] eða 862-9416 **

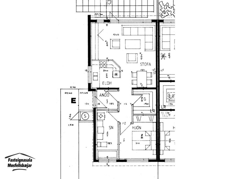
Fasteignasala Mosfellsbæjar kynnir: 90,4 m2 endaraðhús með afgirtum bakgarði með timburverönd í suðurátt við Víðiteig 10E í Mosfellsbæ. Eignin er skráð 90,4 m2, þar af íbúð 65,9 m2, risloft 13 m2 og sólstofa 11,5 m2. Eignin skiptist í svefnherbergi, forstofu, baðherbergi, geymslu, eldhús, stofu/borðstofu, sólstofu og risherbegi. Góð staðsetning miðsvæðis í Mosfellsbæ. Stutt í verslanir og alla helstu þjónustu, leikskóla, skóla, sund og íþróttamiðstöðina að Varmá. Eignin er laus til afhendingar við kaupsamning. Komið er að viðhaldi og endurbótum á eigninni.


Smelltu hér til að fá söluyfirlit sent

Nánari lýsing:
Forstofa er með flísum á gólfi.
Svefnherbergi er með fataskápum og parketi á gólfi.
Baðherbergi er flísalagt og með innréttingu, baðkari og sturtu. Tengi fyrir þvottavél er á baðherbergi. Gluggi er á baðherbergi.
Eldhús er með innréttingu og parketi á gólfi. Í innréttingu er ísskápur, ofn, helluborð, vifta og vaskur. 
Stofa/borðstofa er í opnu rými með parketi á gólfi. Úr stofu er opið inn í sólstofuna.
Sólstofa er í björtu rými með flísum á gólfi. Úr sólstofu er gengið út á timburverönd og bakgarð í suðurátt.
Geymsla er undir stiga upp á efri hæðina.
Risloft er með parketi á gólfi og þakglugga. Hægt er að nota rýmið sem herbergi. Rýmið er að hluta til undir súð og er því stærra en fermetratala segir til um. Góðar geymslur eru undir súð.

Verð kr. 74.000.000,-



Um skoðunar- og aðgæsluskyldu:
Í lögum um fasteignakaup nr. 40/2002 er kveðið á um ríka skoðunarskyldu kaupenda á fasteignum. Fasteignasala Mosfellsbæjar skorar því á væntanlega kaupendur að kynna sér vel ástand fasteigna fyrir kauptilboðsgerð og leita til þar til bærra sérfræðinga um nánari skoðun ef með þarf.

Forsendur söluyfirlits:
Söluyfirlit er samið af fasteignasala í samræmi við ákvæði laga nr. 70/2015. Þær upplýsingar sem fram koma í söluyfirliti þessu eru sóttar í opinberar skrár, til seljanda sjálfs og eftir atvikum til húsfélags. Seljandi veitir upplýsingar um eign í samræmi við upplýsingaskyldu laga um fasteignakaup nr. 40/2002. Fasteignasali sannreynir að þær upplýsingar séu réttar með sjónskoðun á eigninni.
Fasteignasali getur ekki fullyrt um ástand og eiginleika þeirra hluta fasteigna sem ekki eru aðgengilegir og sjást ekki berum augum, t.d. lagnir, dren, skólp og þak.

Gjöld sem kaupandi þarf að greiða vegna kaupa:
1. Stimpilgjald af kaupsamningi sem er hlutfall af fasteignamati. Stimpilgjald er 0,8% fyrir einstaklinga (0,4% við fyrstu kaup) og 1,6% fyrir lögaðila.
2. Þinglýsingargjald af kaupsamningi, veðskuldabréfum, veðleyfum o.fl. Þinglýsingargjald er kr. 3.800,- fyrir hvert skjal.
3. Lántökugjald lánastofnunar - er skv. gjaldskrá viðkomandi lánastofnunar.
4. Umsýslugjald til fasteignasölu skv. kauptilboði.
5. Þegar um nýbyggingu er að ræða greiðir kaupandi skipulagsgjald, 0,3% af endanlegu brunabótamáti, þegar það er lagt á af viðkomandi sveitarfélagi.

img
Svanþór Einarsson
Lögg.fasteignasali innan félags fasteignasala
Fasteignasala Mosfellsbæjar
Þverholti 2, 270 Mosfellsbæ
Fasteignasala Mosfellsbæjar

Fasteignasala Mosfellsbæjar

Þverholti 2, 270 Mosfellsbæ
phone
img

Svanþór Einarsson

Þverholti 2, 270 Mosfellsbæ
Fasteignasala Mosfellsbæjar

Fasteignasala Mosfellsbæjar

Þverholti 2, 270 Mosfellsbæ
phone

Svanþór Einarsson

Þverholti 2, 270 Mosfellsbæ