Löggiltir fasteignasalar innan Félags fasteignasala:
Sigurður Sveinn Sigurðsson
Björn Davíðsson
Vista
fjölbýlishús

Dvergaholt 9 íbúð 211

603 Akureyri

68.800.000 kr.

897.001 þ.kr./m2
Fasteignanúmer

F2525607

Fasteignamat

52.800.000 kr.

Brunabótamat

56.900.000 kr.

Áhvílandi

0 kr.

Arion banki – Reikna lán
Upplýsingar
Verðsaga
svg
Byggt 2023
svg
76,7 m²
svg
3 herb.
svg
1 baðherb.
svg
2 svefnh.
svg
Útsýni
svg
Sameiginl. inngangur
svg
Bílastæði
svg
Lyfta
svg
Laus strax

Lýsing

Fasteignasalan Hvammur 466 1600

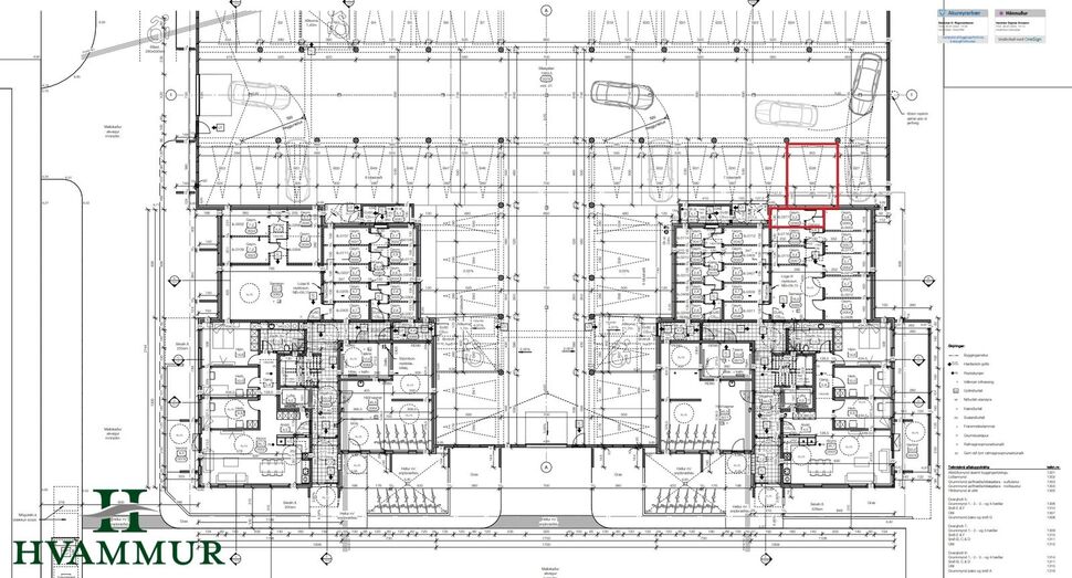
Dvergaholt 9 íbúð 211 - Nýbygging

Glæsilegt 3ja herbergja íbúð á 2. hæð í fjölbýli með lyftu og sér stæði í bílageymslu - stærð 76,7 m²

** Eignin er laus til afhendingar við kaupsamning **


Eignin skiptist í forstofu, eldhús, stofu, tvö svefnherbergi og baðherbergi með þvottaaðstöðu. Sér geymsla er á jarðhæðinni og sér stæði bílageymslu.

* Allar innréttingar eru frá Brúnás.
* Vandað harð parket á gólfum.
* Hljóðdempandi plötur í öllum loftum íbúðar nema baðherbergi.
* Loftskiptikerfi.
* Extra breitt stæði í bílageymslu.


Forstofa er með ljósu harð parketi á gólfi og þreföldum skáp. Loftræstisamstæðan er staðsett inn í skápnum.
Eldhús, vönduð ljós brún innrétting með grárri bekkplötu með marmara áferð. Ísskápur með frysti og innbyggð uppþvottavél fylgja með við sölu eignar. 
Stofa er ágætlega rúmgóð, með ljósu harð parketi á gólfi og rennihurð út á steyptar vestur svalir, skráðar 7,3 m² að stærð.
Svefnherbergin eru tvö og eru skv. teikningum 10,0 og 12,6 m² að stærð, bæði með ljósu harð parketi á gólfi og fataskápum. 
Baðherbergi er einkar glæsilegt, stein gráar flísar á gólfi og hluta veggja, ljós brún innrétting og speglaskápur, upphengt wc, walk-in sturta og opnanlegur gluggi. Tengi er fyrir þvottavél.

Sér geymsla er á jarðhæðinni, skráð 4,1 m² að stærð og með lökkuðu gólfi. Rafmagnstengill

Um skoðunar- og aðgæsluskyldu:
Í lögum um fasteignakaup nr. 40/2002 er kveðið á um ríka skoðunarskyldu kaupenda á fasteignum. Fasteignasalan Hvammur skorar því á væntanlega kaupendur að kynna sér vel ástand fasteigna fyrir kauptilboðsgerð og leita til þar til bærra sérfræðinga um nánari skoðun ef með þarf.
Forsendur söluyfirlits:
Söluyfirlit er samið af fasteignasala í samræmi við ákvæði laga nr. 70/2015. Þær upplýsingar sem fram koma í söluyfirliti þessu eru sóttar í opinberar skrár, til seljanda sjálfs og eftir atvikum til húsfélags. Seljandi veitir upplýsingar um eign í samræmi við upplýsingaskyldu laga um fasteignakaup nr. 40/2002. Fasteignasali sannreynir að þær upplýsingar séu réttar með sjónskoðun á eigninni. Fasteignasali getur ekki fullyrt um ástand og eiginleika þeirra hluta fasteigna sem ekki eru aðgengilegir og sjást ekki berum augum, t.d. lagnir, dren, skólp og þak.

Hvammur Eignamiðlun

Hvammur Eignamiðlun

Hafnarstræti 19, 600 Akureyri
phone
Ár
Fasteignamat
Kaupverð
Stærð
Fermetraverð
12. maí. 2025
46.350.000 kr.
58.900.000 kr.
10211 m²
5.768 kr.
Byggt á upplýsingum úr Þjóðskrá Íslands frá 2006-2026
Hvammur Eignamiðlun

Hvammur Eignamiðlun

Hafnarstræti 19, 600 Akureyri
phone