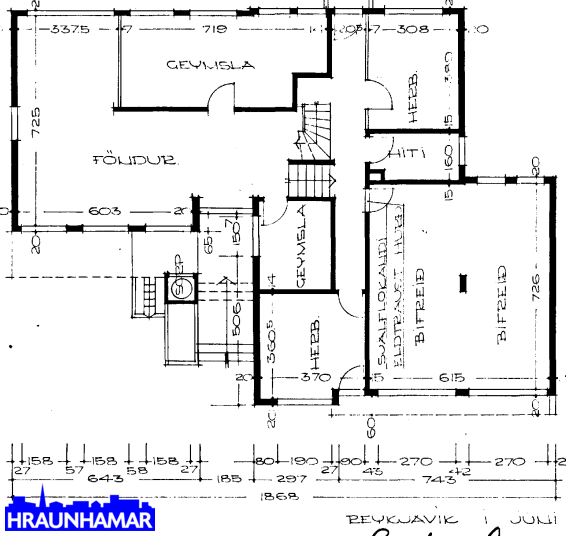
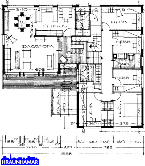
Smyrlahraun, 220 Hafnarfjörður