Upplýsingar
Byggt 2025
135,4 m²
4 herb.
2 baðherb.
3 svefnh.
Sameiginl. inngangur
Bílastæði
Lyfta
Lýsing
Hraunhamar fasteignasala kynnir með stolti glæsilegar nýjar lúxusíbúðir á besta stað í miðbæ Hafnarfjarðar. Frágangur íbúða er einstaklega vandaður og hugsað út í öll smáatriði.
Einstakt útsýni er úr flestum íbúðum og með öllum íbúðum fylgja svalir eða rúmgóðar þaksvalir.
Bókið einkaskoðun hjá fasteignasölum - Sýnum samdægurs.
Helgi s. 893-2233, Hlynur s. 698-2603, Glódís s. 659-0510, Einar s. 888-7979. Eða sendið tölvupóst á [email protected]
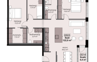
Íbúð 503 er 4ra herbergja og er skráð 135,4 fm. þar af 12,5 fm geymsla.
Stæði í bílageymslu fylgir.
Einstakt útsýni
Stórir gólfsíðir gluggar
Loftskiptakerfi.
Hljóðdúkur í lofti.
Innfelld lýsing.
Frábær staðsetning.
Gólfhiti
Skipting eignar: Forstofa, hol, eldhús, stofa, baðherbergi, gestasnyrting, 3 svefnherbergi, fataherbergi, tvennar svalir og geymsla.
Sjá heimasíðu verkefnisins hér.
Lýsing eignar:
Forstofa með fataskápum.
Björt og falleg stofa og þaðan er útgengt út á svalir. Einstakt útsýni er úr íbúðinni.
Hjónaherbergi með fataherbergi, útgengt út á svalir.
Svefnherbergi með fataskápum og útgengt út á svalir.
Svefnherbergi með fataskáp.
Baðherbergi með þvottaaðstöðu.
Eldhús með smekklegri innréttingu, vönduð eldunartæki ,spanhelluborð með innbyggðum gufugleypi, innbyggður ísskápur og uppþvottavél. Kvartsteinn á borðum.
Flísalagt baðherbergi með innréttingu, steinn á borðum og walk-in sturta. Innbyggð tæki, handklæðaofn.
Geymsla í sameign.
Íbúðirnar eru sérlega vel innréttaðar með innréttingum frá Voke III og vönduðum eldunartækjum.
Vínyl parket frá Parka á alrými, herbergjum og flísar í votrýmum. Gólfhiti.
Húsið er á besta stað í miðbæ Hafnarfjarðar, í nærumhverfinu er öll helsta þjónusta.
Í nýja Firði verður m.a. nýtt glæsilegt bókasafn Hafnfirðinga, spennandi verslanir, kaffihús og veitingastaðir.
Bílastæði í lokuðu bílahúsi fylgir íbúðinni.
Sjá skilalýsingu íbúða hér.
Byggingaraðili er GG verk.
Bókið skoðun hjá sölumönnum Hraunhamars:
Helgi Jón Harðarson, sölust. s. 893-2233, [email protected]
Glódís Helgadóttir, löggiltur fasteignasali, s. 659-0510, [email protected]
Hlynur Halldórsson, löggiltur fasteignasali, s. 698-2603, [email protected]
Einar Örn Ágústsson, löggiltur fasteignasali í s. 888-7979, [email protected]
Gjöld sem kaupandi þarf að standa straum af vegna kaupanna:
1. Stimpilgjald af kaupsamningi, fyrstu kaup (0,4%), almenn kaup (0,8%), lögaðilar (1,6%) af heildarfasteignamati.
2. Þinglýsingargjald af kaupsamningi, veðskuldabréfi, mögulegu veðleyfi o.fl. – 3,800 kr. af hverju skjali.
3. Lántökugjald lánastofnunar er skv. verðskrá viðkomandi lánastofnunar.
4. Umsýslugjald til fasteignasölu skv. þjónustusamningi
Hraunhamar er elsta fasteignasala Hafnarfjarðar, stofnuð 1983.
Hraunhamar, í fararbroddi í rúm 40 ár – Hraunhamar.is
Smelltu hér til að fá frítt söluverðmat.
Einstakt útsýni er úr flestum íbúðum og með öllum íbúðum fylgja svalir eða rúmgóðar þaksvalir.
Bókið einkaskoðun hjá fasteignasölum - Sýnum samdægurs.
Helgi s. 893-2233, Hlynur s. 698-2603, Glódís s. 659-0510, Einar s. 888-7979. Eða sendið tölvupóst á [email protected]
Íbúð 503 er 4ra herbergja og er skráð 135,4 fm. þar af 12,5 fm geymsla.
Stæði í bílageymslu fylgir.
Einstakt útsýni
Stórir gólfsíðir gluggar
Loftskiptakerfi.
Hljóðdúkur í lofti.
Innfelld lýsing.
Frábær staðsetning.
Gólfhiti
Skipting eignar: Forstofa, hol, eldhús, stofa, baðherbergi, gestasnyrting, 3 svefnherbergi, fataherbergi, tvennar svalir og geymsla.
Sjá heimasíðu verkefnisins hér.
Lýsing eignar:
Forstofa með fataskápum.
Björt og falleg stofa og þaðan er útgengt út á svalir. Einstakt útsýni er úr íbúðinni.
Hjónaherbergi með fataherbergi, útgengt út á svalir.
Svefnherbergi með fataskápum og útgengt út á svalir.
Svefnherbergi með fataskáp.
Baðherbergi með þvottaaðstöðu.
Eldhús með smekklegri innréttingu, vönduð eldunartæki ,spanhelluborð með innbyggðum gufugleypi, innbyggður ísskápur og uppþvottavél. Kvartsteinn á borðum.
Flísalagt baðherbergi með innréttingu, steinn á borðum og walk-in sturta. Innbyggð tæki, handklæðaofn.
Geymsla í sameign.
Íbúðirnar eru sérlega vel innréttaðar með innréttingum frá Voke III og vönduðum eldunartækjum.
Vínyl parket frá Parka á alrými, herbergjum og flísar í votrýmum. Gólfhiti.
Húsið er á besta stað í miðbæ Hafnarfjarðar, í nærumhverfinu er öll helsta þjónusta.
Í nýja Firði verður m.a. nýtt glæsilegt bókasafn Hafnfirðinga, spennandi verslanir, kaffihús og veitingastaðir.
Bílastæði í lokuðu bílahúsi fylgir íbúðinni.
Sjá skilalýsingu íbúða hér.
Byggingaraðili er GG verk.
Bókið skoðun hjá sölumönnum Hraunhamars:
Helgi Jón Harðarson, sölust. s. 893-2233, [email protected]
Glódís Helgadóttir, löggiltur fasteignasali, s. 659-0510, [email protected]
Hlynur Halldórsson, löggiltur fasteignasali, s. 698-2603, [email protected]
Einar Örn Ágústsson, löggiltur fasteignasali í s. 888-7979, [email protected]
Gjöld sem kaupandi þarf að standa straum af vegna kaupanna:
1. Stimpilgjald af kaupsamningi, fyrstu kaup (0,4%), almenn kaup (0,8%), lögaðilar (1,6%) af heildarfasteignamati.
2. Þinglýsingargjald af kaupsamningi, veðskuldabréfi, mögulegu veðleyfi o.fl. – 3,800 kr. af hverju skjali.
3. Lántökugjald lánastofnunar er skv. verðskrá viðkomandi lánastofnunar.
4. Umsýslugjald til fasteignasölu skv. þjónustusamningi
Hraunhamar er elsta fasteignasala Hafnarfjarðar, stofnuð 1983.
Hraunhamar, í fararbroddi í rúm 40 ár – Hraunhamar.is
Smelltu hér til að fá frítt söluverðmat.