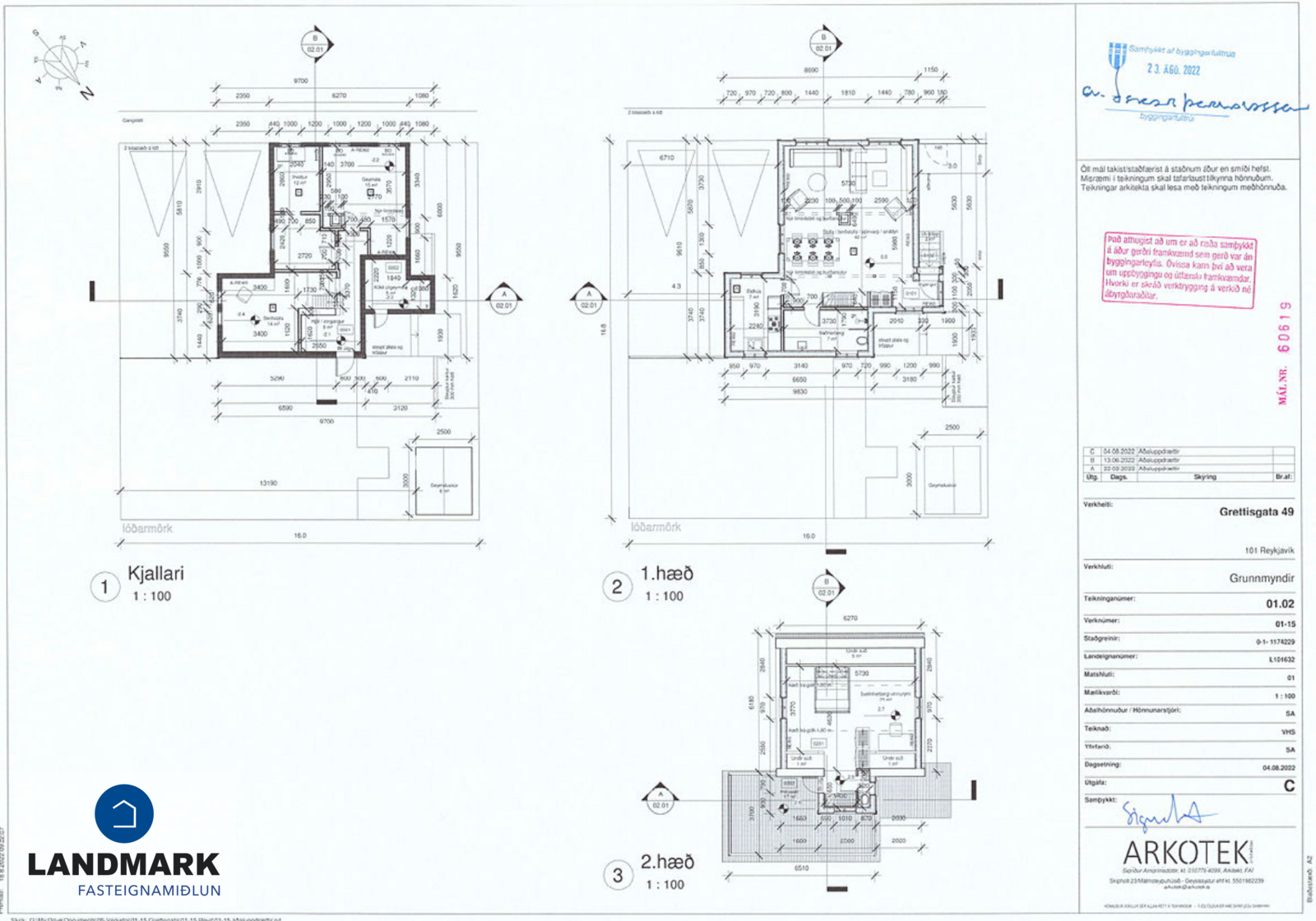
Grettisgata, 101 Reykjavík