Löggiltir fasteignasalar innan Félags fasteignasala:
Ástþór Reynir Guðmundsson
Vigdís R. S. Helgadóttir
Guðbjörg Helga Jóhannesdóttir
Gylfi Jens Gylfason
Sigrún Matthea Sigvaldadóttir
Sveinn Gíslason
Páll Guðmundsson
Þórarinn Arnar Sævarsson
Berglind Hólm Birgisdóttir
Þorsteinn Gíslason
Guðrún Lilja Tryggvadóttir
Brynjar Ingólfsson
Guðný Þorsteinsdóttir
Bjarni Blöndal
Þorsteinn Ólafs
Þórdís Björk Davíðsdóttir
Jóhann Kristinn Jóhannesson
Bjarný Björg Arnórsdóttir
Salvör Þóra Davíðsdóttir
Magga Sigríður Gísladóttir
Upplýsingar
Verðsaga
Byggt 1975
224,3 m²
8 herb.
2 baðherb.
5 svefnh.
Þvottahús
Aukaíbúð
Lýsing
RE/MAX & BJARNÝ BJÖRG KYNNA: Ljárskógar 2, 109 Reykjavík. Fallegt og rúmgott 8 herbergja fjölskyldu hús á besta stað í seljahverfi. Eignin skiptist í efri hæð 153,4 fm og neðri hæð 153,4 fm og er húsið því samtals 306,8 fm. Auka íbúð er í húsinu.
Seljendur eru opnir fyrir því að taka minni eign upp í sem hluti að greiðslu.
** SMELLTU HÉR og skoðaðu EIGNINA í 3-D, þrívíðu umhverfi.**
** SMELLTU HÉR og skoðaðu MYNDBAND um eignina
Allar nánari upplýsingar veitir: Bjarný Björg Arnórsdóttir, lgf., í síma 694-2526 eða á [email protected]
· Tvennar stórar svalir í þrjár áttir. Miklir gluggar á öllu húsinu.
· 90 fm flott verönd og heitur pottur. Stór 1033 fm lóð.
· Þriggja herbergja auka íbúð á neðri hæð með sér aðkomu - alveg sér.
· Innbyggður bílskúr.
***Húsið er skráð 224,3 fm samkvæmt FMR en inn í það vantar rými og samkvæmt teikningum er grunnflötur hvorrar hæðar 153,4 og því húsið allt samtals 306,8 fm.***
Nánar lýsing:
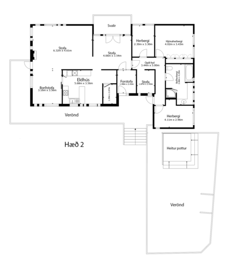
Efri hæðin skiptist í góða forstofu, sjónvarpsofu, eldhús, borðstofu og stofu þar sem útgengið er út á góðar svalir. Svefnherbergisgangur með tveimur góðum barnaherbergjum, einu litlu herbergi og stóru hjónaherbergi, útgegnið er út á svalir frá svenherbergis gangi.
Rúmgóð forstofu á efri hæð. Síðan er komið inn í fremri stofu þaðan sem gegnt er út á n-austur svalir.
Frá fremri stofu er glæsileg, björt stofa í L og út af stofu er útgegnt á svalir sem liggja meðfram vestur og suður hlið hússins. Viðarklæðning í loftum í stofum. Miklir gluggar í þrjár áttir.
Innaf stofum er fínt eldhús með viðarlituðum innréttingum og granít borðum og innaf eldhúsi er svo búr með innréttingu.
Á sér aflokuðum svefnherbergja gangi eru fjögur herbergi og baðherberbergi. Fyrst er lítið herbergi sem gert var með því að setja gólf yfir stigann milli hæða.
Barnaherbergi er við hliðina á góðu hjónaherbergi sem er með skápum.
Baðherbergið er mjög stórt flísalagt með miklum innréttingum, baðkari og sturtu og þar eru tveir gluggar. Við enda svefnherbergja gangs er gott herbergi með gluggum í tvær áttir.
Útgegnt á svalir frá svefnherbergja gangi.
Verönd með heitum potti er fyrir framan húsið.
Bílskúrinn er innbyggður, þar gluggar í vestur og norður, sjáfvirkur opnari.
Þvottahúsið er í stóru ca 30fm óskráð rými á neðri hæð með sérinngang.
Neðri hæð er góð 3 herbergja íbúð.
Neðri hæðin er alveg sér - búið að loka milli hæða.
Sér inngangur í íbúð og þar komið í góða forstofu, parket lögð og með góðum skápum.
Síðan er komið í aflanga bjarta stofu, mikið af gluggum.
Baðherbergið er flísalagt með sturtu og innréttingu, lítill gluggi.
Eldhúsið er rúmgott með hvítum innréttingum og þar tveir litilir gluggar.
Við hliðina á eldhúsi er barnaherbergi - gluggi í norður.
Frá stofu eru geymslur í stigaplássinu sem var lokað.
Frá endanum á stofu er komið í gott hjónaherbergi með skápum, gluggi í n-a.
Við hliðina á íbúðinni er sérinngangur í stórt gluggalaust rými - nýtt sem þvottahús og geymsla núna sem er ca 30 fm óskráð rými, einnig væri hægt að opna íbúðina inn í rýmið.
Hægt væri að opna aftur á milli hæða ef þarf.
Framkvæmdasaga samkvæmt seljanda:
Baðherbergi efri hæð endurnýjað árið 2019.
Baðherbergi neðri hæð endurnýjað árið 2021.
Gluggar endurnýjaðir að hluta til árið 2020.
Þak skipt um og lagður nýr pappi árið 2020.
Verönd og heitur pottur árið 2021.
SKOÐAÐU EIGNINA Í 3D – ÞITT EIGIÐ OPIÐ HÚS ÞEGAR ÞÉR HENTAR
Allar nánari upplýsingar um eignina veita:
Bjarný Björg Arnórsdóttir, löggiltur fasteignasali í síma 694-2526 eða á netfangið [email protected]
Um skoðunar- og aðgæsluskyldu kaupenda:
Í lögum um fasteignakaup nr. 40/2002 er kveðið á um ríka skoðunarskyldu kaupenda á fasteignum. Vill því RE/MAX skora á væntanlega kaupendur að kynna sér vel ástand fasteigna fyrir kauptilboðsgerð og leita til þar til bærra sérfræðinga um nánari skoðun ef með þarf.
Forsendur söluyfirlits: Söluyfirlit er samið af fasteignasala í samræmi við ákvæði laga nr. 70/2015. Þær upplýsingar sem fram koma í söluyfirliti þessu eru sóttar í opinberar skrár, til seljanda sjálfs og eftir atvikum til húsfélags. Seljandi veitir upplýsingar um eign í samræmi við upplýsingaskyldu laga um fasteignakaup nr. 40/2002. Fasteignasali sannreynir að þær upplýsingar séu réttar með sjónskoðun á eigninni. Fasteignasali getur ekki fullyrt um ástand og eiginleika þeirra hluta fasteigna sem ekki eru aðgengilegir og sjást ekki berum augum, t.d. lagnir, dren, skólp og þak.
__________________________
Ertu í söluhugleiðingum?
Vegna mikillar eftirspurnar vantar allar tegundir eigna á skrá. Hafið samband og við verðmetum þína eign þér að kostnaðarlausu
__________________________
Gjöld sem kaupandi þarf að standa straum af vegna kaupanna:
1. Stimpilgjald af kaupsamningi er af heildarfasteignamati - Einstaklingar 0,8% - Fyrstu kaupendur 0,4% - Lögaðilar 1,6%.
2. Þinglýsingargjald af kaupsamningi, veðskuldabréfi, veðleyfi og fl. 3.400 kr. af hverju skjali.
3. Lántökugjald lánastofnunar - almennt 45-75 þús.kr. Nánari upplýsingar á heimasíðu lánastofnana.
4. Umsýslugjald til fasteignasölu 69.900 kr. m.vsk
Seljendur eru opnir fyrir því að taka minni eign upp í sem hluti að greiðslu.
** SMELLTU HÉR og skoðaðu EIGNINA í 3-D, þrívíðu umhverfi.**
** SMELLTU HÉR og skoðaðu MYNDBAND um eignina
Allar nánari upplýsingar veitir: Bjarný Björg Arnórsdóttir, lgf., í síma 694-2526 eða á [email protected]
· Tvennar stórar svalir í þrjár áttir. Miklir gluggar á öllu húsinu.
· 90 fm flott verönd og heitur pottur. Stór 1033 fm lóð.
· Þriggja herbergja auka íbúð á neðri hæð með sér aðkomu - alveg sér.
· Innbyggður bílskúr.
***Húsið er skráð 224,3 fm samkvæmt FMR en inn í það vantar rými og samkvæmt teikningum er grunnflötur hvorrar hæðar 153,4 og því húsið allt samtals 306,8 fm.***
Nánar lýsing:
Efri hæðin skiptist í góða forstofu, sjónvarpsofu, eldhús, borðstofu og stofu þar sem útgengið er út á góðar svalir. Svefnherbergisgangur með tveimur góðum barnaherbergjum, einu litlu herbergi og stóru hjónaherbergi, útgegnið er út á svalir frá svenherbergis gangi.
Rúmgóð forstofu á efri hæð. Síðan er komið inn í fremri stofu þaðan sem gegnt er út á n-austur svalir.
Frá fremri stofu er glæsileg, björt stofa í L og út af stofu er útgegnt á svalir sem liggja meðfram vestur og suður hlið hússins. Viðarklæðning í loftum í stofum. Miklir gluggar í þrjár áttir.
Innaf stofum er fínt eldhús með viðarlituðum innréttingum og granít borðum og innaf eldhúsi er svo búr með innréttingu.
Á sér aflokuðum svefnherbergja gangi eru fjögur herbergi og baðherberbergi. Fyrst er lítið herbergi sem gert var með því að setja gólf yfir stigann milli hæða.
Barnaherbergi er við hliðina á góðu hjónaherbergi sem er með skápum.
Baðherbergið er mjög stórt flísalagt með miklum innréttingum, baðkari og sturtu og þar eru tveir gluggar. Við enda svefnherbergja gangs er gott herbergi með gluggum í tvær áttir.
Útgegnt á svalir frá svefnherbergja gangi.
Verönd með heitum potti er fyrir framan húsið.
Bílskúrinn er innbyggður, þar gluggar í vestur og norður, sjáfvirkur opnari.
Þvottahúsið er í stóru ca 30fm óskráð rými á neðri hæð með sérinngang.
Neðri hæð er góð 3 herbergja íbúð.
Neðri hæðin er alveg sér - búið að loka milli hæða.
Sér inngangur í íbúð og þar komið í góða forstofu, parket lögð og með góðum skápum.
Síðan er komið í aflanga bjarta stofu, mikið af gluggum.
Baðherbergið er flísalagt með sturtu og innréttingu, lítill gluggi.
Eldhúsið er rúmgott með hvítum innréttingum og þar tveir litilir gluggar.
Við hliðina á eldhúsi er barnaherbergi - gluggi í norður.
Frá stofu eru geymslur í stigaplássinu sem var lokað.
Frá endanum á stofu er komið í gott hjónaherbergi með skápum, gluggi í n-a.
Við hliðina á íbúðinni er sérinngangur í stórt gluggalaust rými - nýtt sem þvottahús og geymsla núna sem er ca 30 fm óskráð rými, einnig væri hægt að opna íbúðina inn í rýmið.
Hægt væri að opna aftur á milli hæða ef þarf.
Framkvæmdasaga samkvæmt seljanda:
Baðherbergi efri hæð endurnýjað árið 2019.
Baðherbergi neðri hæð endurnýjað árið 2021.
Gluggar endurnýjaðir að hluta til árið 2020.
Þak skipt um og lagður nýr pappi árið 2020.
Verönd og heitur pottur árið 2021.
SKOÐAÐU EIGNINA Í 3D – ÞITT EIGIÐ OPIÐ HÚS ÞEGAR ÞÉR HENTAR
Allar nánari upplýsingar um eignina veita:
Bjarný Björg Arnórsdóttir, löggiltur fasteignasali í síma 694-2526 eða á netfangið [email protected]
Um skoðunar- og aðgæsluskyldu kaupenda:
Í lögum um fasteignakaup nr. 40/2002 er kveðið á um ríka skoðunarskyldu kaupenda á fasteignum. Vill því RE/MAX skora á væntanlega kaupendur að kynna sér vel ástand fasteigna fyrir kauptilboðsgerð og leita til þar til bærra sérfræðinga um nánari skoðun ef með þarf.
Forsendur söluyfirlits: Söluyfirlit er samið af fasteignasala í samræmi við ákvæði laga nr. 70/2015. Þær upplýsingar sem fram koma í söluyfirliti þessu eru sóttar í opinberar skrár, til seljanda sjálfs og eftir atvikum til húsfélags. Seljandi veitir upplýsingar um eign í samræmi við upplýsingaskyldu laga um fasteignakaup nr. 40/2002. Fasteignasali sannreynir að þær upplýsingar séu réttar með sjónskoðun á eigninni. Fasteignasali getur ekki fullyrt um ástand og eiginleika þeirra hluta fasteigna sem ekki eru aðgengilegir og sjást ekki berum augum, t.d. lagnir, dren, skólp og þak.
__________________________
Ertu í söluhugleiðingum?
Vegna mikillar eftirspurnar vantar allar tegundir eigna á skrá. Hafið samband og við verðmetum þína eign þér að kostnaðarlausu
__________________________
Gjöld sem kaupandi þarf að standa straum af vegna kaupanna:
1. Stimpilgjald af kaupsamningi er af heildarfasteignamati - Einstaklingar 0,8% - Fyrstu kaupendur 0,4% - Lögaðilar 1,6%.
2. Þinglýsingargjald af kaupsamningi, veðskuldabréfi, veðleyfi og fl. 3.400 kr. af hverju skjali.
3. Lántökugjald lánastofnunar - almennt 45-75 þús.kr. Nánari upplýsingar á heimasíðu lánastofnana.
4. Umsýslugjald til fasteignasölu 69.900 kr. m.vsk
Ár
Fasteignamat
Kaupverð
Stærð
Fermetraverð
13. feb. 2014
50.700.000 kr.
54.000.000 kr.
224.3 m²
240.749 kr.
Byggt á upplýsingum úr Þjóðskrá Íslands frá 2006-2026