Löggiltir fasteignasalar innan Félags fasteignasala:
Ástþór Reynir Guðmundsson
Vigdís R. S. Helgadóttir
Guðbjörg Helga Jóhannesdóttir
Gylfi Jens Gylfason
Sigrún Matthea Sigvaldadóttir
Sveinn Gíslason
Páll Guðmundsson
Þórarinn Arnar Sævarsson
Berglind Hólm Birgisdóttir
Þorsteinn Gíslason
Guðrún Lilja Tryggvadóttir
Brynjar Ingólfsson
Guðný Þorsteinsdóttir
Bjarni Blöndal
Þorsteinn Ólafs
Þórdís Björk Davíðsdóttir
Jóhann Kristinn Jóhannesson
Bjarný Björg Arnórsdóttir
Salvör Þóra Davíðsdóttir
Magga Sigríður Gísladóttir
Upplýsingar
Byggt 2006
240,6 m²
6 herb.
3 baðherb.
4 svefnh.
Þvottahús
Bílskúr
Útsýni
Lýsing
Dagbjartur Willardsson löggiltur fasteignasali og RE/MAX kynna Lambasel 44, Reykjavík fnr. 229-5218 - AUKAÍBÚÐ - Fasteignamat 2026 er 170.950.000.
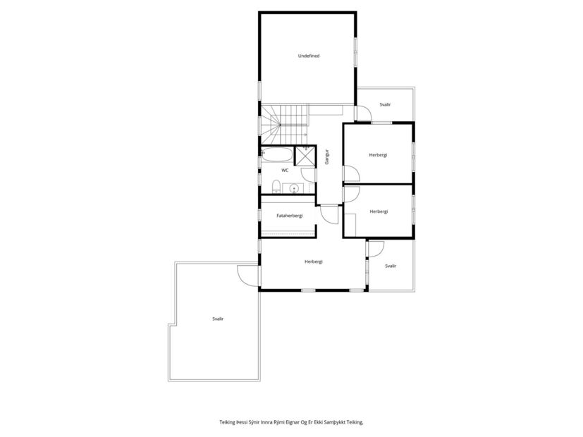
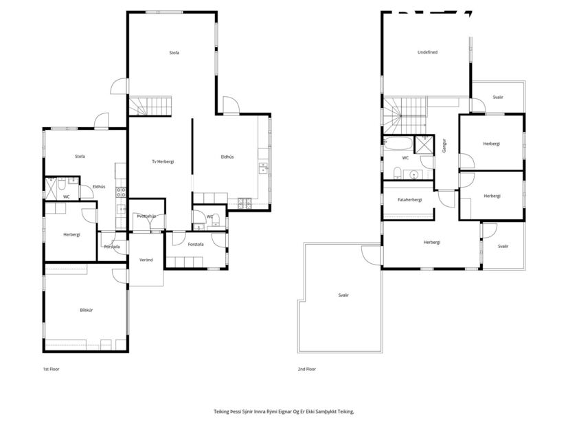
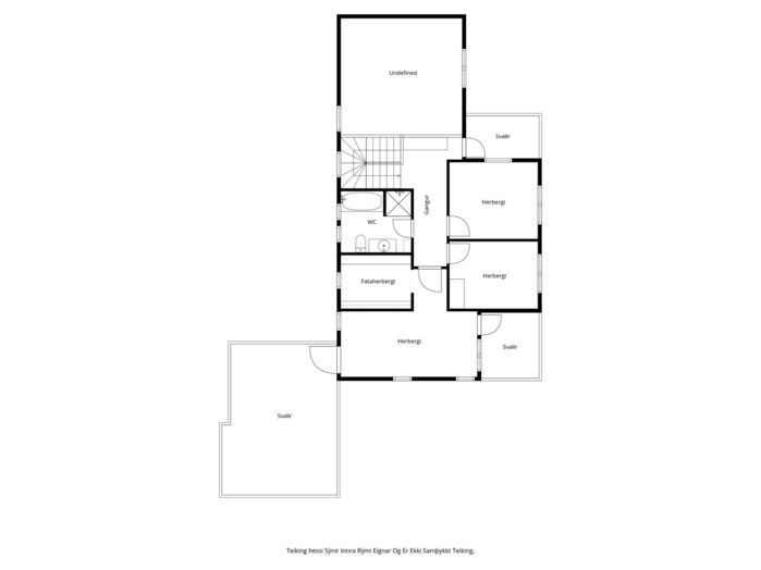
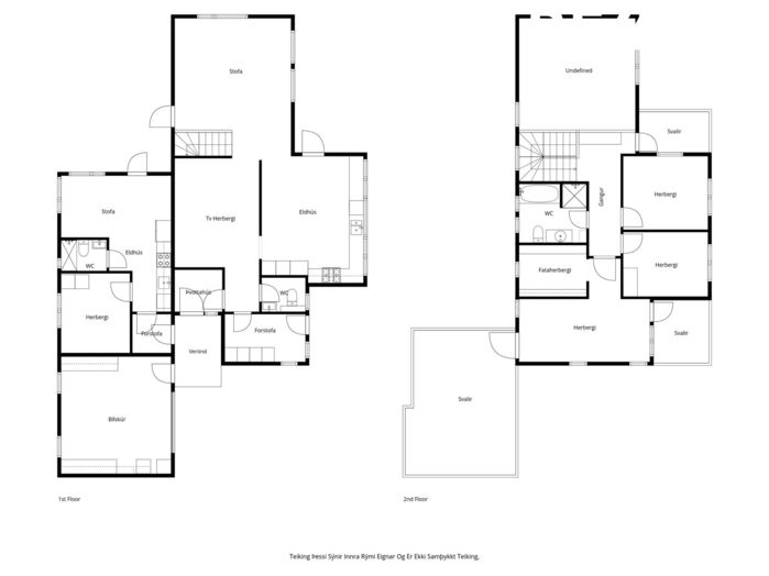
Húsið er byggt árið 2006. Húsið er einbýlishús byggt úr forsteyptum einingum á tveimur hæðum. Birt stærð er 240,6 fm og er húsið skráð 204,4 fm og þar af er aukaíbúð um 40 fm en lítið mál er að opna úr sjónvarpsrými inn í aukaíbúðina. Bílskúr er skráður 36,2 fm. Húsið stendur á stórri lóð sem er skráð 805 fm. Sjá má gólfteikningar af eigninni þar sem ljósmyndir eignarinnar eru.
FÁÐU SENT SÖLUYIRLIT YFIR EIGNINA HÉR.
Nánari lýsing:
NEÐRI HÆÐ:
Aðkoma: Grófjöfnuð lóð með möl fyrir framan bílskúr og að inngangi í húsið.
Forstofa: Flísar á gólfi. Stór hvítur fataskápur.
Gestasnyrting: Flísar á gólfi. Skápur með handlaug. Upphengt salerni. Gluggi er í rýminu.
Þvottahús: Flísar á gólfi. Rýmið er ekki fullklárað.
Sjónvarpsrými: Parket á gólfi. - Lítið mál að opna úr sjónvarpsrými yfir í aukaíbúðina.
Eldhús: Parket á gólfi. Góð innrétting með miklu skápaplássi. Gashelluborð með háfi yfir. Tveir matreiðsluofnar. Innbyggður kæli/frystiskápur í innréttingu. Nýleg AEG innbyggð uppþvottavél. Hurð úr eldhúsi á lóð hússins.
Stofa: Parket á gólfi. Einstaklega mikil lofthæð er í rýminu. Hurð úr stofu á baklóð hússins.
AUKAÍBÚÐ: Íbúðin er með sérinngangi. Íbúðin samanstendur af forstofu, stofu/eldhúsi, svefnherbergi og baðherbergi. íbúðin er um 40 fm og er fullbúin íbúð. Nýlegur fataskápur er í herbergi aukaíbúðarinnar.
EFRI HÆÐ:
Hjónaherbergi: Parket á gólfi. Fataherbergi inn af rýminu með hengi fyrir. Útgengt á tvennar svalir og eru aðrar þeirra mjög stórar og algjör sælureitur á góðviðrisdögum.
Barnaherbergi: Eru tvö og er parket á gólfum þeirra beggja. Nýlegir fataskápar eru í báðum barnaherbergjunum.
Baðherbergi: Flísar á gólfi og á veggjum við votrými. Góð innrétting með handlaug. Baðkar og sturta. Upphengt salerni. Tveir gluggar eru í rýminu.
Bílskúr: Skúrinn er skráður 36,2 fm. Heitt og kalt vatn og rafmagn. Möguleiki væri á að útbúa aðra aukaíbúð í skúrnum.
Lóð: Lóðin er skráð 805 fm og er gróin með góðri grasflöt. Búið er að gróðursetja töluvert af trjágróðri fyrir aftan húsið á lóðinni. Grófjafnað með möl fyrir framan bílskúr og að inngangi í húsið.
Það sem hefur verið gert í húsinu síðustu árin:
2021: Sett upp rafmagnstafla í bílskúr og aukaíbúð auk þess sem aðaltafla var yfirfarin. Bætt við töluvert af ljósum.
2023: Skipt var um alla hausa í gólfhitakerfi.
2023: Skipt var um blöndunartæki í sturtum bæði í aðalíbúð og aukaíbúð.
2023: Skipt um borðplötu í eldhúsinnréttingu og vaskur og blöndunartæki endurnýjuð.
Lambasel 44 er einstaklega fallegt einbýlishús vel staðsett í nýjasta hluta Seljahverfis. Húsið er staðsett innst í botnlanga og er langt í næstu byggð fyrir aftan húsið. Aukaíbúð sem býður upp á möguleika til útleigu eða fyrir stóra fjölskyldu með uppkomin börn en lítið mál að opna á milli aukaíbúðar og neðri hæðar. Möguleiki er á að stækka gólfflöt efri hæðar um 30-40 fm þar sem mikil lofthæð er í stofunni. Þrennar svalir með fallegu útsýni.
- Ég býð upp á frítt söluverðmat á þinni eign og veiti góða og lipra þjónustu. -
Allar nánari upplýsingar veita Dagbjartur Willardsson lgf. í síma 861-7507 eða [email protected].
Gjöld sem kaupandi þarf að standa straum af vegna kaupanna:
1. Stimpilgjald af kaupsamningi - 0,8% af heildarfasteignamati hjá einstaklingum. (Sé um fyrstu kaup að ræða er stimpilgjald af kaupsamningi 0,4%)
2. Stimpilgjald af kaupsamningi - 1,6% af heildarfasteignamati hjá lögaðilum.
3. Þinglýsingagjald af kaupsamningi, veðskuldabréfi, veðleyfi o.fl. 3.800 kr. af hverju skjali.
4. Lántökugjald lánastofnunar - sjá heimasíður lánastofnanna.
5. Umsýslugjald til fasteignasölu 69.900. kr. m.vsk.
Í lögum um fasteignakaup nr. 40/2002 er kveðið á um ríka skoðunarskyldu kaupenda á fasteignum. Vill RE/MAX því skora á væntanlega kaupendur að kynna sér vel ástand fasteigna fyrir kauptilboðsgerð og leita til þar til bærra sérfræðinga um nánari skoðun.
Húsið er byggt árið 2006. Húsið er einbýlishús byggt úr forsteyptum einingum á tveimur hæðum. Birt stærð er 240,6 fm og er húsið skráð 204,4 fm og þar af er aukaíbúð um 40 fm en lítið mál er að opna úr sjónvarpsrými inn í aukaíbúðina. Bílskúr er skráður 36,2 fm. Húsið stendur á stórri lóð sem er skráð 805 fm. Sjá má gólfteikningar af eigninni þar sem ljósmyndir eignarinnar eru.
FÁÐU SENT SÖLUYIRLIT YFIR EIGNINA HÉR.
Nánari lýsing:
NEÐRI HÆÐ:
Aðkoma: Grófjöfnuð lóð með möl fyrir framan bílskúr og að inngangi í húsið.
Forstofa: Flísar á gólfi. Stór hvítur fataskápur.
Gestasnyrting: Flísar á gólfi. Skápur með handlaug. Upphengt salerni. Gluggi er í rýminu.
Þvottahús: Flísar á gólfi. Rýmið er ekki fullklárað.
Sjónvarpsrými: Parket á gólfi. - Lítið mál að opna úr sjónvarpsrými yfir í aukaíbúðina.
Eldhús: Parket á gólfi. Góð innrétting með miklu skápaplássi. Gashelluborð með háfi yfir. Tveir matreiðsluofnar. Innbyggður kæli/frystiskápur í innréttingu. Nýleg AEG innbyggð uppþvottavél. Hurð úr eldhúsi á lóð hússins.
Stofa: Parket á gólfi. Einstaklega mikil lofthæð er í rýminu. Hurð úr stofu á baklóð hússins.
AUKAÍBÚÐ: Íbúðin er með sérinngangi. Íbúðin samanstendur af forstofu, stofu/eldhúsi, svefnherbergi og baðherbergi. íbúðin er um 40 fm og er fullbúin íbúð. Nýlegur fataskápur er í herbergi aukaíbúðarinnar.
EFRI HÆÐ:
Hjónaherbergi: Parket á gólfi. Fataherbergi inn af rýminu með hengi fyrir. Útgengt á tvennar svalir og eru aðrar þeirra mjög stórar og algjör sælureitur á góðviðrisdögum.
Barnaherbergi: Eru tvö og er parket á gólfum þeirra beggja. Nýlegir fataskápar eru í báðum barnaherbergjunum.
Baðherbergi: Flísar á gólfi og á veggjum við votrými. Góð innrétting með handlaug. Baðkar og sturta. Upphengt salerni. Tveir gluggar eru í rýminu.
Bílskúr: Skúrinn er skráður 36,2 fm. Heitt og kalt vatn og rafmagn. Möguleiki væri á að útbúa aðra aukaíbúð í skúrnum.
Lóð: Lóðin er skráð 805 fm og er gróin með góðri grasflöt. Búið er að gróðursetja töluvert af trjágróðri fyrir aftan húsið á lóðinni. Grófjafnað með möl fyrir framan bílskúr og að inngangi í húsið.
Það sem hefur verið gert í húsinu síðustu árin:
2021: Sett upp rafmagnstafla í bílskúr og aukaíbúð auk þess sem aðaltafla var yfirfarin. Bætt við töluvert af ljósum.
2023: Skipt var um alla hausa í gólfhitakerfi.
2023: Skipt var um blöndunartæki í sturtum bæði í aðalíbúð og aukaíbúð.
2023: Skipt um borðplötu í eldhúsinnréttingu og vaskur og blöndunartæki endurnýjuð.
Lambasel 44 er einstaklega fallegt einbýlishús vel staðsett í nýjasta hluta Seljahverfis. Húsið er staðsett innst í botnlanga og er langt í næstu byggð fyrir aftan húsið. Aukaíbúð sem býður upp á möguleika til útleigu eða fyrir stóra fjölskyldu með uppkomin börn en lítið mál að opna á milli aukaíbúðar og neðri hæðar. Möguleiki er á að stækka gólfflöt efri hæðar um 30-40 fm þar sem mikil lofthæð er í stofunni. Þrennar svalir með fallegu útsýni.
- Ég býð upp á frítt söluverðmat á þinni eign og veiti góða og lipra þjónustu. -
Allar nánari upplýsingar veita Dagbjartur Willardsson lgf. í síma 861-7507 eða [email protected].
Gjöld sem kaupandi þarf að standa straum af vegna kaupanna:
1. Stimpilgjald af kaupsamningi - 0,8% af heildarfasteignamati hjá einstaklingum. (Sé um fyrstu kaup að ræða er stimpilgjald af kaupsamningi 0,4%)
2. Stimpilgjald af kaupsamningi - 1,6% af heildarfasteignamati hjá lögaðilum.
3. Þinglýsingagjald af kaupsamningi, veðskuldabréfi, veðleyfi o.fl. 3.800 kr. af hverju skjali.
4. Lántökugjald lánastofnunar - sjá heimasíður lánastofnanna.
5. Umsýslugjald til fasteignasölu 69.900. kr. m.vsk.
Í lögum um fasteignakaup nr. 40/2002 er kveðið á um ríka skoðunarskyldu kaupenda á fasteignum. Vill RE/MAX því skora á væntanlega kaupendur að kynna sér vel ástand fasteigna fyrir kauptilboðsgerð og leita til þar til bærra sérfræðinga um nánari skoðun.