Upplýsingar
Byggt 2025
198,9 m²
0 herb.
1 baðherb.
Lýsing
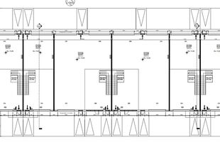
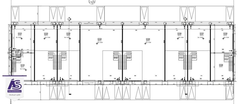
Ný og glæsileg 67,5 - 308,5 fm geymslubil sem mögulegt er að breyta í iðnaðarbil við Álhellu 10 í Hafnarfirði.
Húsið skiptist í 10 einingar sem skilast fullbúin að innan og utan (byggingarstig 4 /matsstig 7).
Smelltur hér til að skoða sölusíðu verkefnisins.
Vsk-kvöð hvílir á húsinu sem væntanlegur kaupandi getur yfirtekið eða greitt upp.
Verð: 35,9 - 119,0 mkr.
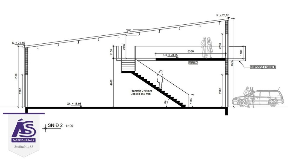
Lofthæð: 5,5 m - 8,0 m. upp yfir mæni og c.a. 4 m undir millilofti.
Iðnaðarhurð: 5x5 m og 4x4 m.
Bil 103:
198,9 fm bil með 136,0 fm gólffleti á neðri hæð og 62,9 fm millilofti með salerni og svölum. Tvær gönguhurðir og tvær innkeyrsluhurðir, 5x5m og 4x4m, í gagnstæðum enda sem býður upp á gegnumkeyrslu eða skiptingu í aðskilin rými.
Nánari lýsing:
- Aksturshurðir eru samlokuhurðir frá Límtré/Vírnet með rafmagnsopnun og fjarstýringu.
- Milliloft í flestum bilum
- Hitað upp með gólfhita í botnplötum og ofnum á milliloftum.
- Svalir í flestum bilum, steyptar.
- Olíugildra fullfrágengin og tengd við fráveitukerfi.
- Lóð skilast malbikuð.
- Möguleiki á að setja upp lyftu í flestum bilum.
- Gólf staðsteypt með járnbentri steinsteypu.
- Skilast slípuð og ómáluð.
- Burðarvirki byggt með steyptum gafl- og milliveggjum auk hluta hliðarveggja, aðrar hliðar úr límtrésvirki.
- Steyptir veggir spartlaðir og málaðir, steypt loft málað.
- Salernisaðstaða í flestum bilum, lagnir fyrir salernissaðstöðu í öllum bilum.
- Klæðning úr steinullarfylttum samlokueiningum.
ATH. myndir geta verið af sambærilegu bili og eru ætlaðar til viðmiðunnar.
Allar nánari upplýsingar veita sölumenn Ás fasteignasölu s. 520-2600 / [email protected]:
Arnór Daði Eiríksson löggiltur fasteignasali s. 777-0939 / [email protected]
Aron Freyr Eiríksson löggiltur fasteignasali s. 772-7376 / [email protected]
Stefán Rafn Sigurmannsson löggiltur fasteignasali s. 655-7000 / [email protected]
Ás fasteignasala er rótgróið fyrirtæki sem hefur veitt alla almenna þjónustu í fasteignaviðskiptum frá árinu 1988.
www.facebook.com/asfasteignasala
www.instagram.com/as_fasteignasala
www.as.is
Húsið skiptist í 10 einingar sem skilast fullbúin að innan og utan (byggingarstig 4 /matsstig 7).
Smelltur hér til að skoða sölusíðu verkefnisins.
Vsk-kvöð hvílir á húsinu sem væntanlegur kaupandi getur yfirtekið eða greitt upp.
Verð: 35,9 - 119,0 mkr.
Lofthæð: 5,5 m - 8,0 m. upp yfir mæni og c.a. 4 m undir millilofti.
Iðnaðarhurð: 5x5 m og 4x4 m.
Bil 103:
198,9 fm bil með 136,0 fm gólffleti á neðri hæð og 62,9 fm millilofti með salerni og svölum. Tvær gönguhurðir og tvær innkeyrsluhurðir, 5x5m og 4x4m, í gagnstæðum enda sem býður upp á gegnumkeyrslu eða skiptingu í aðskilin rými.
Nánari lýsing:
- Aksturshurðir eru samlokuhurðir frá Límtré/Vírnet með rafmagnsopnun og fjarstýringu.
- Milliloft í flestum bilum
- Hitað upp með gólfhita í botnplötum og ofnum á milliloftum.
- Svalir í flestum bilum, steyptar.
- Olíugildra fullfrágengin og tengd við fráveitukerfi.
- Lóð skilast malbikuð.
- Möguleiki á að setja upp lyftu í flestum bilum.
- Gólf staðsteypt með járnbentri steinsteypu.
- Skilast slípuð og ómáluð.
- Burðarvirki byggt með steyptum gafl- og milliveggjum auk hluta hliðarveggja, aðrar hliðar úr límtrésvirki.
- Steyptir veggir spartlaðir og málaðir, steypt loft málað.
- Salernisaðstaða í flestum bilum, lagnir fyrir salernissaðstöðu í öllum bilum.
- Klæðning úr steinullarfylttum samlokueiningum.
ATH. myndir geta verið af sambærilegu bili og eru ætlaðar til viðmiðunnar.
Allar nánari upplýsingar veita sölumenn Ás fasteignasölu s. 520-2600 / [email protected]:
Arnór Daði Eiríksson löggiltur fasteignasali s. 777-0939 / [email protected]
Aron Freyr Eiríksson löggiltur fasteignasali s. 772-7376 / [email protected]
Stefán Rafn Sigurmannsson löggiltur fasteignasali s. 655-7000 / [email protected]
Ás fasteignasala er rótgróið fyrirtæki sem hefur veitt alla almenna þjónustu í fasteignaviðskiptum frá árinu 1988.
www.facebook.com/asfasteignasala
www.instagram.com/as_fasteignasala
www.as.is