Upplýsingar
Verðsaga
Byggt 1998
148 m²
4 herb.
1 baðherb.
3 svefnh.
Þvottahús
Sérinngangur
Lýsing
Fasteignasalan Heimaland kynnir í einkasölu, Grenigrund 17 á Selfossi.
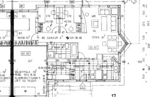
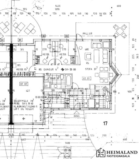
Um er að ræða 148fm parhús innst í botnlanga í grónu hverfi á Selfossi.
Húsið er byggt árið 1998 úr timbri og klætt að utan með liggjandi timburklæðningu, bárujárn á þaki.
Í göngufæri frá íþróttamannvirkjum, grunnskóla, leikskóla og sundlaug.
Húsið telur samkvæmt teikningu forstofu, eldhús, stofu/borðstofu, 3 svefnherbergi, þvottahús/geymslu, baðherbergi og bílskúr.
Forstofa er flísalögð með fataskáp
Þvottahús er flísalagt með innréttingu þar sem gert er ráð fyrir þvottavél og þurrkara.
Eldhús er parketlagt með rúmgóðri innréttingu og borðkrók.
Borðstofa/stofa er rúmgóð og björt með parketi á gólfum. Gengið út sólpall sem snýr til suðurs úr stofunni.
Svefnherbergin eru þrjú, öll rúmgóð með fataskápum og parketi á gólfi.
Baðherbergi er flísalagt í hólf og gólf, með baðkari og sturtuklefa, ásamt rúmgóðri innréttingu.
Bílskúr er snyrtilega frágengin með flísum á gólfi.
Hellulagt bílaplan og gróin garður. Rúmgóður sólpallur með heitum potti á suðurlóð. Geymsluskúr á lóð.
Hér er um að ræða snyrtilega og vel skipulagða eign miðsvæðis á Selfossi. Stutt í alla helstu þjónustu.
Nánari upplýsingar veita:
Snorri Sigurðarson, löggildur fasteigna og skipasali, s: 897-7027, [email protected]
Elísa Dagmar Björgvinsdóttir, aðstoðarmaður fasteignasala í löggildingarnámi, s: 868-7938, [email protected]
Gjöld sem kaupandi þarf að greiða vegna kaupa:
1. Stimpilgjald af kaupsamningi er 0,8% af heildarfasteignamati hjá einstaklingum. Sé um fyrstu kaup að ræða er stimpilgjald af kaupsamningi 0,4% af heildarfasteignamati.
2. Stimpilgjald af kaupsamningi - 1,6% af heildarfasteignamati hjá lögaðilum.
3. Þinglýsingargjald af kaupsamningi, afsali, veðskuldabréfi, mögulegu veðleyfi o.fl. - kr. 3.800 af hverju skjali.
4. Lántökugjald lánastofnunar - samanber gjaldskrá viðkomandi lánastofnunar.
5. Umsýslugjald kaupanda er skv. verðskrá.
Í lögum um fasteignakaup nr. 40/2002 er kveðið á um ríka skoðunarskyldu kaupenda á fasteignum. Fasteignasalan Heimaland hvetur því viðskiptavini sína og væntanlega kaupendur af fasteignum að kynna sér vel ástand fasteigna fyrir tilboðsgerð eða eftir atvikum fyrir kaupsamningsgerð. Ef þurfa þykir ættu væntanlegir kaupendur að leita til þar til bærra sérfræðinga um aðstoð við slíka skoðun.
www.heimaland.is, Austurvegur 6, 800 Selfoss, Fasteignasalan Heimaland ehf.
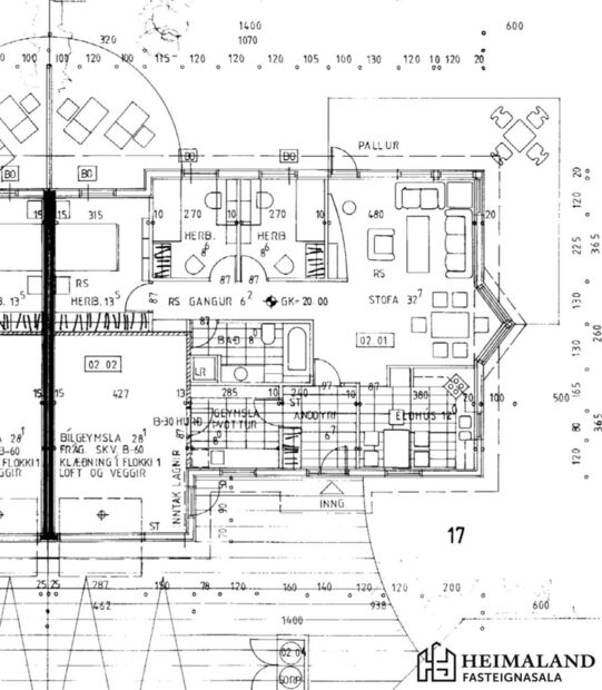
Um er að ræða 148fm parhús innst í botnlanga í grónu hverfi á Selfossi.
Húsið er byggt árið 1998 úr timbri og klætt að utan með liggjandi timburklæðningu, bárujárn á þaki.
Í göngufæri frá íþróttamannvirkjum, grunnskóla, leikskóla og sundlaug.
Húsið telur samkvæmt teikningu forstofu, eldhús, stofu/borðstofu, 3 svefnherbergi, þvottahús/geymslu, baðherbergi og bílskúr.
Forstofa er flísalögð með fataskáp
Þvottahús er flísalagt með innréttingu þar sem gert er ráð fyrir þvottavél og þurrkara.
Eldhús er parketlagt með rúmgóðri innréttingu og borðkrók.
Borðstofa/stofa er rúmgóð og björt með parketi á gólfum. Gengið út sólpall sem snýr til suðurs úr stofunni.
Svefnherbergin eru þrjú, öll rúmgóð með fataskápum og parketi á gólfi.
Baðherbergi er flísalagt í hólf og gólf, með baðkari og sturtuklefa, ásamt rúmgóðri innréttingu.
Bílskúr er snyrtilega frágengin með flísum á gólfi.
Hellulagt bílaplan og gróin garður. Rúmgóður sólpallur með heitum potti á suðurlóð. Geymsluskúr á lóð.
Hér er um að ræða snyrtilega og vel skipulagða eign miðsvæðis á Selfossi. Stutt í alla helstu þjónustu.
Nánari upplýsingar veita:
Snorri Sigurðarson, löggildur fasteigna og skipasali, s: 897-7027, [email protected]
Elísa Dagmar Björgvinsdóttir, aðstoðarmaður fasteignasala í löggildingarnámi, s: 868-7938, [email protected]
Gjöld sem kaupandi þarf að greiða vegna kaupa:
1. Stimpilgjald af kaupsamningi er 0,8% af heildarfasteignamati hjá einstaklingum. Sé um fyrstu kaup að ræða er stimpilgjald af kaupsamningi 0,4% af heildarfasteignamati.
2. Stimpilgjald af kaupsamningi - 1,6% af heildarfasteignamati hjá lögaðilum.
3. Þinglýsingargjald af kaupsamningi, afsali, veðskuldabréfi, mögulegu veðleyfi o.fl. - kr. 3.800 af hverju skjali.
4. Lántökugjald lánastofnunar - samanber gjaldskrá viðkomandi lánastofnunar.
5. Umsýslugjald kaupanda er skv. verðskrá.
Í lögum um fasteignakaup nr. 40/2002 er kveðið á um ríka skoðunarskyldu kaupenda á fasteignum. Fasteignasalan Heimaland hvetur því viðskiptavini sína og væntanlega kaupendur af fasteignum að kynna sér vel ástand fasteigna fyrir tilboðsgerð eða eftir atvikum fyrir kaupsamningsgerð. Ef þurfa þykir ættu væntanlegir kaupendur að leita til þar til bærra sérfræðinga um aðstoð við slíka skoðun.
www.heimaland.is, Austurvegur 6, 800 Selfoss, Fasteignasalan Heimaland ehf.
Ár
Fasteignamat
Kaupverð
Stærð
Fermetraverð
12. júl. 2006
19.110.000 kr.
28.100.000 kr.
148 m²
189.865 kr.
Byggt á upplýsingum úr Þjóðskrá Íslands frá 2006-2026