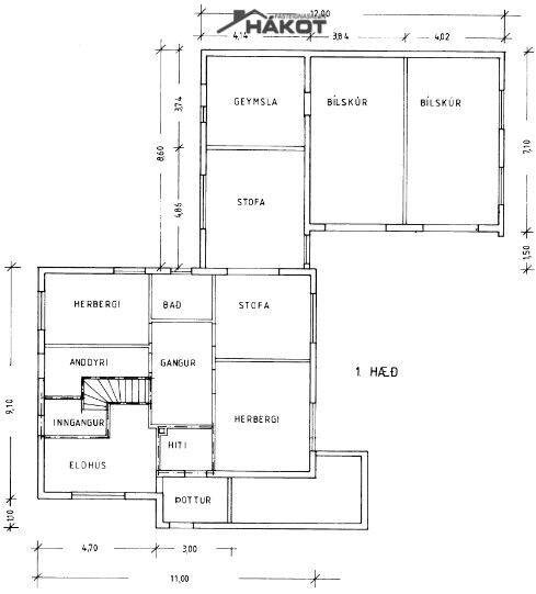
Háteigur, 300 Akranes