Löggiltir fasteignasalar innan Félags fasteignasala:
Daníel Rúnar Elíasson
Vista
fjölbýlishús

Háteigur 3

300 Akranes

49.900.000 kr.

351.656 þ.kr./m2
Fasteignanúmer

F2102352

Fasteignamat

63.250.000 kr.

Brunabótamat

59.040.000 kr.

Áhvílandi

0 kr.

Arion banki – Reikna lán
Upplýsingar
Verðsaga
svg
Byggt 1956
svg
141,9 m²
svg
4 herb.
svg
1 baðherb.
svg
2 svefnh.
svg
Þvottahús
svg
Bílskúr
svg
Sérinngangur

Lýsing

HÁKOT fasteignasala og Daníel Rúnar Elíasson löggiltur fasteignasali sími: 431-4045 / 899-4045 auglýsa:

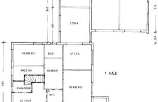
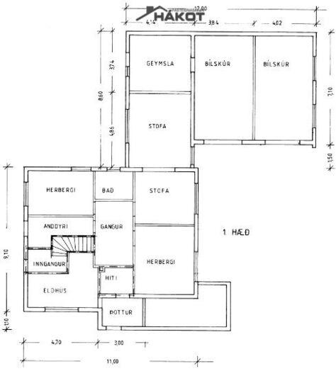
** HÁTEIGUR 3 ** 3ja herbergja neðri sérhæð (114.6 m²) ásamt bílskúr (27.3 m²) = 141.9 m² í tvíbýlishúsi.

Forstofa (flísar, gólfhiti, útgangur í vestur).
Þvottahús (flísar, útgangur í suður, innaf eldhúsi). Kyndigeymsla (ófrágengið gólf, sameiginleg).
Eldhús (flísar, Ikea hvít innrétting, borðpalata Fantófell, flísar á milli skápa, ofn, helluborð og vifta, tengi fyrir uppþvottavél). Búr (dúkur)
Hol (flísar, gólfhiti).
Baðherbergi (flísar, flísar á vegg, ljós viðar innrétting, sturta, gólfhiti, gluggi).
Borðstofa (flísar, gólfhiti).
Stofa (parket).
Svefnherbergi (parket, fataskápur).
Herbergi (parket, skápur).

BÍLSKÚR: Skúr fjær húsi, ójafnt gólf, rafmagn, hiti með affalli, heitt og kalt vatn, flekahurð m/opnar, útgönguhurð í austur).

ANNAÐ: Þakjárn málað ca. 2020. Gler og gluggar endurnýaðir. Búið að endurnýja víra í 1/2 af rafmagni. Ofnar og ofnalagnir frá 2021. Ósteypt innkeyrsla. Hvítar innihurðar (2021). Nýleg steypt verönd í suður (gert ráð fyrir ljósum). Hiti í gólfi í holi, baði, gang, forstofu og borðstofu. Hleðslustöð fyrir rafmagnsbíl. Staðsett á Neðri-Skaga.
 

Allar upplýsingar í söluyfirlitinu eru fengnar hjá seljendum og úr opinberum gögnum.

************
Um skoðunar- og aðgæsluskyldu:
Í lögum um fasteignakaup nr. 40/2002 er kveðið á um ríka skoðunarskyldu kaupenda á fasteignum. Fasteignasalan Hákot bendir væntanlegum kaupendum á að kynna sér vel ástand fasteigna við skoðun og fyrir tilboðsgerð og ef þurfa þykir að leita til sérfræðinga um nánari ástandsskoðun.

Forsendur söluyfirlits: 
Söluyfirlit er samið af fasteignasala í samræmi við ákvæði laga nr. 70/2015. Þær upplýsingar sem fram koma í söluyfirliti þessu eru sóttar í opinberar skrár, til seljanda sjálfs og eftir atvikum til húsfélags. Seljandi veitir upplýsingar um eign í samræmi við upplýsingaskyldu laga um fasteignakaup nr. 40/2002. Fasteignasali metur eignina með sjónskoðun.
Fasteignasali getur ekki fullyrt um ástand og eiginleika þeirra hluta fasteigna sem ekki eru aðgengilegir og sjást ekki berum augum, t.d. lagnir, dren, skólp og þak.

Gjöld sem kaupandi þarf að standa straum af vegna kaupanna:  
1. Stimpilgjald af kaupsamningi - 0.8% af heildar fasteignamati / 1.6% fyrir lögaðila, (0.4% við fyrstu kaup einstaklinga).
2. Þinglýsingagjald af kaupsamningi, afsali, veðskuldabréfi, umboði, veðleyfi o.fl.- kr. 2.700 af hverju skjali.
3. Umsýslugjald kr. 49.600 (m/vsk).
4. Lántökugjald veðskuldabréfa samkvæmt gjaldskrá lánveitenda.
5. Ef um nýbyggingu er að ræða greiðir kaupandi skipulagsgjald, 0,3% af brunabótamáti, þegar það er lagt á

Fasteignasalan Hákot

Fasteignasalan Hákot

Kirkjubraut 12 (jarðhæð)300 Akranesi
phone
Ár
Fasteignamat
Kaupverð
Stærð
Fermetraverð
26. feb. 2021
38.300.000 kr.
32.600.000 kr.
141.9 m²
229.739 kr.
16. des. 2014
17.900.000 kr.
16.967.000 kr.
141.9 m²
119.570 kr.
27. maí. 2008
16.700.000 kr.
18.500.000 kr.
141.9 m²
130.374 kr.
27. júl. 2006
13.068.000 kr.
16.000.000 kr.
139.4 m²
114.778 kr.
Byggt á upplýsingum úr Þjóðskrá Íslands frá 2006-2026
Fasteignasalan Hákot

Fasteignasalan Hákot

Kirkjubraut 12 (jarðhæð)300 Akranesi
phone