Upplýsingar
Verðsaga
Byggt 2019
91,2 m²
4 herb.
1 baðherb.
3 svefnh.
Sameiginl. inngangur
Lyfta
Opið hús: 18. febrúar 2026
kl. 16:15
til 16:45
Opið hús: Davíðshagi 8 301, 600 Akureyri, Íbúð merkt: 01 03 01. Eignin verður sýnd miðvikudaginn 18. febrúar 2026 milli kl. 16:15 og kl. 16:45.
Lýsing
Kasa fasteignir 461-2010.
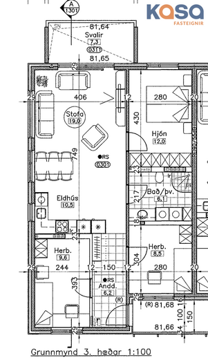
Davíðshagi 8 íbúð íbúð 301. Falleg og björt 4 herbergja 91,2 fm íbúð á efstu hæð í austurenda í fjölbýli með lyftu á góðum stað í Hagahverfi.
Eignin skiptist í forstofu, gang, eldhús og stofu í opnu rými, þrjú svefnherbergi og baðherbergi með þvottaaðstöðu ásamt sérgeymslu á jarðhæð.
Forstofa er með flísum á gólfi og lausum fataskáp.
Gangur er parketlagður, þar er einnig góður skápur.
Eldhús og stofa eru saman í opnu rými, þar er parket á gólfi. Eldhúsinnrétting er falleg með góðu skápa og skúffuplássi, flísar eru á milli skápa, innbyggð uppþvottavél. Rýmið er einstaklega bjart með stórum gluggum. Gengið er út á suðursvalir með frábæru útsýni úr stofu.
Svefnherbergin eru þrjú, parket á gólfum og fataskápur í þeim öllum.
Baðherbergið er flísalagt í gólf og í kringum votrými. Hvít innrétting með plássi fyrir þvottavél og þurrkara ásamt handklæða skáp bak við hurð. Sturtuklefi með glerjum og upphengt salerni.
- Verið er að byggja leikskóla í næsta nágrenni.
- Gólfhiti er í allri íbúð
- Mynddyrasími
- Glæsilegt útsýni og björt og falleg íbúð.
- Húsið er staðsett nyrst í Hagahverfinu og því gott aðgengi í og úr því.
- Húsið er stallað um hálfa hæð sitt hvoru megin við inngang og er íbúðin staðsett í austurenda.
- Sérgeymsla í sameign á jarðhæð.
Nánari upplýsingar í síma 461-2010 eða [email protected]
------------
Skoðunarskylda:
Í lögum um fasteignakaup nr. 40/2002 er kveðið á um ríka skoðunarskyldu kaupenda á fasteignum. Kasa fasteignir benda væntanlegum kaupendum á að kynna sér vel ástand fasteigna fyrir kauptilboðsgerð og leita til þar til bærra sérfræðinga um nánari skoðun ef þurfa þykir.
Forsendur söluyfirlits:
Söluyfirlit er samið af fasteignasala í samræmi við ákvæði laga nr. 70/2015. Þær upplýsingar sem fram koma í söluyfirliti þessu eru sóttar í opinberar skrár, til seljanda sjálfs og eftir atvikum til húsfélags. Seljandi veitir upplýsingar um eign í samræmi við upplýsingaskyldu laga um fasteignakaup nr. 40/2002. Fasteignasali sannreynir að þær upplýsingar séu réttar með sjónskoðun á eigninni. Fasteignasali getur ekki fullyrt um ástand og eiginleika þeirra hluta fasteigna sem ekki eru aðgengilegir og sjást ekki berum augum, t.d. lagnir, dren, skólp og þak.
Gjöld sem kaupandi þarf að standa straum af vegna kaupanna:
1. Stimpilgjald sýslumanns af kaupsamningi, fyrstu kaup (0,4%), almenn kaup (0,8%), lögaðilar (1,6%) af heildarfasteignamati eignar.
2. Þinglýsingargjald af kaupsamningi, veðskuldabréfi, mögulegu veðleyfi o.fl. - kr. 2.700 af hverju skjali.
3. Lántökugjald lánastofnunar er skv. verðskrá viðkomandi lánastofnunar. Nánari upplýsingar á t.d. heimasíðu lánastofnana.
4. Umsýslugjald til fasteignasölu skv. kauptilboði.
Davíðshagi 8 íbúð íbúð 301. Falleg og björt 4 herbergja 91,2 fm íbúð á efstu hæð í austurenda í fjölbýli með lyftu á góðum stað í Hagahverfi.
Eignin skiptist í forstofu, gang, eldhús og stofu í opnu rými, þrjú svefnherbergi og baðherbergi með þvottaaðstöðu ásamt sérgeymslu á jarðhæð.
Forstofa er með flísum á gólfi og lausum fataskáp.
Gangur er parketlagður, þar er einnig góður skápur.
Eldhús og stofa eru saman í opnu rými, þar er parket á gólfi. Eldhúsinnrétting er falleg með góðu skápa og skúffuplássi, flísar eru á milli skápa, innbyggð uppþvottavél. Rýmið er einstaklega bjart með stórum gluggum. Gengið er út á suðursvalir með frábæru útsýni úr stofu.
Svefnherbergin eru þrjú, parket á gólfum og fataskápur í þeim öllum.
Baðherbergið er flísalagt í gólf og í kringum votrými. Hvít innrétting með plássi fyrir þvottavél og þurrkara ásamt handklæða skáp bak við hurð. Sturtuklefi með glerjum og upphengt salerni.
- Verið er að byggja leikskóla í næsta nágrenni.
- Gólfhiti er í allri íbúð
- Mynddyrasími
- Glæsilegt útsýni og björt og falleg íbúð.
- Húsið er staðsett nyrst í Hagahverfinu og því gott aðgengi í og úr því.
- Húsið er stallað um hálfa hæð sitt hvoru megin við inngang og er íbúðin staðsett í austurenda.
- Sérgeymsla í sameign á jarðhæð.
Nánari upplýsingar í síma 461-2010 eða [email protected]
------------
Skoðunarskylda:
Í lögum um fasteignakaup nr. 40/2002 er kveðið á um ríka skoðunarskyldu kaupenda á fasteignum. Kasa fasteignir benda væntanlegum kaupendum á að kynna sér vel ástand fasteigna fyrir kauptilboðsgerð og leita til þar til bærra sérfræðinga um nánari skoðun ef þurfa þykir.
Forsendur söluyfirlits:
Söluyfirlit er samið af fasteignasala í samræmi við ákvæði laga nr. 70/2015. Þær upplýsingar sem fram koma í söluyfirliti þessu eru sóttar í opinberar skrár, til seljanda sjálfs og eftir atvikum til húsfélags. Seljandi veitir upplýsingar um eign í samræmi við upplýsingaskyldu laga um fasteignakaup nr. 40/2002. Fasteignasali sannreynir að þær upplýsingar séu réttar með sjónskoðun á eigninni. Fasteignasali getur ekki fullyrt um ástand og eiginleika þeirra hluta fasteigna sem ekki eru aðgengilegir og sjást ekki berum augum, t.d. lagnir, dren, skólp og þak.
Gjöld sem kaupandi þarf að standa straum af vegna kaupanna:
1. Stimpilgjald sýslumanns af kaupsamningi, fyrstu kaup (0,4%), almenn kaup (0,8%), lögaðilar (1,6%) af heildarfasteignamati eignar.
2. Þinglýsingargjald af kaupsamningi, veðskuldabréfi, mögulegu veðleyfi o.fl. - kr. 2.700 af hverju skjali.
3. Lántökugjald lánastofnunar er skv. verðskrá viðkomandi lánastofnunar. Nánari upplýsingar á t.d. heimasíðu lánastofnana.
4. Umsýslugjald til fasteignasölu skv. kauptilboði.
Ár
Fasteignamat
Kaupverð
Stærð
Fermetraverð
23. apr. 2019
35.850.000 kr.
38.500.000 kr.
91.2 m²
422.149 kr.
Byggt á upplýsingum úr Þjóðskrá Íslands frá 2006-2026