Löggiltir fasteignasalar innan Félags fasteignasala:
Jósep Grímsson
Rúnar Örn Rafnsson
Upplýsingar
Verðsaga
Byggt 2021
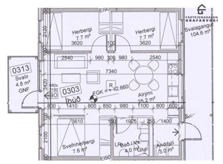
64,3 m²
4 herb.
1 baðherb.
3 svefnh.
Lýsing
Rúnar Örn Rafnsson og Fasteignasalan Grafarvogi kynna:
Fallega fjögurra herbergja íbúð í Jöfursbás 11c, Gufuneshverfi í Grafarvogi.
Björt og falleg íbúð á 3ju hæð með sérinngangi og svölum í þessu lyftuhúsi sem byggt var 2021.
Birt stærð skv. fasteignaskrá er 64,3 m².
Hér er um að ræða frábær fyrstu kaup. Vel skipulögð íbúð með þrem svefnherbergjum.
Lýsing íbúðar:
Forstofa er með flísum á gólfi, góðum fataskáp og hengi.
Alrými Stofa, borðstofa og eldhús eru í björtu huggulegu rými með parket á gólfi. Útgengt á góðar svalir úr stofu.
Í eldhúsi er góð innrétting með ofni, helluborði og viftu. Tengi fyrir uppþvottavél.
Svefnherbergi 1 er með góðum skáp og parketi á gólfi. Tvær rennihurðir eru inn í þetta herbergi.
Svefnherbergi 2 og 3 eru einnig með góðum skápum og parketi á gólfum.
Baðherbergi með vaskinnréttingu,walk-in sturtu og upphengdu salerni. Tengi fyrir þvottavél og þurrkara.
Nýtt parket er á öllum rýmum íbúðarinnar, nema á baðherbergi og forstofu.
Sameign og fleira:
Í sameign hússins er vinnuaðstaða/veislusalur sem íbúar geta nýtt sér. Einnig þvottahús og póstaðstaða.
Sameiginleg hjóla og vagnageymsla er í sérhúsi á lóðinni, sem er stór og fjöskylduvæn.
Íbúar hafa aðgang og afnot af matjurtagarði sem er nærri húsinu og er í eigu Reykjavíkurborgar.
---
Um Þorpið vistfélag í Gufunesi:
Þorpið vistfélag er á sjávarlóð í þessu nýja hverfi í Gufunesi. Frá húsinu er glæsileg sjávarsýn og útsýni yfir Geldinganes og Viðey. Göngu og hjólastígar verða meðfram ströndinni sem tengjast öðrum íbúðarsvæðum í Grafarvogi. Húsin mynda garðrými fyrir skjólgott torg, leiksvæði og grasfleti. Tekið var tillit til sólarátta við skipulagningu byggðarinnar þannig að garðrýmin eru í góðu skjóli. Við innganginn er sólríkt miðlægt torg fyrir framan sameigileg rými þar sem er veislusalur/vinnurými, sameiginlegt þvottahús og pósthús/búr fyrir aðsendan póst og vörur. Við torgið sjálft er leiksvæði fyrir yngri börn, en sparkvöllur og boltasvæði í garði á móti sjó. Á torginu er einnig sameiginleg hjóla og vagnageymsla. Matjurtagarðar í eigu Reykjavíkurborgar eru til afnota fyrir íbúa til ræktunar kjósi þeir það.
Deiliskipulag fyrir Gufunes, nýjasta hverfi Reykjavíkur, byggir á verðlaunatillögu hollensku arkitektastofunnar jvantspijker + Felixx sem árið 2016 hreppti fyrstu verðlaun í hugmyndasamkeppni um Gufunessvæðið. Í vinningstillögunni segir að Gufunes eigi að verða eins konar ventill fyrir ungt fólk sem kýs grósku og borgarbrag í stað úthverfa. Tillagan nýtir óhefluð umhverfisgæði og staðaranda sem grunn að samfélagi þar sem tækifæri, hagkvæmni og upplifun verða í forgrunni.
Í Gufunesi er verið að byggja upp einstakt hverfi í borginni. Þar er fyrirhuguð blönduð byggð. Íbúðir og smærri atvinnurekstur. Lögð verður áhersla á afþreyingu og útivist í þessu manngerða og náttúrulega landslagi með fallegri fjallasýn við sjávarsíðuna.
Nánari upplýsingar veitir:
Rúnar Örn Rafnsson, löggiltur fasteignasali
Fasteignasalan Grafarvogi
S: 771-5600
[email protected]
Fallega fjögurra herbergja íbúð í Jöfursbás 11c, Gufuneshverfi í Grafarvogi.
Björt og falleg íbúð á 3ju hæð með sérinngangi og svölum í þessu lyftuhúsi sem byggt var 2021.
Birt stærð skv. fasteignaskrá er 64,3 m².
Hér er um að ræða frábær fyrstu kaup. Vel skipulögð íbúð með þrem svefnherbergjum.
Lýsing íbúðar:
Forstofa er með flísum á gólfi, góðum fataskáp og hengi.
Alrými Stofa, borðstofa og eldhús eru í björtu huggulegu rými með parket á gólfi. Útgengt á góðar svalir úr stofu.
Í eldhúsi er góð innrétting með ofni, helluborði og viftu. Tengi fyrir uppþvottavél.
Svefnherbergi 1 er með góðum skáp og parketi á gólfi. Tvær rennihurðir eru inn í þetta herbergi.
Svefnherbergi 2 og 3 eru einnig með góðum skápum og parketi á gólfum.
Baðherbergi með vaskinnréttingu,walk-in sturtu og upphengdu salerni. Tengi fyrir þvottavél og þurrkara.
Nýtt parket er á öllum rýmum íbúðarinnar, nema á baðherbergi og forstofu.
Sameign og fleira:
Í sameign hússins er vinnuaðstaða/veislusalur sem íbúar geta nýtt sér. Einnig þvottahús og póstaðstaða.
Sameiginleg hjóla og vagnageymsla er í sérhúsi á lóðinni, sem er stór og fjöskylduvæn.
Íbúar hafa aðgang og afnot af matjurtagarði sem er nærri húsinu og er í eigu Reykjavíkurborgar.
---
Um Þorpið vistfélag í Gufunesi:
Þorpið vistfélag er á sjávarlóð í þessu nýja hverfi í Gufunesi. Frá húsinu er glæsileg sjávarsýn og útsýni yfir Geldinganes og Viðey. Göngu og hjólastígar verða meðfram ströndinni sem tengjast öðrum íbúðarsvæðum í Grafarvogi. Húsin mynda garðrými fyrir skjólgott torg, leiksvæði og grasfleti. Tekið var tillit til sólarátta við skipulagningu byggðarinnar þannig að garðrýmin eru í góðu skjóli. Við innganginn er sólríkt miðlægt torg fyrir framan sameigileg rými þar sem er veislusalur/vinnurými, sameiginlegt þvottahús og pósthús/búr fyrir aðsendan póst og vörur. Við torgið sjálft er leiksvæði fyrir yngri börn, en sparkvöllur og boltasvæði í garði á móti sjó. Á torginu er einnig sameiginleg hjóla og vagnageymsla. Matjurtagarðar í eigu Reykjavíkurborgar eru til afnota fyrir íbúa til ræktunar kjósi þeir það.
Deiliskipulag fyrir Gufunes, nýjasta hverfi Reykjavíkur, byggir á verðlaunatillögu hollensku arkitektastofunnar jvantspijker + Felixx sem árið 2016 hreppti fyrstu verðlaun í hugmyndasamkeppni um Gufunessvæðið. Í vinningstillögunni segir að Gufunes eigi að verða eins konar ventill fyrir ungt fólk sem kýs grósku og borgarbrag í stað úthverfa. Tillagan nýtir óhefluð umhverfisgæði og staðaranda sem grunn að samfélagi þar sem tækifæri, hagkvæmni og upplifun verða í forgrunni.
Í Gufunesi er verið að byggja upp einstakt hverfi í borginni. Þar er fyrirhuguð blönduð byggð. Íbúðir og smærri atvinnurekstur. Lögð verður áhersla á afþreyingu og útivist í þessu manngerða og náttúrulega landslagi með fallegri fjallasýn við sjávarsíðuna.
Nánari upplýsingar veitir:
Rúnar Örn Rafnsson, löggiltur fasteignasali
Fasteignasalan Grafarvogi
S: 771-5600
[email protected]
Ár
Fasteignamat
Kaupverð
Stærð
Fermetraverð
25. jan. 2022
39.400.000 kr.
19.793.000 kr.
64.3 m²
307.823 kr.
26. mar. 2021
16.950.000 kr.
36.494.000 kr.
64.3 m²
567.558 kr.
Byggt á upplýsingum úr Þjóðskrá Íslands frá 2006-2026