Upplýsingar
Verðsaga
Byggt 2019
118,7 m²
3 herb.
1 baðherb.
2 svefnh.
Þvottahús
Bílskúr
Sérinngangur
Lýsing
Fasteignasalan Heimaland kynnir í einkasölu, Þúfulækur 8 á Selfossi.
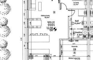
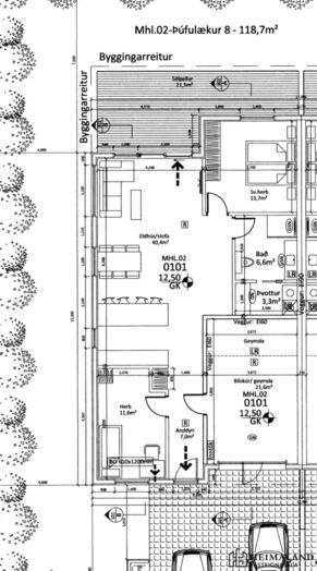
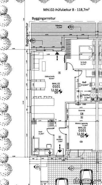
Um er að ræða 118,7fm parhús í Lækjahverfi á Selfossi. Bílskúr er þar af 24,4fm.
Húsið er byggt árið 2019 úr timbri, klætt a utan með bárujárni og járn er á þaki.
Samkvæmt teikningu skiptist íbúðin í forstofu, 2 svefnherbergi, baðherbergi, þvottahús, alrými sem samanstendur af eldhúsi, borðstofu og stofu, og bílskúr.
Nánari lýsing eignar:
Gengið er inn í flísalagða forstofu með fataskáp, og þaðan er gengið inn í bílskúrinn.
Stofa/borðstofa er björt og falleg með parketi á gólfi.
Frá stofu er gengið út á rúmgóðan sólpall með heitum potti og útsýni yfir Ölfusá og Ingólfsfjall.
Eldhúsið er með ljósri innréttingu með innbyggðum ísskáp og uppþvottavél.
Svefnherbergin eru 2, bæði með parketi á gólfi og annað með rúmgóðum fataskáp.
Baðherbergið er flísalagt í hólf og gólf, með innréttingu, upphengdu WC og gólfsturtu.
Inn af baðherbergi er svo þvottahús með innréttingu þar sem gert er ráð fyrir þvottavél og þurrkara í vinnuhæð.
Snyrtilegt og vel skipulagt parhús við bakka Ölfusár sem vert er að skoða betur.
Nánari upplýsingar veita:
Elísa Dagmar Björgvinsdóttir, aðstoðarmaður fasteignasala í löggildingarnámi, s: 868-7938, [email protected]
Snorri Sigurðarson, löggildur fasteigna og skipasali, s: 897-7027, [email protected]
Gjöld sem kaupandi þarf að greiða vegna kaupa:
1. Stimpilgjald af kaupsamningi er 0,8% af heildarfasteignamati hjá einstaklingum. Sé um fyrstu kaup að ræða er stimpilgjald af kaupsamningi 0,4% af heildarfasteignamati.
2. Stimpilgjald af kaupsamningi - 1,6% af heildarfasteignamati hjá lögaðilum.
3. Þinglýsingargjald af kaupsamningi, afsali, veðskuldabréfi, mögulegu veðleyfi o.fl. - kr. 2.700 af hverju skjali.
4. Lántökugjald lánastofnunar - samanber gjaldskrá viðkomandi lánastofnunar.
5. Umsýslugjald kaupanda er skv. verðskrá.
Í lögum um fasteignakaup nr. 40/2002 er kveðið á um ríka skoðunarskyldu kaupenda á fasteignum. Fasteignasalan Heimaland hvetur því viðskiptavini sína og væntanlega kaupendur af fasteignum að kynna sér vel ástand fasteigna fyrir tilboðsgerð eða eftir atvikum fyrir kaupsamningsgerð. Ef þurfa þykir ættu væntanlegir kaupendur að leita til þar til bærra sérfræðinga um aðstoð við slíka skoðun.
www.heimaland.is, Austurvegur 6, 800 Selfoss, Fasteignasalan Heimaland ehf.
Um er að ræða 118,7fm parhús í Lækjahverfi á Selfossi. Bílskúr er þar af 24,4fm.
Húsið er byggt árið 2019 úr timbri, klætt a utan með bárujárni og járn er á þaki.
Samkvæmt teikningu skiptist íbúðin í forstofu, 2 svefnherbergi, baðherbergi, þvottahús, alrými sem samanstendur af eldhúsi, borðstofu og stofu, og bílskúr.
Nánari lýsing eignar:
Gengið er inn í flísalagða forstofu með fataskáp, og þaðan er gengið inn í bílskúrinn.
Stofa/borðstofa er björt og falleg með parketi á gólfi.
Frá stofu er gengið út á rúmgóðan sólpall með heitum potti og útsýni yfir Ölfusá og Ingólfsfjall.
Eldhúsið er með ljósri innréttingu með innbyggðum ísskáp og uppþvottavél.
Svefnherbergin eru 2, bæði með parketi á gólfi og annað með rúmgóðum fataskáp.
Baðherbergið er flísalagt í hólf og gólf, með innréttingu, upphengdu WC og gólfsturtu.
Inn af baðherbergi er svo þvottahús með innréttingu þar sem gert er ráð fyrir þvottavél og þurrkara í vinnuhæð.
Snyrtilegt og vel skipulagt parhús við bakka Ölfusár sem vert er að skoða betur.
Nánari upplýsingar veita:
Elísa Dagmar Björgvinsdóttir, aðstoðarmaður fasteignasala í löggildingarnámi, s: 868-7938, [email protected]
Snorri Sigurðarson, löggildur fasteigna og skipasali, s: 897-7027, [email protected]
Gjöld sem kaupandi þarf að greiða vegna kaupa:
1. Stimpilgjald af kaupsamningi er 0,8% af heildarfasteignamati hjá einstaklingum. Sé um fyrstu kaup að ræða er stimpilgjald af kaupsamningi 0,4% af heildarfasteignamati.
2. Stimpilgjald af kaupsamningi - 1,6% af heildarfasteignamati hjá lögaðilum.
3. Þinglýsingargjald af kaupsamningi, afsali, veðskuldabréfi, mögulegu veðleyfi o.fl. - kr. 2.700 af hverju skjali.
4. Lántökugjald lánastofnunar - samanber gjaldskrá viðkomandi lánastofnunar.
5. Umsýslugjald kaupanda er skv. verðskrá.
Í lögum um fasteignakaup nr. 40/2002 er kveðið á um ríka skoðunarskyldu kaupenda á fasteignum. Fasteignasalan Heimaland hvetur því viðskiptavini sína og væntanlega kaupendur af fasteignum að kynna sér vel ástand fasteigna fyrir tilboðsgerð eða eftir atvikum fyrir kaupsamningsgerð. Ef þurfa þykir ættu væntanlegir kaupendur að leita til þar til bærra sérfræðinga um aðstoð við slíka skoðun.
www.heimaland.is, Austurvegur 6, 800 Selfoss, Fasteignasalan Heimaland ehf.
Ár
Fasteignamat
Kaupverð
Stærð
Fermetraverð
9. ágú. 2019
4.460.000 kr.
24.900.000 kr.
118.7 m²
209.773 kr.
Byggt á upplýsingum úr Þjóðskrá Íslands frá 2006-2026