Upplýsingar
Byggt 2004
90,4 m²
3 herb.
1 baðherb.
2 svefnh.
Þvottahús
Sérinngangur
Lýsing
Kasa fasteignir 461-2010.
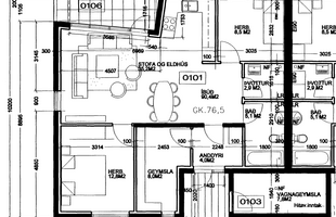
Grenilundur 4, íbúð 101. Björt og vel skipulögð 3 herbergja 90,4 fm íbúð á jarðhæð í fjórbýlishúsi á góðum stað í Lundarhverfi.
Eignin skiptist í forstofu, stofu, eldhús, baðherbergi, þvottahús, 2 svefnherbergi og rúmgóða geymslu með litlum glugga.
Forstofa: Flísar á gólfi og rúmgóður fataskápur.
Stofa: Rúmgott rými með parketi á gólfum sem nýtist sem stofa og borðstofa. Úr stofu er gengið út á steyptan pall í suður.
Eldhús: Parket á gólfi og flísar á milli skápa. Hvít innrétting með plássi fyrir ísskáp og uppþvottavél og bakaraofn í vinnuhæð.
Baðherbergi er flísalagt í hólf og gólf. Þar er hvít innrétting, salerni, handklæðaofn og sturta.
Svefnherbergin eru tvö, bæði með parketi á gólfum. Stærra herbergið er með rúmgóðum fataskáp.
Þvottahús er með flísum á gólfi og hvítri innréttingu með vaski og plássi fyrir þvottavél og þurrkara.
Geymsla er með flísum á gólfi og litlum glugga og gæti því nýst sem herbergi eða skrifstofa.
- Eignin á hlutdeild í tveimur sameiginlegum geymslum
- Gott og barnvænt hverfi
- Stutt í leik-, grunn- og framhaldsskóla
Nánari upplýsingar í síma 461-2010 eða [email protected]
------------
Skoðunarskylda:
Í lögum um fasteignakaup nr. 40/2002 er kveðið á um ríka skoðunarskyldu kaupenda á fasteignum. Kasa fasteignir benda væntanlegum kaupendum á að kynna sér vel ástand fasteigna fyrir kauptilboðsgerð og leita til þar til bærra sérfræðinga um nánari skoðun ef þurfa þykir.
Forsendur söluyfirlits:
Söluyfirlit er samið af fasteignasala í samræmi við ákvæði laga nr. 70/2015. Þær upplýsingar sem fram koma í söluyfirliti þessu eru sóttar í opinberar skrár, til seljanda sjálfs og eftir atvikum til húsfélags. Seljandi veitir upplýsingar um eign í samræmi við upplýsingaskyldu laga um fasteignakaup nr. 40/2002. Fasteignasali sannreynir að þær upplýsingar séu réttar með sjónskoðun á eigninni. Fasteignasali getur ekki fullyrt um ástand og eiginleika þeirra hluta fasteigna sem ekki eru aðgengilegir og sjást ekki berum augum, t.d. lagnir, dren, skólp og þak.
Gjöld sem kaupandi þarf að standa straum af vegna kaupanna:
1. Stimpilgjald sýslumanns af kaupsamningi, fyrstu kaup (0,4%), almenn kaup (0,8%), lögaðilar (1,6%) af heildarfasteignamati eignar.
2. Þinglýsingargjald af kaupsamningi, veðskuldabréfi, mögulegu veðleyfi o.fl. - kr. 2.700 af hverju skjali.
3. Lántökugjald lánastofnunar er skv. verðskrá viðkomandi lánastofnunar. Nánari upplýsingar á t.d. heimasíðu lánastofnana.
4. Umsýslugjald til fasteignasölu skv. kauptilboði.
Grenilundur 4, íbúð 101. Björt og vel skipulögð 3 herbergja 90,4 fm íbúð á jarðhæð í fjórbýlishúsi á góðum stað í Lundarhverfi.
Eignin skiptist í forstofu, stofu, eldhús, baðherbergi, þvottahús, 2 svefnherbergi og rúmgóða geymslu með litlum glugga.
Forstofa: Flísar á gólfi og rúmgóður fataskápur.
Stofa: Rúmgott rými með parketi á gólfum sem nýtist sem stofa og borðstofa. Úr stofu er gengið út á steyptan pall í suður.
Eldhús: Parket á gólfi og flísar á milli skápa. Hvít innrétting með plássi fyrir ísskáp og uppþvottavél og bakaraofn í vinnuhæð.
Baðherbergi er flísalagt í hólf og gólf. Þar er hvít innrétting, salerni, handklæðaofn og sturta.
Svefnherbergin eru tvö, bæði með parketi á gólfum. Stærra herbergið er með rúmgóðum fataskáp.
Þvottahús er með flísum á gólfi og hvítri innréttingu með vaski og plássi fyrir þvottavél og þurrkara.
Geymsla er með flísum á gólfi og litlum glugga og gæti því nýst sem herbergi eða skrifstofa.
- Eignin á hlutdeild í tveimur sameiginlegum geymslum
- Gott og barnvænt hverfi
- Stutt í leik-, grunn- og framhaldsskóla
Nánari upplýsingar í síma 461-2010 eða [email protected]
------------
Skoðunarskylda:
Í lögum um fasteignakaup nr. 40/2002 er kveðið á um ríka skoðunarskyldu kaupenda á fasteignum. Kasa fasteignir benda væntanlegum kaupendum á að kynna sér vel ástand fasteigna fyrir kauptilboðsgerð og leita til þar til bærra sérfræðinga um nánari skoðun ef þurfa þykir.
Forsendur söluyfirlits:
Söluyfirlit er samið af fasteignasala í samræmi við ákvæði laga nr. 70/2015. Þær upplýsingar sem fram koma í söluyfirliti þessu eru sóttar í opinberar skrár, til seljanda sjálfs og eftir atvikum til húsfélags. Seljandi veitir upplýsingar um eign í samræmi við upplýsingaskyldu laga um fasteignakaup nr. 40/2002. Fasteignasali sannreynir að þær upplýsingar séu réttar með sjónskoðun á eigninni. Fasteignasali getur ekki fullyrt um ástand og eiginleika þeirra hluta fasteigna sem ekki eru aðgengilegir og sjást ekki berum augum, t.d. lagnir, dren, skólp og þak.
Gjöld sem kaupandi þarf að standa straum af vegna kaupanna:
1. Stimpilgjald sýslumanns af kaupsamningi, fyrstu kaup (0,4%), almenn kaup (0,8%), lögaðilar (1,6%) af heildarfasteignamati eignar.
2. Þinglýsingargjald af kaupsamningi, veðskuldabréfi, mögulegu veðleyfi o.fl. - kr. 2.700 af hverju skjali.
3. Lántökugjald lánastofnunar er skv. verðskrá viðkomandi lánastofnunar. Nánari upplýsingar á t.d. heimasíðu lánastofnana.
4. Umsýslugjald til fasteignasölu skv. kauptilboði.