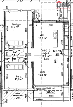
Holtsvegur, 210 Garðabær