Löggiltir fasteignasalar innan Félags fasteignasala:
Sverrir Kristinsson
Kjartan Hallgeirsson
Guðlaugur Ingi Guðlaugsson
Daði Hafþórsson
Gunnar Helgi Einarsson
Gunnar Bergmann Jónsson
Jenný Sandra Gunnarsdóttir
Vista
fjölbýlishús

Hamraborg 28

200 Kópavogur

51.900.000 kr.

990.458 þ.kr./m2
Fasteignanúmer

F2061333

Fasteignamat

46.950.000 kr.

Brunabótamat

31.850.000 kr.

Áhvílandi

0 kr.

Arion banki – Reikna lán
Upplýsingar
Verðsaga
svg
Byggt 1977
svg
52,4 m²
svg
2 herb.
svg
1 baðherb.
svg
1 svefnh.
svg
Sameiginl. inngangur

Lýsing

Eignamiðlun kynnir:

Hamraborg 28,  52.4 fm 2 herb. íbúð á 2. hæð í góðu vel staðsettu 3ja hæða fjölbýli. íbúðin var mikið endurnýjuð fyrir um 10 árum m.a gólfefni, baðherbergi, eldhús og fataskápar. Sérgeymsla í sameign. Sameiginlegt þvottahús.  Aðgangur að sameiginlegu bílskýli. 

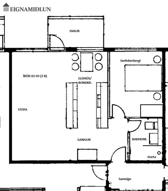
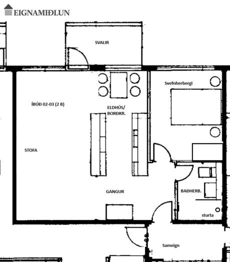
Eignin er skráð sem hér segir hjá Þjóðskrá: Fastanr. 206-1333, nánar tiltekið eign merkt 02-03.  Ibúðin er skráð  52,4 fm og virðist sérgeymsla í sameign ekki vera skráð í heildarfermetratölu eignarinnar. Birt heildarstærð er 52,4 fm. Eigninni fylgir aðgangur að sameiginlegu bílskýli. Svalir eru til vesturs út frá stofu.

Eignin skiptist í: Forstofu/hol,svefnherbergi,  stofu, eldhús og baðherb.

Smelltu hér til að sækja söluyfirlit.

Nánari lýsing eignarinnar:
FORSTOFA/HOL: Hol með endurnýjuðum skápum og parketi. 
ELDHÚS: Eldhúsið er með fallegri hvítri innréttingu og borðkrók við glugga. Parket. Ísskápur og uppþvottavél fylgja.
STOFA: Stofan er rúmgóð parketlögð og er gengið úr stofu út á vestursvalir inn í garðinn. 
BAÐHERBERGI: Baðherbergið var eins og fleira endurnýjað fyrir ca 10 árum með innréttingu, vegghengdu salerni og "walk in"sturtuklefa. Baðherbergið er flísalagt. 
SVEFNHERBERGI: Rúmgott parketlagt herbergi með nýlegum skápum. 
SÉRGEYMSLA OG SAMEIGN: Góð sérgeymsla í sameign og aðgangur að sameiginlegu þvottahúsi, þurkherbergi og sameiginlegri hjóla og vagnageymslu. 
BÍLSKÝLI: Aðgangur er að sameiginlegu bílskýli (ekki sérmerkt stæði) undir húsunum. 
GARÐUR: Verið er að vinna í algjörri endurnýjun sameiginlegs garðs ofan á bílastæðahúsi milli húsanna. 

Nánari upplýsingar veitir Þórarinn M. Friðgeirsson Löggiltur fasteignasali, í síma 899-1882, tölvupóstur [email protected] eða skrifstofa Eignamiðlunar í síma 588-9090

***
Ábyrg þjónusta í áratugi. Eignamiðlun var stofnuð 1957 og er elsta starfandi fasteignasala á Íslandi. Reynsla, heiðarleiki og þekking á fasteignamarkaðnum eru grunnur að farsælum viðskiptum. 

Eignamiðlun Grensásvegi 11, 108 Reykjavík - Opið frá kl. 9-17 mánudaga til fimmtudaga og 9-16 á föstudögum.

Heimasíða Eignamiðlunar

Eignamiðlun á Facebook

Eignamiðlun

Eignamiðlun

Grensásvegi 11, 108 Reykjavík
Ár
Fasteignamat
Kaupverð
Stærð
Fermetraverð
25. ágú. 2015
14.650.000 kr.
23.200.000 kr.
52.4 m²
442.748 kr.
9. mar. 2015
14.500.000 kr.
18.500.000 kr.
52.4 m²
353.053 kr.
Byggt á upplýsingum úr Þjóðskrá Íslands frá 2006-2026
Eignamiðlun

Eignamiðlun

Grensásvegi 11, 108 Reykjavík