Löggiltir fasteignasalar innan Félags fasteignasala:
Jóhannes E. Levy
Upplýsingar
Byggt 1990
155,1 m²
7 herb.
1 baðherb.
5 svefnh.
Þvottahús
Útsýni
Sameiginl. inngangur
Lýsing
Jóhannes E. Levy fasteignasali kynnir: SJÖ herbergja íbúð á tveimur hæðum, hæð og ris í reisulegu fjölbýli miðsvæðis í Mosfellsbæ.
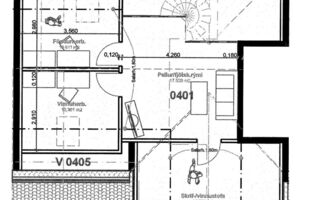
Eignin skiptist í forstofu, tvö svefnherbergi, rúmgott eldhús, þvottahús, baðherbergi, stofu og borðstofu sem er allt á þriðju hæð. Uppi um stiga úr stofu er gott sjónvarpshol og þrjú svefnherbergi. Íbúð, fastanúmer 2085012, íbúðareign merkt 01-0301 er skráð 155,1 m2 hjá HMS. Gólfflötur efri hæðar er mun stærri en birt stærð gefur til kynna þar sem stór hluti er undir súð.
NÁNARI LÝSING:
Neðri hæð: Gengið er inn í forstofu með flísum á gólfi og góðum fataskáp. Þar við eru 2 svefnherbegi með dúk á gólfi og fataskáp. Eldhúsið er stórt og bjart með ljósri innréttingu, tveimur útsýnisgluggum, borðkrók og gegnheilu eikarparketi á gólfi. Inn af eldhúsinu er svo þvottahúsið dúklagt. Baðherbergið er flísalagt í hólf og gólf með ljósri innréttingu með handlaug, salerni og baðkari. Stofan og borðstofan eru samliggjandi og bjartar þar sem hátt er til lofts, parketlagt með gegnheilli eik og útgengi á svalir (6,4 m2) sem snúa til suðvesturs.
Íbúðarareign á 3. hæð telst 104,1 m2 og 4. hæð 51,0 m2.
Efri hæð. Þegar komið er upp á efri hæð er gott sjónvarps og alrými parketlagt með gegnheilli eik, úr alrýminu er gengið inn í þrjú svefnherbergi; eitt stórt með dúk á gólfi og tvö minni með gegnheilli eik á gólfum og Velux þakgluggum. Á stigagangi fyrir framan íbúðina er sérgeymsla svo er hjólageymsla í sameign á jarðhæð ásamt sorpgeymslu.
Sameign er snyrtileg með nýju teppi á stiganum og nýlega málað. Nýbúið er að skipta um þakjárn á húsinu og yfirfara þakið í heild sinni. Húsfélagið hyggst láta mála að utan í sumar. Fallegt útsýni er m.a. til Esjunnar og Fellanna í næsta nágrenni.
Vel skipulögð og fjölskylduvæn eign á góðum stað, þar sem stutt er í alla helstu þjónustu, leikskóla, grunnskóla, framhaldsskóla & íþróttir, heilsugæslu o.s.frv.
Nánari upplýsingar veitir
Jóhannes E. Levy, Löggiltur fasteignasali, í síma 7721050 eða tölvupósti
Eignin skiptist í forstofu, tvö svefnherbergi, rúmgott eldhús, þvottahús, baðherbergi, stofu og borðstofu sem er allt á þriðju hæð. Uppi um stiga úr stofu er gott sjónvarpshol og þrjú svefnherbergi. Íbúð, fastanúmer 2085012, íbúðareign merkt 01-0301 er skráð 155,1 m2 hjá HMS. Gólfflötur efri hæðar er mun stærri en birt stærð gefur til kynna þar sem stór hluti er undir súð.
NÁNARI LÝSING:
Neðri hæð: Gengið er inn í forstofu með flísum á gólfi og góðum fataskáp. Þar við eru 2 svefnherbegi með dúk á gólfi og fataskáp. Eldhúsið er stórt og bjart með ljósri innréttingu, tveimur útsýnisgluggum, borðkrók og gegnheilu eikarparketi á gólfi. Inn af eldhúsinu er svo þvottahúsið dúklagt. Baðherbergið er flísalagt í hólf og gólf með ljósri innréttingu með handlaug, salerni og baðkari. Stofan og borðstofan eru samliggjandi og bjartar þar sem hátt er til lofts, parketlagt með gegnheilli eik og útgengi á svalir (6,4 m2) sem snúa til suðvesturs.
Íbúðarareign á 3. hæð telst 104,1 m2 og 4. hæð 51,0 m2.
Efri hæð. Þegar komið er upp á efri hæð er gott sjónvarps og alrými parketlagt með gegnheilli eik, úr alrýminu er gengið inn í þrjú svefnherbergi; eitt stórt með dúk á gólfi og tvö minni með gegnheilli eik á gólfum og Velux þakgluggum. Á stigagangi fyrir framan íbúðina er sérgeymsla svo er hjólageymsla í sameign á jarðhæð ásamt sorpgeymslu.
Sameign er snyrtileg með nýju teppi á stiganum og nýlega málað. Nýbúið er að skipta um þakjárn á húsinu og yfirfara þakið í heild sinni. Húsfélagið hyggst láta mála að utan í sumar. Fallegt útsýni er m.a. til Esjunnar og Fellanna í næsta nágrenni.
Vel skipulögð og fjölskylduvæn eign á góðum stað, þar sem stutt er í alla helstu þjónustu, leikskóla, grunnskóla, framhaldsskóla & íþróttir, heilsugæslu o.s.frv.
Nánari upplýsingar veitir
Jóhannes E. Levy, Löggiltur fasteignasali, í síma 7721050 eða tölvupósti