Löggiltir fasteignasalar innan Félags fasteignasala:
Sigurður Maack Gunnarsson
Svanþór Einarsson
Theodór Emil Karlsson
Steingrímur Benediktsson
Vista
fjölbýlishús

Brattahlíð 32

270 Mosfellsbær

98.900.000 kr.

887.792 þ.kr./m2
Fasteignanúmer

F2512453

Fasteignamat

85.950.000 kr.

Brunabótamat

65.150.000 kr.

Áhvílandi

0 kr.

Arion banki – Reikna lán
Upplýsingar
Verðsaga
svg
Byggt 2021
svg
111,4 m²
svg
4 herb.
svg
1 baðherb.
svg
3 svefnh.
svg
Sérinngangur
Opið hús: 9. apríl 2026 kl. 17:15 til 17:45

Opið hús: Brattahlíð 32, 270 Mosfellsbær, Íbúð merkt: 01 01 02. Eignin verður sýnd fimmtudaginn 9. apríl 2026 milli kl. 17:15 og kl. 17:45.

Lýsing

** Opið hús fimmtudaginn 9. apríl frá kl. 17:15 til 17:45 - Svanþór Einarsson, löggiltur fasteignasali - [email protected] eða 698-8555 - Steingrímur Benediktsson, löggiltur fasteignasali - [email protected] eða 862-9416 - Theodór Emil Karlsson, löggiltur fasteignasali - [email protected] eða 690-8040 ** 

Fasteignasala Mosfellsbæjar kynnir: Mjög falleg og vönduð 111,4 m2, 4ra herbergja íbúð með sérinngangi á jarðhæð í litlu fjölbýlishúsi við Bröttuhlíð 32 Mosfellsbæ. Eignin skiptist í þrjú svefnherbergi, forstofu, baðherbergi, geymslu innan íbúðar, eldhús, borðstofu og stofu. Stór timburverönd í suðurátt með heitum og köldum potti. Um er að ræða fallega og vel skipulagða íbúð með aukinni lofthæð í fjögra íbúða húsi á vinsælum stað í Mosfellsbæ. Stutt er í miðbæ Mosfellsbæjar, verslanir og aðra þjónustu. Einnig er Lágafellslaug í göngufæri sem og skólar, leikskólar og golfvöllur. 

Smelltu hér til að fá söluyfirlit sent strax.


Nánari lýsing: 
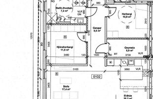
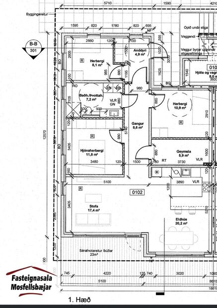
Forstofa er með fataskápum og flísum á gólfi.
Eldhús með parketi á gólfi og fallegri eikarinnréttingum með góðu skápa-, skúffu- og borðplássi. Efri skápar ná upp í loft. Í innréttingu er innbyggð uppþvottavél, ofn, helluborð og háfur. Gert er ráð fyrir ísskáp í innréttingu.
Stofa og borðstofa eru í opnu rými með eldhúsi og með parketi á gólfi. Út stofu er gengið út á timburverönd í suðurátt með heitum og köldum potti.
Hjónaherbergi rúmgott með parketi á gólfi og góðum fataskápum.
Svefnherbergi nr. 2 er rúmgott með parketi á gólfi og fataskápum.
Svefnherbergi nr. 3 er inn af forstofu með parketi á gólfi og fataskápum.
Baðherbergi er flísalagt og með innréttingu, vegghengdu salerni og sturtu. Innrétting fyrir þvottavél og þurrkara. Gluggi er á baðherbergi.
Geymsla er innan íbúðar með parketi á gólfi.
Tvö merkt bílstæði eru á lóð. Einnig er á jarðhæð sameiginleg vagna og hjólageymsla.

Verð kr. 98.900.000,- 



Um skoðunar- og aðgæsluskyldu:
Í lögum um fasteignakaup nr. 40/2002 er kveðið á um ríka skoðunarskyldu kaupenda á fasteignum. Fasteignasala Mosfellsbæjar skorar því á væntanlega kaupendur að kynna sér vel ástand fasteigna fyrir kauptilboðsgerð og leita til þar til bærra sérfræðinga um nánari skoðun ef með þarf.

Forsendur söluyfirlits:
Söluyfirlit er samið af fasteignasala í samræmi við ákvæði laga nr. 70/2015. Þær upplýsingar sem fram koma í söluyfirliti þessu eru sóttar í opinberar skrár, til seljanda sjálfs og eftir atvikum til húsfélags. Seljandi veitir upplýsingar um eign í samræmi við upplýsingaskyldu laga um fasteignakaup nr. 40/2002. Fasteignasali sannreynir að þær upplýsingar séu réttar með sjónskoðun á eigninni.
Fasteignasali getur ekki fullyrt um ástand og eiginleika þeirra hluta fasteigna sem ekki eru aðgengilegir og sjást ekki berum augum, t.d. lagnir, dren, skólp og þak.

Gjöld sem kaupandi þarf að greiða vegna kaupa:
1. Stimpilgjald af kaupsamningi sem er hlutfall af fasteignamati. Stimpilgjald er 0,8% fyrir einstaklinga (0,4% við fyrstu kaup) og 1,6% fyrir lögaðila.
2. Þinglýsingargjald af kaupsamningi, veðskuldabréfum, veðleyfum o.fl. Þinglýsingargjald er kr. 3.800,- fyrir hvert skjal.
3. Lántökugjald lánastofnunar - er skv. gjaldskrá viðkomandi lánastofnunar.
4. Umsýslugjald til fasteignasölu skv. kauptilboði.
5. Þegar um nýbyggingu er að ræða greiðir kaupandi skipulagsgjald, 0,3% af endanlegu brunabótamáti, þegar það er lagt á af viðkomandi sveitarfélagi.

img
Svanþór Einarsson
Lögg.fasteignasali innan félags fasteignasala
Fasteignasala Mosfellsbæjar
Þverholti 2, 270 Mosfellsbæ
Fasteignasala Mosfellsbæjar

Fasteignasala Mosfellsbæjar

Þverholti 2, 270 Mosfellsbæ
phone
img

Svanþór Einarsson

Þverholti 2, 270 Mosfellsbæ
Ár
Fasteignamat
Kaupverð
Stærð
Fermetraverð
13. júl. 2021
5.190.000 kr.
65.900.000 kr.
111.4 m²
591.562 kr.
Byggt á upplýsingum úr Þjóðskrá Íslands frá 2006-2026
Fasteignasala Mosfellsbæjar

Fasteignasala Mosfellsbæjar

Þverholti 2, 270 Mosfellsbæ
phone

Svanþór Einarsson

Þverholti 2, 270 Mosfellsbæ