Löggiltir fasteignasalar innan Félags fasteignasala:
Sigurður Maack Gunnarsson
Svanþór Einarsson
Theodór Emil Karlsson
Steingrímur Benediktsson
Vista
fjölbýlishús

Vefarastræti 18

270 Mosfellsbær

81.000.000 kr.

731.707 þ.kr./m2
Fasteignanúmer

F2359455

Fasteignamat

78.800.000 kr.

Brunabótamat

76.800.000 kr.

Áhvílandi

0 kr.

Arion banki – Reikna lán
Upplýsingar
Verðsaga
svg
Byggt 2017
svg
110,7 m²
svg
3 herb.
svg
1 baðherb.
svg
2 svefnh.
svg
Þvottahús
svg
Sameiginl. inngangur
svg
Bílastæði
svg
Lyfta
Opið hús: 14. apríl 2026 kl. 16:30 til 17:00

Lýsing

** Opið hús þriðjudaginn 14. apríl frá kl. 16:30 til 17:00 -  Svanþór Einarsson, löggiltur fasteignasali - [email protected] eða 698-8555 - Theodór Emil Karlsson, löggiltur fasteignasali - [email protected] eða 690-8040 -  Steingrímur Benediktsson, löggiltur fasteignasali - [email protected] eða 862-9416 **

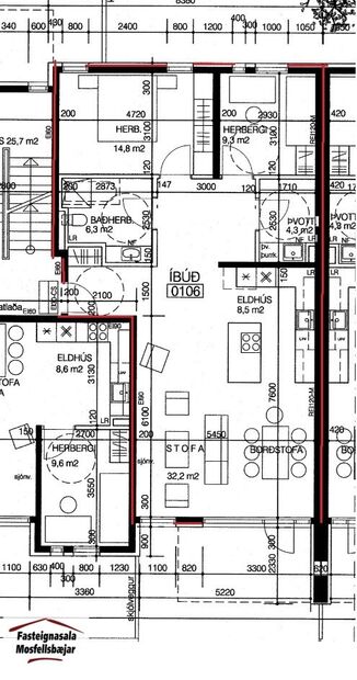
Fasteignasala Mosfellsbæjar kynnir: Björt og mjög falleg 110,7 m2, 3ja herbergja íbúð á jarðhæð með útgengi út á verönd (27 m2 sérafnotareitur) í suðurátt ásamt bílastæði í lokaðri bílageymslu við Vefarastræti 18 í Mosfellsbæ. Eignin er skráð 110,7 m2, þar af íbúð 99,5 m2 og geymsla 11,2 m2. Eignin skiptist í tvö svefnherbergi, baðherbergi, þvottahús, forstofu, eldhús, stofu og borðstofu. Bílastæði í bílageymslu fylgir eigninni og komin hleðslustöð fyrir rafmagnsbíla. Gott skipulag, fallegar innréttingar frá Axis og innfelld lýsing hönnuð af Lumex. Frábær staðsetning rétt við grunn- og leikskóla, Helgafellsskóla og fallegar gönguleiðir. Stutt í strætóstoppistöð.

Smelltu hér til að fá söluyfirlit sent


Nánari lýsing:
Forstofa er með fataskáp og harðparketi á gólfi.
Hol er með harðparketi á gólfi.
Svefnherbergi nr. 1 (Hjónaherbergi) er rúmgott með fataskápum og harðparketi á gólfi.
Svefnherbergi nr. 2  er með harðparketi á gólfi og fataskáp.
Baðherbergi er flísalagt með innréttingu, upphengdu salerni, handklæðaofni og sturtu.
Þvottahús er flísalagt með innréttingu fyrir þvottavél og þurrkara.
Eldhús, stofa og borðstofa eru í rúmgóðu og björtu opnu rými með harðparketi á gólfi. Í eldhúsi er falleg L-laga innrétting með eyju. Í innréttingu er innbyggð uppþvottavél, innbyggður ísskápur/frystiskápur, blástursofn, helluborð og háfur. Úr stofu er gengið út á hellulagða verönd og sérafnotaflöt í suðurátt. 
Sérgeymsla er í kjallara, skráð 11,2 m2.
Bílastæði í bílageymslu merkt B29 fylgir eigninni. Hleðslustöð fyrir rafmagnsbíl er í stæðinu.
Eigninni fylgir hlutdeild í sameiginlegri vagna- og hjólageymslu í kjallara.
Húsið: Húsið er staðsteypt, klætt báruáli frá Áltak. Innsteypt innfelld lýsing undir svölum. Hiti undir steyptri stétt. Rafmagnsopnanir í anddyrum, póstkassar og mynddyrasími. Teppa- og flísalögð sameign. Lýsing frá Lumex í sameign. Hljóðplötur í sameign til að dempa hljóð utan íbúðar. 

Verð kr. 81.000.000,-



Um skoðunar- og aðgæsluskyldu:
Í lögum um fasteignakaup nr. 40/2002 er kveðið á um ríka skoðunarskyldu kaupenda á fasteignum. Fasteignasala Mosfellsbæjar skorar því á væntanlega kaupendur að kynna sér vel ástand fasteigna fyrir kauptilboðsgerð og leita til þar til bærra sérfræðinga um nánari skoðun ef með þarf.

Forsendur söluyfirlits:
Söluyfirlit er samið af fasteignasala í samræmi við ákvæði laga nr. 70/2015. Þær upplýsingar sem fram koma í söluyfirliti þessu eru sóttar í opinberar skrár, til seljanda sjálfs og eftir atvikum til húsfélags. Seljandi veitir upplýsingar um eign í samræmi við upplýsingaskyldu laga um fasteignakaup nr. 40/2002. Fasteignasali sannreynir að þær upplýsingar séu réttar með sjónskoðun á eigninni.
Fasteignasali getur ekki fullyrt um ástand og eiginleika þeirra hluta fasteigna sem ekki eru aðgengilegir og sjást ekki berum augum, t.d. lagnir, dren, skólp og þak.

Gjöld sem kaupandi þarf að greiða vegna kaupa:
1. Stimpilgjald af kaupsamningi sem er hlutfall af fasteignamati. Stimpilgjald er 0,8% fyrir einstaklinga (0,4% við fyrstu kaup) og 1,6% fyrir lögaðila.
2. Þinglýsingargjald af kaupsamningi, veðskuldabréfum, veðleyfum o.fl. Þinglýsingargjald er kr. 3.800,- fyrir hvert skjal.
3. Lántökugjald lánastofnunar - er skv. gjaldskrá viðkomandi lánastofnunar.
4. Umsýslugjald til fasteignasölu skv. kauptilboði.
5. Þegar um nýbyggingu er að ræða greiðir kaupandi skipulagsgjald, 0,3% af endanlegu brunabótamáti, þegar það er lagt á af viðkomandi sveitarfélagi.

img
Svanþór Einarsson
Lögg.fasteignasali innan félags fasteignasala
Fasteignasala Mosfellsbæjar
Þverholti 2, 270 Mosfellsbæ
Fasteignasala Mosfellsbæjar

Fasteignasala Mosfellsbæjar

Þverholti 2, 270 Mosfellsbæ
phone
img

Svanþór Einarsson

Þverholti 2, 270 Mosfellsbæ
Ár
Fasteignamat
Kaupverð
Stærð
Fermetraverð
18. ágú. 2021
49.100.000 kr.
62.000.000 kr.
110.7 m²
560.072 kr.
6. jún. 2018
40.300.000 kr.
47.000.000 kr.
110.7 m²
424.571 kr.
8. des. 2017
35.500.000 kr.
42.000.000 kr.
196.4 m²
213.849 kr.
Byggt á upplýsingum úr Þjóðskrá Íslands frá 2006-2026
Fasteignasala Mosfellsbæjar

Fasteignasala Mosfellsbæjar

Þverholti 2, 270 Mosfellsbæ
phone

Svanþór Einarsson

Þverholti 2, 270 Mosfellsbæ