Löggiltir fasteignasalar innan Félags fasteignasala:
Benedikt Ólafsson
Sveinbjörn Rosén Guðlaugsson
Eggert Maríuson
Tinna Bergmann Halldórsdóttir
Vista
svg

139

svg

125  Skoðendur

svg

Skráð  10. feb. 2026

fjölbýlishús

Vallakór 6B

203 Kópavogur

92.700.000 kr.

729.921 þ.kr./m2
Fasteignanúmer

F2354739

Fasteignamat

94.850.000 kr.

Brunabótamat

92.180.000 kr.

Áhvílandi

0 kr.

Arion banki – Reikna lán
Upplýsingar
Verðsaga
svg
Byggt 2018
svg
127 m²
svg
4 herb.
svg
1 baðherb.
svg
3 svefnh.
svg
Sameiginl. inngangur
svg
Bílastæði

Lýsing

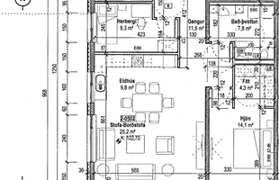
STOFN FASTEIGNASALA KYNNIR: Einstaklega vandaða og bjarta fjögurra herbergja endaíbúð á 5.hæð Með stórbrotnu útsýni yfir Elliðavatn og víðar í Vallakór 6B, 203 Kópavogur. Eigninni fylgja tvö sérmerkt bílastæði í lokuðum bílakjallara og rúmgóðar, yfirbyggðar svalir með útgengi frá stofu og hjónaherbergi. Lyfta er í húsinu og möguleiki á rafbílahleðslu. Bílaþvottaaðstaða er í bílakjallara. Samtals birt stærð séreignar er 127,0 fermetrar. Eignin er vel staðsett, þar sem stutt er í alla þjónustu. Í göngufæri er matvörubúð, grunnskóli, leikskóli og Kórinn (íþróttamiðstöð HK).

Nánar tiltekið eign merkt 05-02, fastanúmer 235-4739 ásamt öllu því sem eigninni fylgir, þar með talið tilheyrandi lóðar og sameignarréttindi stærð íbúðar 120,8 fm. Eigninni tilheyrir geymsla (0068) birt stærð 6,2 fm og yfirbyggðar rúmgóðar svalir, stærð 21,1 fm. 

*Smelltu hér til að skoða myndband um eignina*

*Smelltu hér til að sækja söluyfirlit*
  • Tvö sérmerkt bílastæði í bílakjallara
  • Lyfta í húsi
  • Rúmgóðar yfirbyggðar svalir með góðu útsýni
  • Hjónaherbergi með fataherbergi 
  • Góð staðsetning

Eignin skiptist í: Forstofu, stofu og eldhús í alrými, hjónaherbergi með fataherbergi innaf, tvö barnaherbergi, baðherbergi með tengi fyrir þvottavél, stórar yfirbyggðar svalir.

Nánari lýsing:
Forstofa: Rúmgóð forstofa, mjög gott skápapláss, flísar á gólfi.    
Stofa/borðstofa: Stofa og eldhús eru saman í rúmgóðu alrými, stofan er björt og með útgengt út á stórar svalir sem eru yfirbyggðar, parket á gólfi.
Eldhús: Með hvítri HTH innréttingu, gott skápapláss, eyja er límd við og því hægt að fjarlægja eða færa, parket á gólfi.
Hjónaherbergi: Með fataherbergi innaf, útgengt út á stórar yfirbyggðar svalir, parket á gólfi.
Svefnherbergi 1: Rúmgott, með fataskáp og parket á gólfi.
Svefnherbergi 2: Rúmgott, með fataskáp og parket á gólfi. 
Baðherbergi: Með hvítri HTH innréttingu, gott skápapláss. Flísalagt með sturtu, vegghengdu salerni, tengi fyrir þvottavél og þurrkara, handklæðaofn.
Svalir: Stórar og yfirbyggðar með svaladyrum bæði í stofu og hjónaherbergi.
Geymsla:  Innan sameignar, 6,2 fm
Bílastæði: Tvö bílastæði merkt B77 og B78 í bílageymslu, hægt að hlaða rafbíl í gegnum 32amp tengil á vegg, í bílageymslu er einnig þvottastæði.
Hjóla- og vagnageymsla: Sameiginleg innan sameignar.

Nánari upplýsingar veita:
Hallveig Jónsdóttir, Nemi í löggildingu, í síma 699-0496, netfang [email protected]
Benedikt Ólafsson, Löggiltur fasteignasali, í síma 661-7788, netfang [email protected]

Við hjá STOFN Fasteignasölu setjum þig í fyrsta sætið – með heilindum, metnaði og persónulegri þjónustu.
Það er okkur sannur heiður að fá að vera fasteignasalinn þinn.
STOFN Fasteignasala – Setjum þig í fyrsta sætið.

 

Forsendur söluyfirlits:
Söluyfirlit er samið af fasteignasala í samræmi við ákvæði laga nr. 70/2015. Þær upplýsingar sem fram koma í söluyfirliti þessu eru sóttar í opinberar skrár, til seljanda sjálfs og eftir atvikum til húsfélags. Seljandi veitir upplýsingar um eign í samræmi við upplýsingaskyldu laga um fasteignakaup nr. 40/2002. Fasteignasali sannreynir að þær upplýsingar séu réttar með sjónskoðun á eigninni. Fasteignasali getur ekki fullyrt um ástand og eiginleika þeirra hluta fasteigna sem ekki eru aðgengilegir og sjást ekki berum augum, t.d. lagnir, dren, skólp og þak.

Um skoðunar- og aðgæsluskyldu:
Í lögum um fasteignakaup nr. 40/2002 er kveðið á um ríka skoðunarskyldu kaupenda á fasteignum. STOFN Fasteignasala ehf. bendir væntanlegum kaupendum á að kynna sér vel ástand fasteigna við skoðun og fyrir tilboðsgerð og ef þurfa þykir að leita til sérfræðinga um nánari ástandsskoðun.

img
Benedikt Ólafsson
Lögg.fasteignasali innan félags fasteignasala
STOFN Fasteignasala ehf.
Lyngási 11, 210 Garðabæ
STOFN Fasteignasala ehf.

STOFN Fasteignasala ehf.

Lyngási 11, 210 Garðabæ
img

Benedikt Ólafsson

Lyngási 11, 210 Garðabæ
Ár
Fasteignamat
Kaupverð
Stærð
Fermetraverð
4. feb. 2019
50.500.000 kr.
57.900.000 kr.
127 m²
455.906 kr.
Byggt á upplýsingum úr Þjóðskrá Íslands frá 2006-2026
STOFN Fasteignasala ehf.

STOFN Fasteignasala ehf.

Lyngási 11, 210 Garðabæ

Benedikt Ólafsson

Lyngási 11, 210 Garðabæ