Upplýsingar
Byggt 2018
114,9 m²
3 herb.
1 baðherb.
2 svefnh.
Bílskúr
Sérinngangur
Laus strax
Lýsing
Fasteignasalan Hvammur 466 1600
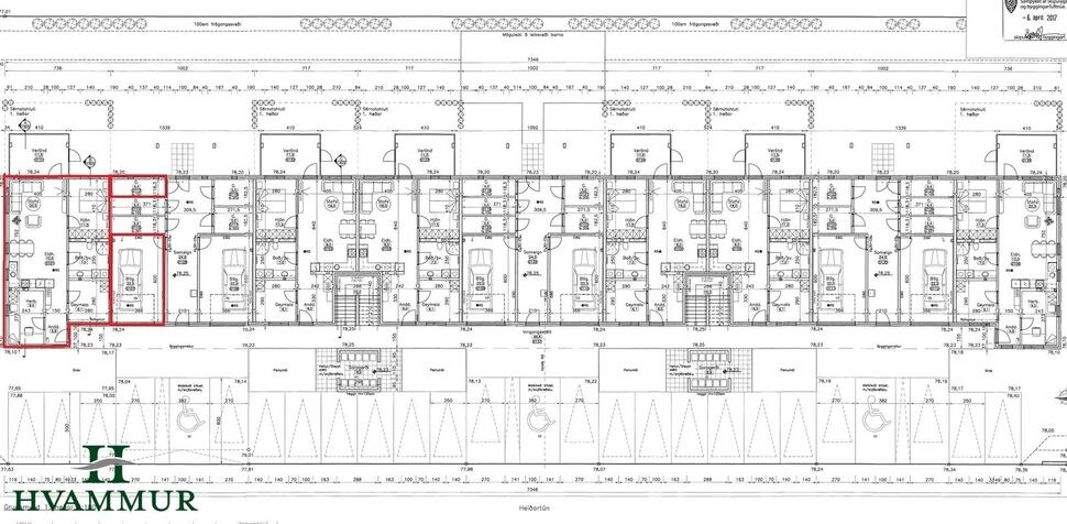
Heiðartún 2 íbúð 101 - Falleg og vel skipulögð 3-4ra herbergja íbúð á neðri hæð í norður enda í fjölbýli (2018) í Naustahverfi ásamt bílskúr - stærð 114,9 m², þar af telur bílskúr 24,7 m²
Eignin skiptist í forstofu, eldhús og stofu í opnu rými, baðherbergi með þvottaaðstöðu, hjónaherbergi, barnaherbergi og geymslu sem hefur verið nýtt sem svefnherbergi.
Sér geymsla fylgir íbúðinni með epoxyefni á gólfi og opnanlegum glugga.
Forstofa er með ljósu harðparketi á gólfi og hengi.
Eldhús, vönduð innrétting með ágætu skápaplássi og innfelldum ísskáp með frysti og uppþvottavél sem fylgja með við sölu eignar. Ljóst harðparket er á gólfi og borðkrókur með glugga til norðurs.
Stofa og eldhús eru í opnu og björtu rými, með gluggum til tveggja átta og hurð til austurs út á steypta verönd, skráð skv. teikningum 11,5 m² stærð. Ljóst harðparket er á gólfi.
Svefnherbergin eru tvö, bæði með ljósu harðparketi á gólfi og fataskápum. Stærð herbergja er skv. teikningum 9,0 og 11,5 m². Geymsla innan íbúðar hefur verið nýtt sem þriðja svefnherbergið og er innréttað sem slíkt, ljóst harðparket á gólfi, fataskápur og opnanlegur gluggi. Geymslan er skráð skv. teikningum 8,1 m² að stærð.
Baðherbergi er með gráum flísum á gólfi og hluta veggja, hvítri innréttingu og speglaskáp, upphengdu wc, handklæðaofni og walk-in sturtu. Stæði er í innréttingunni fyrir þvottavél og þurrkara.
Sér geymsla fylgir íbúðinni, skráð 5,6 m² að stærð. Þar er epoxyefni á gólfum og opnanlegur gluggi.
Bílskúr er skráður 24,7m² að stærð. Þar er epoxy efni á gólfum og innst er vinnuborð og efri skápar. Innkeyrsluhurð er með rafdrifnum opnara, einnig er gönguhurð inn í hann úr sameigninni.
Annað
- Vandaðar innréttingar og fataskápar frá GKS.
- Hvítar innihurðar.
- Ljóst harðparket er á öllum gólfum íbúðar að baðherbergi undanskildu, þar eru flísar.
- Gólfhiti er í allri íbúðinni.
- Eignin er laus til afhendingar fljótlega.
- Eignin er í einkasölu.
Um skoðunar- og aðgæsluskyldu:
Í lögum um fasteignakaup nr. 40/2002 er kveðið á um ríka skoðunarskyldu kaupenda á fasteignum. Fasteignasalan Hvammur skorar því á væntanlega kaupendur að kynna sér vel ástand fasteigna fyrir kauptilboðsgerð og leita til þar til bærra sérfræðinga um nánari skoðun ef með þarf.
Forsendur söluyfirlits:
Söluyfirlit er samið af fasteignasala í samræmi við ákvæði laga nr. 70/2015. Þær upplýsingar sem fram koma í söluyfirliti þessu eru sóttar í opinberar skrár, til seljanda sjálfs og eftir atvikum til húsfélags. Seljandi veitir upplýsingar um eign í samræmi við upplýsingaskyldu laga um fasteignakaup nr. 40/2002. Fasteignasali sannreynir að þær upplýsingar séu réttar með sjónskoðun á eigninni. Fasteignasali getur ekki fullyrt um ástand og eiginleika þeirra hluta fasteigna sem ekki eru aðgengilegir og sjást ekki berum augum, t.d. lagnir, dren, skólp og þak.
Heiðartún 2 íbúð 101 - Falleg og vel skipulögð 3-4ra herbergja íbúð á neðri hæð í norður enda í fjölbýli (2018) í Naustahverfi ásamt bílskúr - stærð 114,9 m², þar af telur bílskúr 24,7 m²
Eignin skiptist í forstofu, eldhús og stofu í opnu rými, baðherbergi með þvottaaðstöðu, hjónaherbergi, barnaherbergi og geymslu sem hefur verið nýtt sem svefnherbergi.
Sér geymsla fylgir íbúðinni með epoxyefni á gólfi og opnanlegum glugga.
Forstofa er með ljósu harðparketi á gólfi og hengi.
Eldhús, vönduð innrétting með ágætu skápaplássi og innfelldum ísskáp með frysti og uppþvottavél sem fylgja með við sölu eignar. Ljóst harðparket er á gólfi og borðkrókur með glugga til norðurs.
Stofa og eldhús eru í opnu og björtu rými, með gluggum til tveggja átta og hurð til austurs út á steypta verönd, skráð skv. teikningum 11,5 m² stærð. Ljóst harðparket er á gólfi.
Svefnherbergin eru tvö, bæði með ljósu harðparketi á gólfi og fataskápum. Stærð herbergja er skv. teikningum 9,0 og 11,5 m². Geymsla innan íbúðar hefur verið nýtt sem þriðja svefnherbergið og er innréttað sem slíkt, ljóst harðparket á gólfi, fataskápur og opnanlegur gluggi. Geymslan er skráð skv. teikningum 8,1 m² að stærð.
Baðherbergi er með gráum flísum á gólfi og hluta veggja, hvítri innréttingu og speglaskáp, upphengdu wc, handklæðaofni og walk-in sturtu. Stæði er í innréttingunni fyrir þvottavél og þurrkara.
Sér geymsla fylgir íbúðinni, skráð 5,6 m² að stærð. Þar er epoxyefni á gólfum og opnanlegur gluggi.
Bílskúr er skráður 24,7m² að stærð. Þar er epoxy efni á gólfum og innst er vinnuborð og efri skápar. Innkeyrsluhurð er með rafdrifnum opnara, einnig er gönguhurð inn í hann úr sameigninni.
Annað
- Vandaðar innréttingar og fataskápar frá GKS.
- Hvítar innihurðar.
- Ljóst harðparket er á öllum gólfum íbúðar að baðherbergi undanskildu, þar eru flísar.
- Gólfhiti er í allri íbúðinni.
- Eignin er laus til afhendingar fljótlega.
- Eignin er í einkasölu.
Um skoðunar- og aðgæsluskyldu:
Í lögum um fasteignakaup nr. 40/2002 er kveðið á um ríka skoðunarskyldu kaupenda á fasteignum. Fasteignasalan Hvammur skorar því á væntanlega kaupendur að kynna sér vel ástand fasteigna fyrir kauptilboðsgerð og leita til þar til bærra sérfræðinga um nánari skoðun ef með þarf.
Forsendur söluyfirlits:
Söluyfirlit er samið af fasteignasala í samræmi við ákvæði laga nr. 70/2015. Þær upplýsingar sem fram koma í söluyfirliti þessu eru sóttar í opinberar skrár, til seljanda sjálfs og eftir atvikum til húsfélags. Seljandi veitir upplýsingar um eign í samræmi við upplýsingaskyldu laga um fasteignakaup nr. 40/2002. Fasteignasali sannreynir að þær upplýsingar séu réttar með sjónskoðun á eigninni. Fasteignasali getur ekki fullyrt um ástand og eiginleika þeirra hluta fasteigna sem ekki eru aðgengilegir og sjást ekki berum augum, t.d. lagnir, dren, skólp og þak.