Upplýsingar
Byggt 1961
87,8 m²
5 herb.
1 baðherb.
3 svefnh.
Þvottahús
Sameiginl. inngangur
Lýsing
Öldugata 46 - Hafnarfirði
Opið hús miðvikudaginn 18.febrúar frá kl 17:00-17:30
Vinsamlegast staðfestið komu á opna húsið á [email protected]
STOFAN FASTEIGNASALA kynnir rúmgóða og bjarta 4 herbergja íbúð við Öldugötu 46, Hafnarfirði.
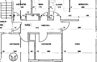
Eignin er á 2.hæð og er skráð samtals 87,8 fm skv. HMS.
Komið er inn í forstofu / gang með parketi á gólfi.
Stofa / borðstofa er björt og rúmgóð með parketi á gólfi. Útgengt er úr stofu á svalir.
Eldhús með ljósri innréttingu, eldavél og vifta, tengi fyrir uppþvottavél. Parket á gólfi.
Hjónaherbergi er rúmgott með fataskápum og parketi á gólfi.
Barnaherbergi með fataskáp og parketi á gólfi.
Barnaherbergi með parketi á gólfi.
Baðherbergi með innréttingu á vegg og handlaug, salerni og baðkar með sturtu.
Þvottahús og þurrkherbergi í sameign íbúa.
Sérgeymsla í sameign sem er 4,6 fm.
Sameiginleg hjóla- og vagnageymsla í sameign.
Skv.seljanda:
Rafmagnstafla í íbúð endurnýjuð og dregið í nýtt rafmagn. Einnig bætt við rafmagnstenglum - 2019
Miðvöðvarofnr endurnýjaðir í tvennu lagi - 2018 og 2021
Miðstöðvarofnar í sameign endurnýjaðir - 2018
Byrjað er að skipta um glugga í blokkinni og er búið með u.þ.b helming. Safnað verður svo fyrir því sem á eftir að skipta út.
Þetta er rúmgóð og björt eign miðsvæðis í Hafnarfirði þar sem skólar og leikskólar eru í stuttu göngufæri, einnig stutt í miðbæinn.
Allar nánari upplýsingar um eignina veitir Guðný Ósk í síma 866-7070, [email protected] og Atli Þór í síma 699-5080, [email protected]
Gjöld sem kaupandi þarf að standa straum af vegna kaupanna:
1. Stimpilgjald af kaupsamningi - 0,8%(einstaklingar) 1.6% (lögaðilar) af heildarfasteignamati.
2. Þinglýsingargjald af kaupsamningi, veðskuldabréfi, mögulegu veðleyfi o.fl. - kr. 3.800 af hverju skjali.
3. Lántökugjald lánastofnunar. Nánari upplýsingar á heimasíðu lánastofnana.
4. Umsýslugjald til fasteignasölu skv.gjaldskrá.
Opið hús miðvikudaginn 18.febrúar frá kl 17:00-17:30
Vinsamlegast staðfestið komu á opna húsið á [email protected]
STOFAN FASTEIGNASALA kynnir rúmgóða og bjarta 4 herbergja íbúð við Öldugötu 46, Hafnarfirði.
Eignin er á 2.hæð og er skráð samtals 87,8 fm skv. HMS.
Komið er inn í forstofu / gang með parketi á gólfi.
Stofa / borðstofa er björt og rúmgóð með parketi á gólfi. Útgengt er úr stofu á svalir.
Eldhús með ljósri innréttingu, eldavél og vifta, tengi fyrir uppþvottavél. Parket á gólfi.
Hjónaherbergi er rúmgott með fataskápum og parketi á gólfi.
Barnaherbergi með fataskáp og parketi á gólfi.
Barnaherbergi með parketi á gólfi.
Baðherbergi með innréttingu á vegg og handlaug, salerni og baðkar með sturtu.
Þvottahús og þurrkherbergi í sameign íbúa.
Sérgeymsla í sameign sem er 4,6 fm.
Sameiginleg hjóla- og vagnageymsla í sameign.
Skv.seljanda:
Rafmagnstafla í íbúð endurnýjuð og dregið í nýtt rafmagn. Einnig bætt við rafmagnstenglum - 2019
Miðvöðvarofnr endurnýjaðir í tvennu lagi - 2018 og 2021
Miðstöðvarofnar í sameign endurnýjaðir - 2018
Byrjað er að skipta um glugga í blokkinni og er búið með u.þ.b helming. Safnað verður svo fyrir því sem á eftir að skipta út.
Þetta er rúmgóð og björt eign miðsvæðis í Hafnarfirði þar sem skólar og leikskólar eru í stuttu göngufæri, einnig stutt í miðbæinn.
Allar nánari upplýsingar um eignina veitir Guðný Ósk í síma 866-7070, [email protected] og Atli Þór í síma 699-5080, [email protected]
Gjöld sem kaupandi þarf að standa straum af vegna kaupanna:
1. Stimpilgjald af kaupsamningi - 0,8%(einstaklingar) 1.6% (lögaðilar) af heildarfasteignamati.
2. Þinglýsingargjald af kaupsamningi, veðskuldabréfi, mögulegu veðleyfi o.fl. - kr. 3.800 af hverju skjali.
3. Lántökugjald lánastofnunar. Nánari upplýsingar á heimasíðu lánastofnana.
4. Umsýslugjald til fasteignasölu skv.gjaldskrá.