Upplýsingar
Byggt 2026
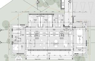
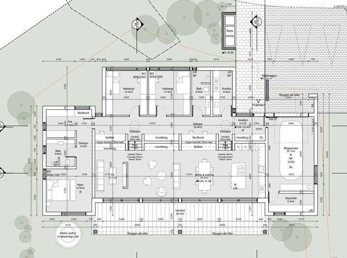
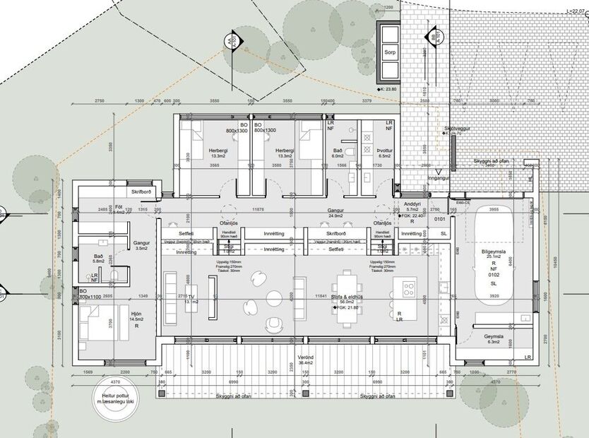
239,9 m²
4 herb.
2 baðherb.
3 svefnh.
Þvottahús
Bílskúr
Sérinngangur
Lýsing
Ásmundur Skeggjason kynnir einstaka náttúruperlu á eftirsóttum stað. Um er að ræða stórglæsilegt 239,9 fm einnar hæðar einbýlishúsi í Garðabæ sem er í smíðum.
Gert er ráð fyrir 3 herbergjum, innbyggður bílskúr, hjónasvíta með fataherbergi og sér baði og fleira prýða þessa einstöku eign. Hér hefur hvergi verið til sparað og allur frágangur og efnisval er í allra hæsta gæðaflokki. Húsið stendur á rúmlega 1213 fm lóð sem verður sem næst viðhalfsfrí sem og húsið að utan. Húsið er afhent tilbúið að utan með frágenginni lóð, steypt bílaplan með hita, pallar og heitur pottur sem búið er að tengja. Annars verður lyngtorf á lóð sem ekki þarf að sinna.
Sjón er sögu ríkari.
*Viðhaldsfrí álklæðning er að mestum hluta á húsinu í bland við Lunawood, bílskúrshurð er klædd með viðarklæðningu.
*Ál gluggar í húsinu með sólstoppi,viðhaldsfríir, rennihurðir í dökkum lit.
*Sjónsteyptir veggir og súlur ásamt sorptunnuskýli.
*Lóð hönnuð af Urban Beat.
*Möguleiki er fyrir kaupanda að breyta innra skipulagi í húsinu á þessu stigi, það er nú tilbúið til innréttinga án milliveggja en verið að setja þá upp.
*Ekkert verður byggt fyrir framan húsið og ekki heldur aftan við það.
* Gert er ráð fyrir þremur bílastæðum við húsið.
*Stór inngarður með timbur verönd og eru lagnir fyrir heitan pott komnar út eru undir pall.
*Lumex hannaði lýsingu innanhúss og utanhúss,rafmagnstafla er komin upp og búið að tengja bílskúrshurð.
*Gólfhiti er tengdur við grind, lokað snjóbræðslukerfi uppsett fyrir bílastæði.
*Hönnuðir Stúdíó B.
*Gott aðgengi er að stofnbrautum.
*Möguleiki er að fá húsið lengra komið í samráði við kaupanda.
Eignin er í dag tilbúin að utan og tæplega tilbúin til innréttinga, verið er að klára lóðafrágang og að setja upp innveggi.
Hringdu núna og bókaðu tíma í einkaskoðun hjá Ásmundi Skeggjasyni fasteignasala, [email protected], Gsm 895 3000.-
Gert er ráð fyrir 3 herbergjum, innbyggður bílskúr, hjónasvíta með fataherbergi og sér baði og fleira prýða þessa einstöku eign. Hér hefur hvergi verið til sparað og allur frágangur og efnisval er í allra hæsta gæðaflokki. Húsið stendur á rúmlega 1213 fm lóð sem verður sem næst viðhalfsfrí sem og húsið að utan. Húsið er afhent tilbúið að utan með frágenginni lóð, steypt bílaplan með hita, pallar og heitur pottur sem búið er að tengja. Annars verður lyngtorf á lóð sem ekki þarf að sinna.
Sjón er sögu ríkari.
*Viðhaldsfrí álklæðning er að mestum hluta á húsinu í bland við Lunawood, bílskúrshurð er klædd með viðarklæðningu.
*Ál gluggar í húsinu með sólstoppi,viðhaldsfríir, rennihurðir í dökkum lit.
*Sjónsteyptir veggir og súlur ásamt sorptunnuskýli.
*Lóð hönnuð af Urban Beat.
*Möguleiki er fyrir kaupanda að breyta innra skipulagi í húsinu á þessu stigi, það er nú tilbúið til innréttinga án milliveggja en verið að setja þá upp.
*Ekkert verður byggt fyrir framan húsið og ekki heldur aftan við það.
* Gert er ráð fyrir þremur bílastæðum við húsið.
*Stór inngarður með timbur verönd og eru lagnir fyrir heitan pott komnar út eru undir pall.
*Lumex hannaði lýsingu innanhúss og utanhúss,rafmagnstafla er komin upp og búið að tengja bílskúrshurð.
*Gólfhiti er tengdur við grind, lokað snjóbræðslukerfi uppsett fyrir bílastæði.
*Hönnuðir Stúdíó B.
*Gott aðgengi er að stofnbrautum.
*Möguleiki er að fá húsið lengra komið í samráði við kaupanda.
Eignin er í dag tilbúin að utan og tæplega tilbúin til innréttinga, verið er að klára lóðafrágang og að setja upp innveggi.
Hringdu núna og bókaðu tíma í einkaskoðun hjá Ásmundi Skeggjasyni fasteignasala, [email protected], Gsm 895 3000.-